想瞭解服務流程
丈量費用多少
想瞭解收費方式、收費節點
裝修預算怎麼抓
設計方案包含家具規劃嗎
該在什麼時候找設計師
設計師會合理控制預算嗎
找設計師前要做什麼準備
有案例平面圖嗎
設計費怎麼收
想瞭解服務流程
丈量費用多少
想瞭解收費方式、收費節點
裝修預算怎麼抓
設計方案包含家具規劃嗎
該在什麼時候找設計師
設計師會合理控制預算嗎
找設計師前要做什麼準備
有案例平面圖嗎
設計費怎麼收
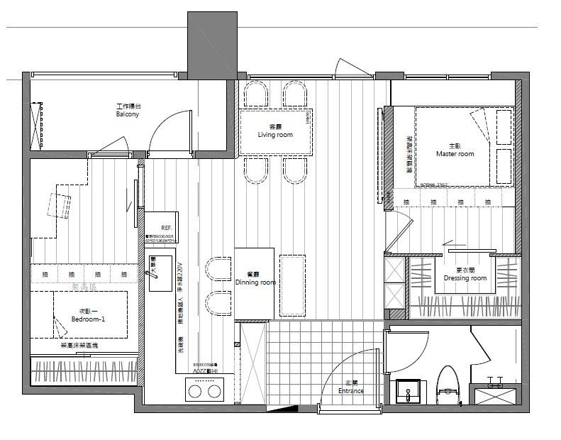
一、裝修背景
由於通勤習慣都在板南線,因此以這個作為主要條件去找房,最後選定了現在的房子,當時買下來還是預售屋,原本有找設計師幫忙客變,不過配合得不太順利,很多地方都覺得不是自己想要的樣子,後來幸運地找到了琍旭設計重新規劃,整個溝通過程讓我覺得,終於有人懂我想要的那種生活感,心裡大鬆了一大口氣~又重新燃起了希望!

完整裝修工具包(清單+話術+模板)已為你準備好!
二、格局變動
因為一個人住又常待在家,希望家裡可以開放、明亮,整體規劃也完全依照自己的喜好來走。客變的時候,我已經把一些覺得多餘的牆面還有不喜歡的建材都退掉,幾乎快接近毛胚的狀態,只留下進門那間廁所。
後來琍旭設計團隊幫我重新安排格局,以開放式的公領域為大方向,玄關隔出一個落塵區,還做了收納量很夠的大鞋櫃,出門回家都相當方便。而我之前就調整過廚房管線位置,所以很自然規劃成現在這樣的 L 型開放式餐廚區,簡單下廚或招待親友都蠻好用的,空間感又有呈現出來。客廳的部分,我不太習慣坐沙發,乾脆就把空間規劃成餐廳加辦公區。臥室分兩邊,一間是主臥加更衣室,另一間當作客房,不過平常其實很少有人留宿,那間客房就當彈性收納空間使用。

三、我的需求
明亮、開放是基本要求,配色以溫暖的淺奶茶色系為主,我自己私心很喜歡格柵櫃,特別請設計師在規劃時幫我加進去,等到所有元素慢慢拼湊起來之後,才發現原來自己想要的是偏日系一點,簡單乾淨,卻又有細節上的溫度的這種感覺。
帶走上百屋主驗證的《裝修最全指南》,簡訊免費發您
四、完工美圖分享
玄關
和設計師討論時,最適合規劃格柵櫃位置就是在玄關,一開始也有想過買現成的,但怎麼找都找不到心裡理想的樣子,最後決定用木作訂製,格柵部分是實木條拼接的,所以質感真的很好,雖然這個櫃子的預算比原本多花了一點,但它剛好是一進門最先看到的地方,我覺得質感還是更重要,花下去很值得啦~



這邊特別隔出一個落塵區,我選了同款不同色糖果磚去組合,所以蠻有變化的,每天回到家脫鞋的時候,都會覺得這個小巧思很好看!


客廳
衛浴和主臥室之間做一個內嵌的備品櫃,因為後方剛好是更衣室,於是把一部分收納空間留給這邊使用,其實如果把這些空間留在更衣室的話,拿東西反而不方便,現在這樣規劃反而超順手。

家裡沒有放沙發,所以在家具和軟件的挑選上特別仔細,大部分都是木質或藤編材質的,像是餐桌、電視櫃、長椅、吧台椅等等,跟玄關那組格柵櫃搭起來很有整體感,也更有日系氛圍~
我很喜歡燈光的安排,設計師沒有在天花板上做滿嵌燈,而是用了磁吸式軌道燈,亮度充足還能彈性調整角度,且外型簡單俐落,和我家風格很搭,另外一個覺得很慶幸的決定是冷氣,原本想裝壁掛式,但考量到開放式格局跟房子的結構,設計師建議做吊隱式,實際用下來冷房效果真的很好,視覺也乾淨許多。

餐廚區
中島上方有一支大樑,設計師用比整體深一點的奶茶色做成一個 L 形框,結果意外地把壓迫感修飾掉了,一路延伸到餐廳,做了一整面洞洞板牆銜接,也讓開放式空間多了層次感,洞洞板牆這邊剛好是家裡訊號比較好的位置,我都把 WIFI 機放在這裡,平常還會拿來展示公仔或掛小包包,實用度比我想像的還要高。


我其實不常下廚,但還是需要一些放小家電的地方,中島下方的收納規劃剛剛好,還可以多放一些生活用品。

臥室
因為想放一張加大的雙人床,又已經有了更衣室,不需要再額外規劃大衣櫃,就直接做了架高床架。而且這裡有個設計細節,是將原本的門洞位置縮減寬度,改成玻璃穿透感的造型,這樣不僅保有採光,也讓裡外空間有連通感,有了床架後,床墊不用那麼靠邊,從公領域看進來時不會直接看到床,整體看起來更清爽。


牆面以我最喜歡的淺粉色做主題色,搭配我後來買的大木櫃超有溫馨感!

五、完工後的心得
這間房子我入住兩年多了,還記得去年的大地震,設計師還特地來關心,幫忙修補了一些油漆小剝落的部分,再來是當初嵌燈沒有做太多,所以一開始在照明使用上有點不習慣,設計師有再來幫我加強,還教我怎麼調整使用,這些小細節讓我覺得,真的是找到一個很用心的設計團隊!畢竟一般保固都是一年,但他們到現在還是會不定期關心,讓我覺得很窩心。
雖然住了一段時間,家裡依舊維持得很舒適,收納夠用而且清潔上也不麻煩,現在家裡看起來還是跟入住前拍照時一樣整齊漂亮,算是額外的收穫!我自己最喜歡待在公領域,不管是採光還是氛圍都很棒,有時親友要過來住也很方便,因為有很多彈性的設計和空間可以靈活使用。
這兩年偶爾會有鄰居或親友來我家,鄰居明明是同樣的格局,但他們走進我家總會驚呼「原來可以這樣設計啊」親友同事來訪時,也是不斷稱讚我家的裝潢很有質感,甚至還有直接找琍旭設計來規劃新家的,我聽了其實蠻開心,覺得能夠分享自己好的經驗,身邊的人能一起有一個舒適的家,就是件很棒的事~








