想瞭解服務流程
丈量費用多少
想瞭解收費方式、收費節點
裝修預算怎麼抓
設計方案包含家具規劃嗎
該在什麼時候找設計師
設計師會合理控制預算嗎
找設計師前要做什麼準備
有案例平面圖嗎
設計費怎麼收
想瞭解服務流程
丈量費用多少
想瞭解收費方式、收費節點
裝修預算怎麼抓
設計方案包含家具規劃嗎
該在什麼時候找設計師
設計師會合理控制預算嗎
找設計師前要做什麼準備
有案例平面圖嗎
設計費怎麼收
屋主需求:
1.需規劃三房三衛,明確區分公私領域
2.公共區域需設置鋼琴專用空間
3.廚房具備中島與酒櫃,方便日常使用與親友聚會
4.以美式風格作為基礎,結合法式線條設計,打造具造型美感的空間
5.特別重視石材的紋理與色澤
6.建材需符合環保與低甲醛標準
2025最新最全裝修省錢避坑指南免費領!
前言
這間住宅不僅是度假休憩之所,更承載著屋主對生活風格與空間美感的想像。設計的初衷,正是將空白的毛胚屋轉化為一個具有個性與溫度的第二居所,透過比例、材質與色彩之間的搭配,實現實用與藝術的平衡,讓每一次返家都成為最令人期待的日常。
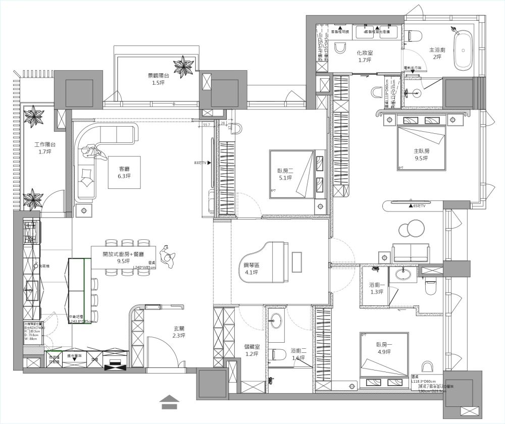
格局規劃與設計重點
本案為一戶室內約51坪的毛胚住宅,由設計團隊自零開始規劃格局與動線。空間依使用需求配置,玄關獨立設置,串聯客廳、餐廳、廚房與鋼琴區形成開放式公共領域,臥室與衛浴集中於一側,使生活機能與隱私需求各自獨立又彼此連貫,同時也確保了每間臥室皆具對外開窗,擁有充足採光。
空間以灰白為主調,營造沉穩純淨的基底氛圍。整體設計透過石材、大板磚與鍍鈦金屬細節的搭配,展現材質紋理的變化與對比。高彩度元素適度穿插於視覺重點位置,使風格在一致中仍保有層次與轉換,讓整體空間更顯流暢且富有表情。
平面圖

原始屋況

圖說 全室尚未施作前的毛胚狀態,採光條件良好、結構開闊,但缺乏明確的分區配置。

圖說 原始大樑橫貫天花,結構與管線裸露,需經由造型與照明設計予以整合、修飾。
帶走上百屋主驗證的《裝修最全指南》,簡訊免費發您
玄關設計
地坪鋪設色澤濃淡交錯的藍灰石材,自入口處即展現獨特的紋理張力,營造大器而不張揚的迎賓氛圍。立面以線板造型的米白櫃體配搭金屬把手,展現俐落、具細節感的第一印象。天花轉折處導入弧形設計,柔化結構轉角;壓紋玻璃屏風則兼具展示與遮擋功能,維持空間的穿透感,同時界定入門視線的過渡層次。



客廳設計
作為接待與家庭共享的主要空間,客廳設計著重在材質搭配與立面表現。主牆選用紋理鮮明、色彩錯落的石材,結合金屬飾條與展示層板,構成具視覺焦點的設計。沙發背牆以簡潔立面為基礎,局部導入圓弧造型與金屬飾條,為整體空間增添變化。天花板透過框型造型收攏原結構大樑,並融入圓弧轉折與嵌燈設計,遮蔽結構的同時,也讓視線流動更為自然。



餐廚設計
採開放式配置,與客廳相互延展,視線、動線皆通透無礙。中島作為空間的機能核心,提供充足的操作台面與收納機能;紅酒櫃與家電設備嵌入整體量體之中,機能與美感一併整合。廚具中段牆面特別選用訂製灰藍色烤漆玻璃,呼應女主人偏好的藍色系,也為餐廚空間增添一抹個人色彩。


鋼琴區設計
依屋主女兒彈奏鋼琴的使用需求,特別預留空間與動線以擺放大型直立式鋼琴,並作為家庭活動的共用場域。立面整合三間臥室、客用衛浴與儲藏室的門片,藉由線板造型與材質處理,使動線自然隱入牆體之中;並局部點綴藍色大板磚,在淺色立面中形成自然的視覺重點,也與玄關地坪紋理相映一致。


主臥設計
延續公領域的色彩基調及細節語彙,床頭立面運用深灰木紋板錯落鍍鈦飾條構成,低調中帶有精緻感,亦可兼顧便於清潔的實用需求。床頭後方設有玻璃滑門,內部為獨立化妝區,並銜接主浴,動線順暢。
空間中段設置一道圓弧造型矮牆,搭配可轉向的電視設計,作為睡眠區與休憩區之間的彈性分隔,無論躺在床上或坐在沙發區皆可靈活使用。



次臥1設計
以米白為主色,整體氛圍柔和靜謐。床頭上方天花採曲弧造型化解壓樑問題,同時融合光源與立面設計,營造柔和光感,日後使用者加裝投影式星空設備時,亦能順勢融入現有設計。床頭牆設計選搭圓形燈具結合背光處理,光暈勾勒出如月相般的靜謐意象,另一側幾何切割造型則可遮蔽必要開關與維修面板,整合視覺與機能。


次臥2設計
以粉紅色為主要基調,從牆面、櫃體到浴室磁磚與填縫皆統一色調,展現專屬女孩的清新柔美風格。設計上延續公共空間的整體調性,佐以金屬飾條、格柵造型作為裝飾語彙,搭配吊燈與間接光源,營造輕盈舒適的生活氛圍。



後記
此空間主要是屋主假日度假與接待親友之用,完工後亦經常邀請親友到訪、分享使用經驗,並主動向鄰居與朋友推薦設計團隊,成功轉介紹多組客戶。屋主現居美國的兒子返台入住時,更說這是他住過最漂亮的房子——這句話不僅流露出對空間的喜愛,也映照出這個住所在一家人心中所留下的深刻印象。








