想瞭解服務流程
丈量費用多少
想瞭解收費方式、收費節點
裝修預算怎麼抓
設計方案包含家具規劃嗎
該在什麼時候找設計師
設計師會合理控制預算嗎
找設計師前要做什麼準備
有案例平面圖嗎
設計費怎麼收
想瞭解服務流程
丈量費用多少
想瞭解收費方式、收費節點
裝修預算怎麼抓
設計方案包含家具規劃嗎
該在什麼時候找設計師
設計師會合理控制預算嗎
找設計師前要做什麼準備
有案例平面圖嗎
設計費怎麼收
一、買房換屋契機
婚前我和太太住在大約15坪的租屋處,空間不大但還算自在,結婚後,總覺得該有一個屬於自己的家,於是展開了找房之旅。那時候我們的條件很明確,交通方便、離家人近、採光一定要好,最後就入手了這間屋齡38年、三面採光的中古屋。
帶走上百屋主驗證的《裝修最全指南》,簡訊免費發您
二、找設計師的心路歷程
雖然這間房子格局零碎、動線卡卡、通風不良、天花板壓迫感重重,但也因為三面採光的優勢,還是覺得值得一試。在網路上做功課時,看到了寬象設計的作品,清新俐落又帶點溫度的風格,完全擊中我們的心,與總監洽談後,覺得他不只專業,還很認真傾聽,也尊重我們的需求與想法,於是,我們把這個老屋翻新的重任交給了他。
三、我們的裝修需求
1.風格:我們偏好美式風格,但不要太複雜、線條太重的設計,對我們來說,家更重要的是那種一進門就放鬆的感覺。因此,希望空間通透、明亮、溫暖。
2.收納:不管是哪個空間,都希望有剛剛好的收納機能,讓東西都有自己的家,視覺上不會顯得雜亂。
3.格局&機能:全室要有良好的隔音與照明設計,動線要流暢、格局要清楚,像是洗衣間要獨立完整、書房既開放共享,又能透過分區保有專注感,衛浴部分,則希望是飯店感雙洗手台配置,使用上更便利舒適。
裝修預算規劃與避坑清單
含Excel模板,限時0元領取
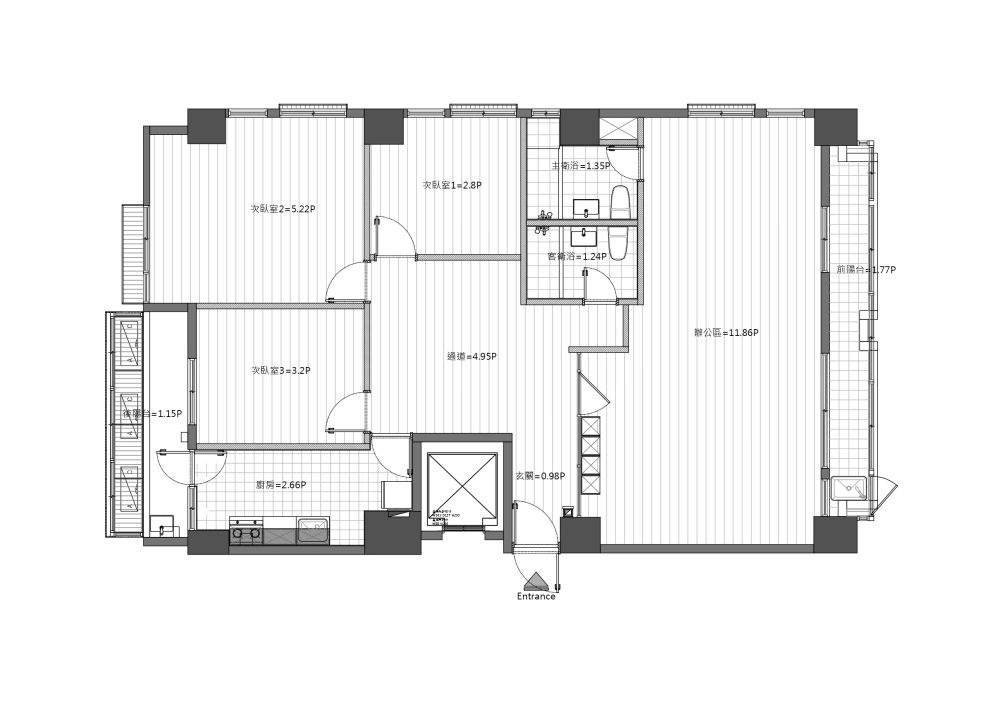
四、平面規劃&設計重點
原本這間房子有格局零散、玄關缺乏隱私、衛浴管線老舊等問題,但透過設計團隊的巧思,重新規劃後真的完全不一樣。像是把廚房移到中央動線末端,搭配玻璃隔間,採光變得超好,洗衣間獨立在室內,做家事不用風吹日曬,書房則是開放式設計,既能與客餐廳串聯互動,光線也能流通,讓公領域更亮敞。整體空間以木質與淺色為基底,再加上鐵件、石紋點綴,從天花、牆面到地坪的色彩過渡自然,層次分明又不失質感。


▲設計前後平面圖
五、完工美圖帶看
玄關設計
原本一打開大門,就直接對到鄰居家門,不僅缺乏隱私,進出時也覺得有點尷尬,總監建議,可以做一個玄關櫃轉角,既形成遮擋,又能滿足鞋子和小物件的展示收納需求,我們都覺得這個想法很棒。櫃體部分開放和導圓角設計,視覺上更柔和,減少壓迫感,動線也自然順暢,玄關地坪則鋪上帶點美式風格的磁磚,建立落塵區,進出時乾淨又有儀式感。

▲牆面設置一面全身鏡,出門前可以快速整理儀容,非常方便。
客廳&書房設計
我們一開始就決定不要電視牆,改成使用投影布幕,需要時才放下來看電影,平常牆面保持乾淨俐落,沙發和單椅也不拘泥於固定擺放,而是隨著心情和需求去移動,空間用起來更彈性自由。書房原本是有考慮做玻璃隔間,但後來覺得那樣太制式,沒有互動感,總監便在沙發後方設計了一道矮牆,把客廳與書房巧妙分開,既能保留空間通透和採光,又避免壓迫。

▲在樑下打造書櫃、層板,增加收納和展示功能,現在,不論是閱讀、工作,還是客廳小聚,都能在這個區域自然展開。

▲原始地板的狀況很糟,所以先重新打底,用水泥把基礎鋪平,再鋪上超耐磨木地板,我們指定了人字拼法,這樣的排列方式,不只是好看,更有一種延展效果,視覺上把空間放大了不少。

餐廳設計
特別將木質餐桌置中擺放,創造出回字型動線,一邊走向衛浴,另一邊則能直接進入廚房,動線更便利順暢,搭配兩盞吊燈,開燈時散發出柔和的光暈,讓用餐氛圍更顯溫馨舒適。

廚房設計
因為自己很喜歡下廚,所以對廚房的要求較高,原本的獨立廚房稍微封閉,改成玻璃隔間後,整體變得更明亮、清爽,並採用L型廚房配置,檯面空間非常充足,料理時不用手忙腳亂,設備部分也一次到位,安裝了爐連烤、洗碗機,還有便利的電器櫃,順手又實用。

▲其實我們一開始有想過做中島,但後來覺得固定住比較受限,於是改成擺放桌子,不僅能當備料台,也能直接當餐桌,日常使用更具彈性。

▲廚具選用沉穩灰色調,搭配白色磁磚牆,有質感又耐看,窗戶和門的鐵框則是特別訂製的,黑色線條讓整個空間多了幾分俐落和個性。

洗衣間設計
太太希望能在舒適的環境裡做家事,不用大熱天還要在陽台揮汗洗衣,所以特別在廚房旁邊規劃了一個獨立洗衣間,這裡有冷氣可以吹,洗衣、烘衣都能在此一次完成。總監還設置了水槽、置物櫃和平台,不論是要手洗小件衣物,還是熨燙、折疊衣服,都非常順手,清潔用品、洗衣精也都有固定的擺放位置。

▲延續與廚房相同的灰色調,讓視覺更和諧一致,推開玻璃門走進來,看到整齊明亮的洗衣間,做家事也變得更輕鬆愉快。
主臥設計
主臥以白色搭配木質元素,型塑溫馨柔和的休憩氛圍,因為床頭正好有樑和大柱子,總監幫我們設計了床頭櫃,虛化樑柱的存在感,上掀式收納也讓物品都能好收好找。另外,因為主衛浴的門正對著床,風水上我們多少有點介意,便利用半腰櫃搭配吊燈作為屏風,既稍作遮擋,又保留了空間的連續性,還有功能分界。


▲床尾整排大衣櫃設計,衣物收納空間非常充足。

▲利用角落空間,規劃為梳妝區。
衛浴設計
主衛浴我們堅持要做雙面盆,這樣早上不用搶著洗漱,可以兩個人同時使用,效率加倍。整體色調則選擇藍色牆面搭配金屬五金,再加上獨立浴缸,瞬間就有一種住進飯店的輕奢感,大面鏡子的設計,不只方便使用,也有空間延伸效果,讓衛浴看起來更寬敞明亮。


▲淋浴區沒有做拉門和隔間,避免壓縮空間,保有舒適、放鬆感受。
次衛浴設計
這間衛浴沒有對外窗,一開始還蠻擔心會不會太悶,但裝了全熱交換機,讓空氣能不斷循環,實際使用下來真的清爽又通風,並以淺色調為主,搭配木質收納櫃、六角磚地坪和金屬細節點綴,空間雖然不大卻很溫潤、耐看。


六、入住心得分享
從交屋到現在也過了半年多,空間寬敞、氛圍溫暖,住起來相當舒適,每次打開家門都有一種放鬆下來的幸福感,我們喜歡在客廳窩著,享受豐沛採光,廚房更是我的療癒角落,備料、料理、上桌,都相當有儀式感,可以讓壓力慢慢釋放,連洗衣間也都讓人很驚喜,在有冷氣的空間裡完成家務,不再是苦差事,反而有享受的感覺。這次的裝潢,我們真的非常滿意,寬象設計團隊從一開始就很專業、細心,做事又讓人放心,入住後,每次有親友來訪,大家都誇說我們家質感很好、好舒服,讓我們覺得這筆裝修費用花得超值得。







