隨手换装,輕鬆感受装修效果
想瞭解服務流程
丈量費用多少
想瞭解收費方式、收費節點
裝修預算怎麼抓
設計方案包含家具規劃嗎
該在什麼時候找設計師
設計師會合理控制預算嗎
找設計師前要做什麼準備
有案例平面圖嗎
設計費怎麼收
想瞭解服務流程
丈量費用多少
想瞭解收費方式、收費節點
裝修預算怎麼抓
設計方案包含家具規劃嗎
該在什麼時候找設計師
設計師會合理控制預算嗎
找設計師前要做什麼準備
有案例平面圖嗎
設計費怎麼收
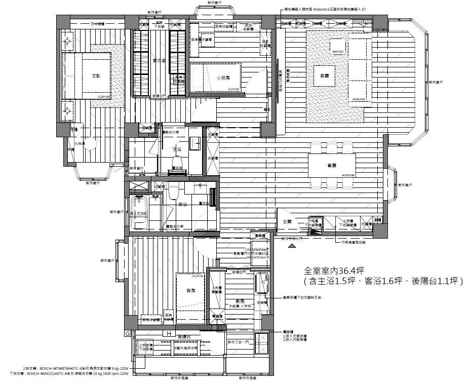
一、平面改造
原本的格局完全不符合需求,隔間牆多,空間被切得相當零碎,採光同時被擋掉不少,明明外面環境好卻浪費了,所以裝潢的重點放在「怎麼把採光打開」跟「提高空間利用率」。
格局規劃重點:
1.玄關跟客餐廳打通,公領域變成一個寬敞的大空間,提升開闊感之餘,女兒玩耍空間也相對充足。
2.廚房重新配置,在有限的坪數裡做到最高效運用,加上拉門,冰箱也移到廚房外面,貼近平常的使用習慣。
3.主客衛浴擴大,可以容納得下所有想要的設備。
4.主臥室裡規劃更衣室,讓休息區跟收納區有分隔。
5.保留一間客房,方便長輩偶爾來留宿。
Before

After


完整裝修工具包(清單+話術+模板)已為你準備好!
二、設計需求
●有了小朋友後,最在意的就是安全問題,特別要求不要有那種直角或尖銳的牆角,希望都用圓弧線去修飾,小孩在家跑跳比較不會受傷。
●以淺色系為主的柔和風格。
●不要整面牆塞滿櫃子的收納設計,比較喜歡分區收納,再搭配一些展示空間,或者用燈光去修飾櫃體,總體想要保持空間的寬敞感。
●房子樑比較低,我先生身高又高,走在裡面會覺得有點壓迫感,希望改善這部分。
三、完工分享
玄關
我們家是一層一戶,最棒的是大門外本來就有鞋櫃空間,進門不用再特別隔玄關規劃鞋櫃,所以一打開家門能直接看到開闊的客餐廳,第一眼感覺就是「舒服」!
靠牆的位置還是有規劃一些收納空間,像是汙衣櫃、雜物收納等多功能櫃,實用性畢竟是不可少的。而且我不希望整面櫃體看起來死板,所以設計師建議中段鏤空當展示區,加上燈光點綴,氛圍馬上不一樣,背板用的是仿石紋的大板磚,看起來很有質感,算是小亮點之一。


家裡是奶茶色、木紋再搭配白色為主,營造出溫暖又舒服的氛圍,連大門都有貼皮處理,不會顯得黑一塊太過於突兀。

餐廳
其實本來想做中島餐廚區的,但考量到平常的使用習慣,加上房子的格局條件不是那麼適合,最後還是把餐廚區分開,意外的收穫是因為餐廳沒有隔起來,空間相對開闊,加上選的是圓餐桌,吃飯的時候不會覺得擁擠,反而多了種自在的氛圍。


客廳
最喜歡待在客廳那種寬敞又明亮的感覺了!大面窗戶灑進來的自然光很療癒,而且裝潢是用淺色系,光線感覺又被提升更多,另外,家具都是選擇比較低矮且線條柔和、圓角的款式,電視櫃是木作訂製,也有連貫到圓弧的視覺,女兒不僅有大空間玩耍還安全不少。



客廳這面收納櫃主要放我先生的書,中間有開放的格子可以擺一些小裝飾,設計師刻意留白一部分作為端景,還加上大板磚呼應風格,整面牆看起來更有層次感。


房子的樑又大又低,設計師建議用圓弧造型來銜接天花板和牆面,看起來不會那麼壓迫,而且沿著天花板的線燈也弱化樑的存在。


在家裡走動的時候,常常會看到轉角有簡單的小端景牆,那都是設計師特別預留的巧思,我們也因此多了能隨心佈置裝飾的樂趣!

廚房
原本的廚房是狹長型,不只動線不好,連廚具都會擋住光線,這次乾脆把廚房格局、配置和材質一起調整起來,雖然廚房面積比以前小一點,但使用起來及動線都順暢許多,另外也改用玻璃拉門省空間、擋油煙,同時又讓光線通透進來,廚具選的是奶茶色調,搭配上我私心愛的人字拼磁磚地板,完全就是理想中的廚房啊!



臥室
臥室設計沒有太複雜,色調延續公領域的風格,以圓弧造型為主,不過如果仔細看,其實在地板邊緣還藏了小線板設計,因為一開始有跟設計師提到自己也蠻喜歡法式風格,雖然這次沒有把家做成法式,但設計師相當貼心地把我喜歡的元素放在一些比較低調的細節裡。
把休息區和更衣室分開後,看起來真的舒服多了,空間更有秩序,床邊則順應結構的條件規劃一個五斗矮櫃,之前舊家也有這樣的設計,用起來順手又實用。





衛浴
主衛浴和客衛浴加大後,用起來完全不憋手憋腳,而且走自然系的路線,主衛浴牆面是仿特殊塗料感的,客衛浴則是仿洞石,都是磁磚所以清理方便,五金幾乎挑黑色系,更有一致性和質感。最開心的是客衛浴裝了我想要很久的浴缸,牆面還做一個壁龕放香氛或裝飾小物,無論空間感或是細節規劃,都讓洗澡泡澡時舒適許多。




四、心得
還記得完工後第一次踏進來時,心裡不禁冒出一句:這真的是同一間房子嗎!原本陰暗又零碎的格局完全不見了,打掉隔間牆之後,空間感瞬間放大,視覺效果超好,而且收納方面有做到我一開始希望的「不要全部集中」,分區收納的好處是隨著場域的使用去增減,東西放起來剛剛好,不會太滿也不會覺得不夠。
每天在家看到療癒的採光、舒服的色調,再加上窗外的綠意,待在家覺得心情很好,也有種「家」就是避風港的感覺,非常滿意!







