想瞭解服務流程
丈量費用多少
想瞭解收費方式、收費節點
裝修預算怎麼抓
設計方案包含家具規劃嗎
該在什麼時候找設計師
設計師會合理控制預算嗎
找設計師前要做什麼準備
有案例平面圖嗎
設計費怎麼收
想瞭解服務流程
丈量費用多少
想瞭解收費方式、收費節點
裝修預算怎麼抓
設計方案包含家具規劃嗎
該在什麼時候找設計師
設計師會合理控制預算嗎
找設計師前要做什麼準備
有案例平面圖嗎
設計費怎麼收
一、裝潢緣起
二十多年前,我和太太在上南崁這個區域置產,陪伴孩子一路從牙牙學語到如今一個念大學、一個讀高中,這間屋子承載了我們全家的回憶,但隨著歲月流逝,屋況逐漸老舊,加上孩子長大後在家的時間變少,我和太太也開始思考退休後的居住品質,因此重新裝修成了一個必然的選擇。
我的個性嚴謹,習慣講究效率,因長年接觸科技產業,讓我對智能家居格外嚮往,希望未來的居住空間能結合便利與速度感。但這樣的需求,需要專業且有經驗的設計團隊來做全面的規劃。因此,我們選擇了在地經營三十年的晨陽設計為我們進行設計,不僅是因為在洽談過程中,他們展現的工程流程與規劃方式,完全符合我對專業與嚴謹的期待;更是因為設計師也能理解我對智能生活的需求,並提出許多實用的建議,讓我對未來充滿期許,希望這個家能在熟悉的社區裡換上嶄新面貌,也能陪伴我和太太邁入退休生活,開啟更舒適自在的新篇章。

完整裝修工具包(清單+話術+模板)已為你準備好!
二、需求列表
這間陪伴我們二十年的老屋,住久了確實有不少困擾,像是收納不夠、動線規劃不佳、隔音效果也不理想,生活上常覺得不方便。這次決定翻新,就是希望全家人都能住得自在一些,同時也把重心放在我跟太太未來的退休生活。設計風格上,我想滿足太太的喜好,走清新柔和的現代風,再加入一點日式的簡約與溫潤,讓整個空間既放鬆又有質感。實用性當然不能少,我們希望大幅加強收納,並挑選耐刮、防潮、好清潔的建材,讓日後維護更輕鬆。對我來說,效率跟便利很重要,所以也會導入聲控與智能感應系統,把智能家居真正落實在日常中。這次的改造,不只是單純解決老屋的問題,而是重新打造一個能陪伴我們往後生活、兼具舒適與科技感的家。
1.風格需求:清爽柔和現代+日式風。
2.居住人數:夫妻2人+小孩2人+1貓。
3.解決房屋的老化問題,包含水電管線汰換、防水更新、壁癌處理與地坪重鋪。
4.重新規劃格局,確保孩子有各自獨立房間,同時保有寬敞的公領域。
5.強化儲物空間,解決長年累積的物品收納問題。
6.全面導入聲控、感應系統,並留設未來升級彈性。
7.增加採光面、引入自然風,並搭配節能照明。
8.強化隔音,同時避免公私領域互相干擾。
9.選擇耐刮、防潮、易清潔的建材,降低後續維護成本。
10.公共區域保持開闊、避免高低落差,浴室增設安全把手與止滑設計。
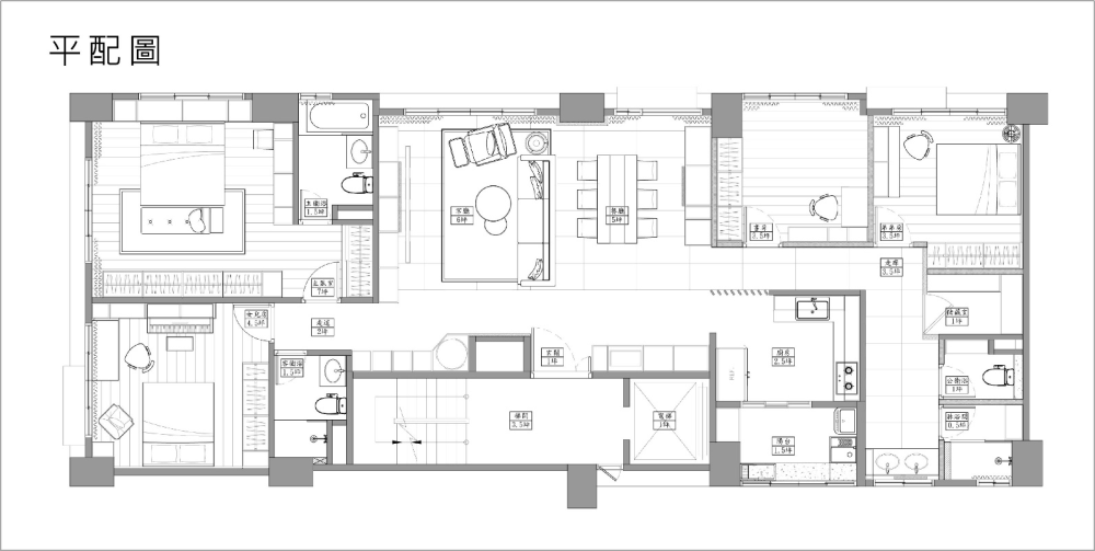
三、格局圖與動線規劃
這次更動格局,最主要就是希望公領域能更舒適。我們把廚房設計成半開放式,讓料理到餐桌的動線更順暢,做菜同時也能和家人交流。孩子的房間部分,因為之後大多會在外求學,就把空間規劃成均等的個人房間,讓他們回來時仍有自己的角落。另外,我們把其中一間臥室的衛浴獨立出來,變成全家共用的公用浴室,這樣動線也更合理。廊道的部分,我和太太特別規劃成我們的興趣空間,因為我們都喜歡騎腳踏車,所以牆面設置了專屬車架,不僅方便收納,也能展現我們的生活態度。這樣的規劃,讓家不只是休息的地方,更是陪伴我們邁入退休生活、延續興趣與健康的重要舞台。


裝修預算規劃與避坑清單
含Excel模板,限時0元領取
四、工程進場的放樣驗收
所謂「放樣驗收」,就是把整個居家空間用紙膠帶貼出平面配置圖,牆面還會標示尺寸、插座與開關位置,讓我們能真正走進空間、感受每個角落的比例與動線。早在和設計師面談時,我就對這個環節非常期待。實際走入現場後,我仔細檢視櫃體深度、動線規劃、插座與開關,甚至智能感應系統的位置,都一一確認是否符合日常使用需求。可視化的現場,讓我們這些非專業人士也能一目了然,細節上的要求可以更清楚地提出。因為我個性比較嚴謹,過程中確實多了一些討論,也請設計師現場微調了不少地方。但看到每個設計元素逐漸落實、空間輪廓慢慢成形,那種安心與期待感讓我內心非常滿足。這次放樣驗收,不只是檢查,更讓我對未來的家充滿信心,也更期待正式完成後的生活。



五、玄關
一走進家門,右手邊就是我們的玄關櫃。這次特別做了一個中段的平台,可以隨手放鑰匙、包包或是剛買回來的小東西,下方的雙開門櫃子收納的是便鞋,上方則規劃成雜物空間,後方的櫃體才是放置我們全家鞋子的旋轉鞋架設計,讓使用上更直覺也更符合我們家的生活習慣。左手邊則是一整面的穿衣鏡,不僅讓我們出門前整理儀容更方便,也讓玄關的空間感更開闊,透過鏡面的延伸效果,讓家一進門就顯得明亮又有穿透感。這樣的安排,讓玄關兼具收納與美感,也帶來更舒適的迎賓氛圍。


▲鏡面的素材讓空間更有質感。

▲同一體系的櫃體延伸出佛壇空間,既保留了我們的信仰需求,又和整體設計融合在一起,美觀而且實用。

▲因為我們家藏書很多,所以在廊道特別設計了一整面的書架,不僅可以收納大量書籍,也搭配了燈帶,讓書牆在夜晚或光線較暗的時候依然充滿溫暖的氛圍,提升整體空間的質感。
六、客廳
我們把客廳和餐廳規劃成一個開放式的公區域,讓整體空間看起來更開闊,也方便邀請朋友來家裡舉辦中小型聚會。因為家裡東西比較多,我們希望櫃體都能有拉門,隱藏日用品,維持乾淨美觀的空間;另外也設計了藏品展示架,讓家裡更有我們自己的特色。客廳部分,我們捨棄了傳統電視,改用投影設備,享受更沉浸的影音體驗。更棒的是,考慮到我對智能宅的需求,設計師幫我們規劃了完整的聲控系統,所有燈帶、電器甚至窗簾都可以透過聲控或手機操作,讓生活更加便利、符合我們對舒適與效率的期待。




▲客廳改成投影設備,不僅更省空間,也營造出更有氛圍感的影音體驗。
七、餐廳
原本佔據廚房不少空間的大型電器設備,我們都移到餐廳區域,讓廚房使用起來更寬敞,也如設計師建議的,規劃成輕食區的感覺,使用起來非常方便。餐廳這邊也配置了系統櫃拉門,可以隱藏雜物,讓整體看起來更整潔大方,同時搭配氛圍照明,讓用餐時也有儀式感。餐桌則特別選用可拉伸的款式,需要多人聚餐時就能輕鬆擴展空間,兼顧日常和聚會的彈性。


▲除了隱藏雜物外,也可以很好的阻擋灰塵。
八、書房
原本這個空間是打算作為我的書房,但考慮到我們家的毛小孩東西也不少,後來想乾脆把寵物的用品都集中在這裡,使用上會比較方便,於是現在這個空間就變成一半書房、一半貓房。原本的櫃體多以開放式層架為主,為了方便收納和避免小貓弄亂,我們把櫃體調整成以門片為主,不僅整齊,也更耐用,整體使用起來更順手,也能保持空間的整潔。


九、廊道+衛浴空間
原本房間裡的衛浴,這次我們把它獨立出來,讓公區域擁有雙衛浴,使用起來更有餘裕。衛浴也改成乾濕分離設計,降低濕滑的危險,使用更安全。廊道是調整格局後才出現的小空間,我們把它規劃成我和太太的居家運動區。牆面可以吊掛自行車,不僅方便維修、調整,也能作為展示,還能直接在家做運動。更棒的是,我們配了小型投影螢幕,即使在室內,也能欣賞戶外騎行的景色,讓騎車的興趣與居家生活自然結合,這個空間也成了我們夫妻共享愛好的專屬角落。



▲因為空間不足,所以將洗手槽獨立出來,意外的很有外國的氛圍感。

▲畢竟以後年紀大了,更要注意濕滑的危險,所以這次把衛浴改成乾濕分離的設計,使用起來剛剛好,也更安心。
十、裝修後的夢想家
搬進重新裝修後的家,走在每一個角落,我都能感受到過去二十多年生活記憶的延續,卻又多了全新的舒適與便利。從玄關、客廳、餐廳到廊道,每個動線都順暢,收納也比以前充足許多,且整潔又美觀。多出的空間還可以設計成居家運動區,牆上自行車架與小型投影螢幕,讓我和太太的興趣自然融入生活,每個角落都讓我們全家住得自在、愉快。更棒的是,整個家結合智能宅設計,所有燈光、窗簾與電器都可以聲控或手機操作,無論是早晨起床、夜晚回家,還是外出控制家中設備,都非常便利,真正感受到科技融入生活的樂趣,讓家更舒適又省心。
在裝修過程中,我非常感謝晨陽設計的專業與細心。從水電管線汰換、壁癌處理、地坪重鋪,到櫃體尺寸、動線規劃、插座與智能系統的配置,每一個工程項目都精準到位。設計師充分理解我們對智能家居與生活便利的需求,工務設計師也替我們著想,針對龜毛的細節提出最佳解決方案,甚至在許多額外設備的安裝上,都熱心協助與配合。
回首整個裝修過程,從構思、放樣驗收到落成,每一步都讓我深刻體會到專業與用心的重要。現在的家,不只是生活的場所,更是我們退休生活的舒適舞台,也是興趣、家庭、智能科技與回憶完美交織的空間。每次回家,都能感受到溫暖、便利與滿足,這正是我們一直期待、也最珍惜的夢想家。







