隨手换装,輕鬆感受装修效果
想瞭解服務流程
丈量費用多少
想瞭解收費方式、收費節點
裝修預算怎麼抓
設計方案包含家具規劃嗎
該在什麼時候找設計師
設計師會合理控制預算嗎
找設計師前要做什麼準備
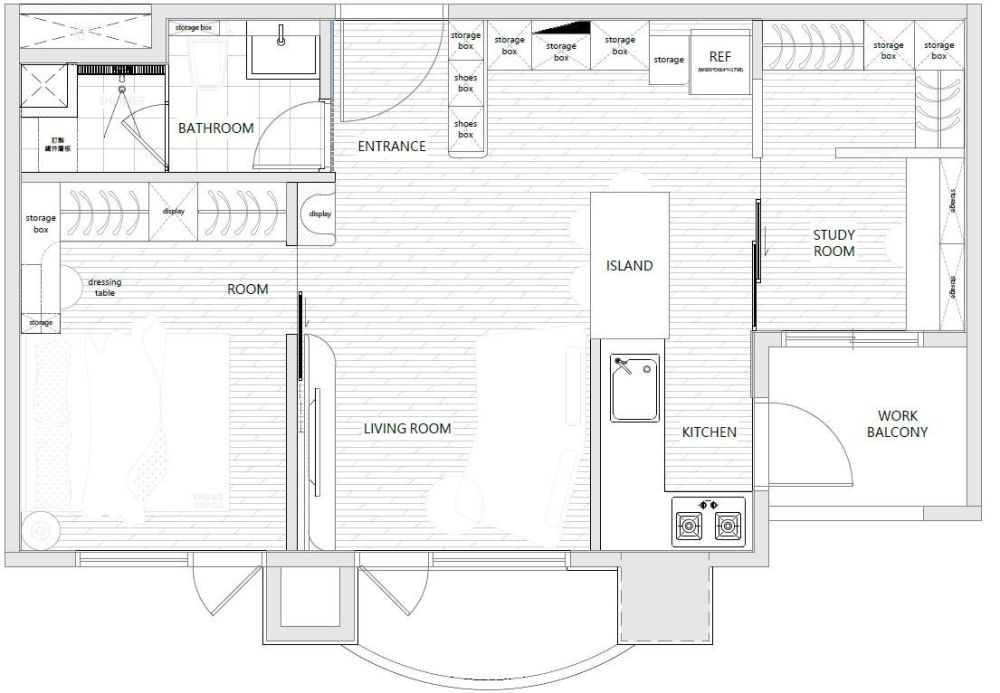
有案例平面圖嗎
設計費怎麼收
想瞭解服務流程
丈量費用多少
想瞭解收費方式、收費節點
裝修預算怎麼抓
設計方案包含家具規劃嗎
該在什麼時候找設計師
設計師會合理控制預算嗎
找設計師前要做什麼準備
有案例平面圖嗎
設計費怎麼收
一、裝潢緣起
從小我就是跟家人住,對於擁有一個家,一個屬於自己的小天地一直是我的夢想,開始工作後,也經常關注房產動態,某天看到附近推出預售屋案,地點位置都是在我熟悉的環境、生活機能也很方便,看了樣品後沒有太多猶豫就下訂,我也從那一刻起,正式進階成為擁有自己小窩的「有殼蝸牛」。

完整裝修工具包(清單+話術+模板)已為你準備好!
二、找到擎森設計的過程
我一開始找了認識的建築師朋友,心想建築師應該更能幫我實現理想的家,沒想到實際溝通並不順利,我想做的他非但不採納,反而一直說服我接受他的想法,所以合作就到客變後終止。後來在朋友推薦下得知擎森設計,洽談時還參觀了擎森設計操刀的實品宅,現場簡約且質感的氛圍,正是我想要的!也讓我決定委託擎森團隊進行後續的裝潢規劃。
三、我的裝潢需求
房子本身是只有14坪的小宅,格局上規劃2房1廳,只有自己住,需求十分單純。我喜歡簡約、有個性同時寬敞大器的風格,希望空間看起來不只14坪;另外,我的衣物鞋子偏多,希望能有足夠的收納空間,不要讓雜物堆在外面。我自己還有一些藝術品的小收藏,也需要新家能規劃展示的地方。
四、設計師的裝潢重點
由於當初已經完成客變,擎森設計團隊考量整體成本與效率之下,除了變更廚房牆面打造半開放客餐廚外,其它格局上沒有作多餘變動,反而著眼在裝潢佈局上滿足我的需求,其中的設計規劃包括:
●玄關增設一道櫃牆,多一道內外緩衝並提升收納機能
●撤除封閉式廚房的規劃,改成以平檯+中島隔出的開放式餐廚空間
●調整門片開口,分別以拉門取代主臥、書房的傳統掀門,節省空間也讓內外更放大
●整體材質選搭、空間氛圍型塑


五、完工美圖帶看
原本以為隔間之後每處空間感會更緊繃,但讓我驚艷的是設計團隊的紮實設計力,雖然只有14坪,卻藉著設計元素與空間特質,巧妙從材質切換、弧形收邊、光線等方式創造出視覺放大的槓桿效果,接下來就帶看倌們ROOM TOUR一番!
玄關
考量單人居住的我對於安全感的需求,設計團隊在進門處以機能牆多作一道緩衝,櫃牆設計也完美滿足我對於鞋子收納的需要,更透過另一側臥房隔牆處打造圓弧形的開放式展示架,一進門就能看到我的收藏藝術品。


客廳
●電視牆
電視牆延續整體空間的簡約灰白調,線條乾淨俐落,下方櫃體採取落地式設計,並做弧型崁入左側牆體,讓視覺更輕盈。這裡也整合了電視牆、金屬邊框的霧玻璃房門、展示櫃與浴廁的格柵式隱藏門,將牆面依房屋最大尺度放大,讓空間感倍增,弧形細節則柔化了原有牆體的生硬感。



●不規則轉角沙發
這張沙發是我在入住後最常待的地方,一個人窩著剛剛好,偶爾朋友來也能靈活調整方向。加深的椅面設計可以半躺閱讀、靠窗休息都很自在。米灰色布料與圓弧造型延續全室柔和氛圍,讓客廳成為最具生活感的角落。

●天花板修飾
原本兩支大樑橫貫整個客餐區,造成壓迫感。設計師以連續式的圓潤弧線包覆修飾,創造天花線條自然延伸至牆面,不僅消弭樑體厚重感,也形塑出空間的流動感與視覺放大綿延效果。

餐廳
●中島餐桌
原本很擔心廚房外側放上餐桌會讓動線變得擁擠,但設計師量身訂製了剛剛好的中島寬度,搭配圓角檯面,桌面一側延伸至牆面,巧妙連結空間也成為自然的邊界線,電器櫃則收納在中島下方,更擴大收納與使用的機能。不僅能作為用餐區,也能在家工作、備餐或閱讀。


●材質錯落櫃體
這裡的收納包含了電盤櫃、冰箱櫃和封閉的雜物櫃,擔心整排的櫃體看起來凌亂又無趣,但設計師利用不同深淺高低的灰色層次將櫃體錯落排列,中段開放層架嵌入柔光燈源,空間氛圍質感滿滿。



臥室
房間本身的採光相當好,能自然迎入陽光,但我擔心夜晚太亮會影響睡眠,因此選用了雙層式日夜蜂巢簾靈活調節光線。牆面以霧灰紫作為跳色,讓空間氛圍更柔和,搭配灰絨布床頭與吊掛式球燈,帶出飯店級質感。


六、裝潢心得
第一次全程參與築家的過程,從平面到3D,再到化為實際,一切都得來不易,過程中最讓我糾結的就是在預算上的拉扯──鍍鈦、板材、藝術塗料偏高昂的價格一度讓我很猶豫,但完工後的既簡約又不失質感,不論是線條、紋理還是色彩都讓人百看不厭,當初要是一個細節沒做到位,恐怕整體感覺就會走鐘!
我也很佩服設計團隊創造出的空間魔法!仔細留意,你會發現我家客餐區的櫃子並沒有做到頂,透過上方空間的留白,視覺上才能顯得寬廣明亮;立面也是細節滿滿,設計師刻意修掉櫃體牆面尖銳的轉折,讓圓弧收邊能順著光影帶出藝術品般的波浪感效果。插座電路規劃的很完善,完全不需要額外牽延長線。現在我和我的貓咪獨享整個家,雖然只有14坪,卻無敵溫馨療癒,謝謝擎森設計團隊,也謝謝自己的選擇!







