隨手换装,輕鬆感受装修效果
想瞭解服務流程
丈量費用多少
想瞭解收費方式、收費節點
裝修預算怎麼抓
設計方案包含家具規劃嗎
該在什麼時候找設計師
設計師會合理控制預算嗎
找設計師前要做什麼準備
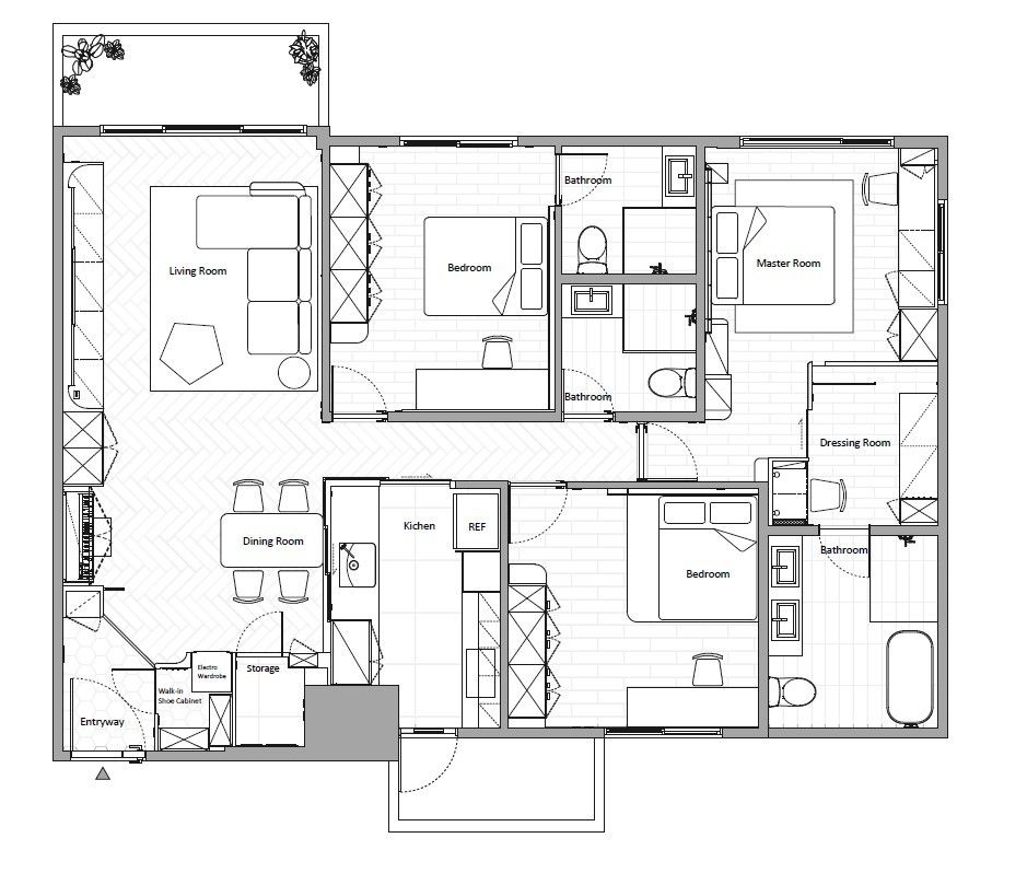
有案例平面圖嗎
設計費怎麼收
想瞭解服務流程
丈量費用多少
想瞭解收費方式、收費節點
裝修預算怎麼抓
設計方案包含家具規劃嗎
該在什麼時候找設計師
設計師會合理控制預算嗎
找設計師前要做什麼準備
有案例平面圖嗎
設計費怎麼收
一、前言
在台南已經定居一段時間了,但以前都是租屋,期間常常面臨搬家的問題,七、八年間前後搬了三、四次,實在有點累~後來考量到未來工作與生活都會繼續在台南進行,於是才決定乾脆買一間自己的房子。購屋時雖然已經不能客變了,不過在交屋前我和先生還是先上網找了兩三間設計公司諮詢,而築沃設計是讓我們印象最好的!
一開始其實是因為看到龎宇志設計師的經歷而被吸引目光,他不僅是室內設計技術士、工程管理技術士,同時也是綠裝修協會認證的綠設計師,所以我們覺得他在結構、設計與建材處理和運用上一定都非常專業,而且因為我們也很重視空間的美感,看到他曾榮獲德國 IF DESIGN AWARD Winner、法國 DNA Paris Design Award Official Selection、韓國 K-DESIGN AWARD Winner 等多項國際設計獎項,心裡又更放心,覺得他設計出來的作品一定很有質感!就這樣抱著期待的心情後實際見面溝通,很幸運地,過程也相當順利~光是初步提案我們就非常滿意,因此也很快就決定簽約。等到交屋後,設計師也親自進到現場了解空間現況,再依據我們的需求進行更細緻的規劃,整體過程讓人感覺安心又專業。

完整裝修工具包(清單+話術+模板)已為你準備好!
二、我們的需求
我們喜歡簡約輕奢溫暖的風格,並希望不要太繁複,但又有一些小細節點綴,設計師建議用不同的質感去表現出來,比方說以我們喜歡的白色、灰色、奶油色系等元素為主,再以木質,大理石、特殊塗料、金屬色等等去延伸,讓空間更有立體感。
三、平面格局


原本公領域沒有任何隔間,所以相對有可塑性,我們當時的需求和設計師提供的格局建議如下:
1.公領域新增獨立玄關、能阻絕油煙的廚房、鋼琴區
2.擴充收納空間如步入式鞋櫃、儲藏室(放備品、行李箱、吸塵器等大型家電)
3.置放電子衣櫥的空間
4.酒櫃
5.附有化妝桌的更衣室
6.臥室內增設書桌

▲原本公領域是開放格局,沒有特別隔出玄關

▲廚房是開放式的,擔心下廚時會產生油煙,希望隔成獨立空間
四、完工分享
玄關
因為想要獨立玄關,又要兼顧其他收納空間配置,所以玄關是斜向的,並用六角花磚拼接出落塵區,一進門就覺得很溫馨!而且立面的收邊規劃不同角度的曲線,視覺上有緩衝效果,走起來也不會覺得擁擠,另一側則增加一面弧形壓花玻璃屏風,讓內外空間有分隔的感覺,同時不會擋到採光,整體還是明亮通透。



當初有提出鞋櫃需要能夠放得下四十幾雙鞋,設計師建議我乾脆做成步入式鞋櫃,這樣不只能放鞋子,還可以掛包包、放一些小東西,實用性比一般鞋櫃高了許多,不過落塵區還是有做小鞋櫃放日常穿的鞋,這樣分類還蠻方便的。


側面是電子衣櫥的區域,外層鏡面設計直接就能當全身鏡用,不用另外再裝一面鏡子,方便又超省空間!旁邊儲藏室的門片是選磁吸板,小朋友能在上面畫畫或留言,還蠻有趣的~行李箱、吸塵器、洗地機、電風扇、備品和雜物都收得進去儲藏室,甚至連電箱也是藏在裡面。再過去就是先生想要已久的酒櫃,金屬框搭配線燈,展示效果非常好,讓這一區更有質感。

餐廚區
一開始是擔心油煙的關係而想做廚房隔間,但又覺得封起來太壓迫,後來用玻璃拉門取代實體隔間,中島上方的那面玻璃拉門因為是連動的,打開時可以全部收到一邊,而落地的那片也可內收,這樣一來既保留開放感,下廚時關起來又能擋油煙,想開放或封閉都能隨時調整,非常符合我們的使用習慣。另外,中島的部分外觀有重新做造型,直線條的部分是用環保塑料建材,再搭配灰色特殊塗料,看起來有層次感又不會份量感太重。


我們家的風格是偏淺色系,在家具和軟裝的搭配上,設計師建議挑深色或跳一點的款式來對比會更好看。像餐椅就選了胡桃木色系,餐桌是大理石面,再搭配金屬色的吊燈,這樣的小小點綴不僅顯得精緻,也有呈現我想要的那種輕奢氛圍。


鋼琴區&客廳
在玄關和電視牆之間留了一個鋼琴區,不過那時候有考慮到,以後小朋友如果不彈琴了,這個區域是不是能有其他用途?因此設計師提議規劃為帶有弧線的角落,沿著弧線還嵌入了線燈,現階段在練琴的時候亮度很足,如果之後不放鋼琴,也是可以變成一個閱讀區(線燈改當閱讀燈使用),而且上方和側邊都增加了收納空間,下方還有掃地機器人櫃,美觀又實用,彈性設計真的非常加分!



金屬網格櫃是機櫃,把設備收在裡面不會覺得雜亂,訊號也不會受阻。

不過設計師很注重層次感,他說就算是設定為淺色,也是要有點變化才好看,因此以白色、奶油色和灰色為主色調,像鋼琴區那邊的牆面用了帶有渲染感的奶油色特殊塗料,電視牆則是白色大理石薄板,電視櫃搭配灰色大理石材質,沙發背牆是奶油色的珪藻土漆,看起來簡單素雅,但色調之間都有呼應到。地板的部分我選自己喜歡的人字拼木地板,搭配起來感覺上多了幾分高級感。


大樑比較明顯,加上有裝設新風機,天花板本來看起來會有點壓迫,為了不要再壓低,冷氣就裝壁掛式的,然後利用不同的弧線、斜角切面去修飾,除了造型感提升、天花板能保有挑高感,冷氣回風空間也夠,冷房效果反而好!


我很喜歡我們家的照明設計,像鋼琴區和電視牆側邊有弧形造型,搭配線燈之後,光線散出來的柔和感更有氛圍,待在客廳都會覺得特別放鬆舒服。


臥室&更衣室
更衣室是後來才新增的空間,我們用了壓花玻璃拉門,這種玻璃不會透視,保留隱私還讓內外空間保持明亮。裡面除了吊掛區之外,有再規劃斗櫃和首飾櫃,所有東西一目了然,整理起來相當方便。




化妝桌是我自己最私心的一個區域!從以前就嚮往那種像好萊塢巨星化妝間的燈光鏡,這次終於實現了。因為我有一百多支口紅,設計師貼心地在兩側訂製壓克力展示架,讓每支口紅整齊排開,看起來就像專櫃的口紅區一樣,真的超級滿意。

窗邊的部分利用樑下的空間規劃成先生的辦公區,有效利用小角落而且有足夠的收納。窗邊選用了百葉簾,保留採光又能依照需要調整光線。


床這一側有二次衣櫃,和床之間加了一個小屏風,稍微有點區隔卻不壓迫。床頭是繃布設計,兩側嵌入了線燈取代傳統床頭燈,整體更俐落,不會有凸出的燈具影響視覺,兩邊的線燈還可以分開控制開關和亮度,就算我和先生作息不同,也不會互相干擾。

女兒房
床頭牆是日本進口的壁紙,近看質感很精緻,衣櫃是用系統櫃,不過因為是拼接設計,所以有粉色和奶油色兩種色調,更活潑童趣,門片上還加了幾個原木小把手可以掛東西。



五、心得
整體住起來真的還不錯,空間動線都符合生活需求,也不太需要重新去適應什麼。覺得最特別的是鋼琴區,奶油風格和造型設計很耐看,另外,大理石電視牆的質感也真的很美,感覺所有的元素加起來,整個家的氛圍更好!
意外的是廚房其實油煙沒有想像中大,所以平常都保持開放式,不過有需要的時候還是可以關起來,這種彈性設計真的很安心。
關於裝修,我覺得最重要的是先了解自己的需求,像生活習慣、常用物品有哪些,都要先想清楚,像我們家就一定要有儲藏室,才不會感覺東西很多很亂,後來入住後也證實了這個想法。
甚至如果對裝修有一點背景或概念,跟設計師討論起來會更順,比方說先生比較重視網路、家電之類的,這部分他就有特別和設計師提出要求,讓他幫我們在規劃上做調整和加強。回想整個過程,之所以最後能有這麼理想的成果,除了我們前期自己做了很多功課外,設計師真的功不可沒。
從和設計師第一次見面時,我就相當印象深刻他們所說的理念,也就是「把一件事情做到極致,就是功夫」這句話,這讓我們在交給他們設計時,真的有種吃了定心丸的感覺,後續也驗證這話不只是說說,是真的很貼切,設計師從一開始就幫我們全盤考量,不只是畫出漂亮的設計圖而已,而是從動線、水電配置、收納機能到施工細節都親自盯得很仔細,整個過程中,他也用3D圖和我們反覆溝通,讓我們很容易想像完工後的樣子,也因此避免很多誤會和修改。
還有一個重點是,設計師很願意傾聽,也會幫我們在很多天馬行空的想法裡找到平衡點,讓設計既符合我們生活習慣,又兼顧美感,選材上也堅持用安全、健康的綠裝修材料,讓我們住起來真的很安心~整體下來不只專業,連細節都照顧得很好,能一起把家調整成最貼近生活的樣子,這就是最理想的狀態!







