想瞭解服務流程
丈量費用多少
想瞭解收費方式、收費節點
裝修預算怎麼抓
設計方案包含家具規劃嗎
該在什麼時候找設計師
設計師會合理控制預算嗎
找設計師前要做什麼準備
有案例平面圖嗎
設計費怎麼收
想瞭解服務流程
丈量費用多少
想瞭解收費方式、收費節點
裝修預算怎麼抓
設計方案包含家具規劃嗎
該在什麼時候找設計師
設計師會合理控制預算嗎
找設計師前要做什麼準備
有案例平面圖嗎
設計費怎麼收
【基礎資訊】
| 屋況 | 新成屋 |
| 坪數 | 25坪 |
| 風格 | 現代風 |
| 格局 | 3房2廳2衛 |
| 房屋類型 | 單層 |
| 居住成員 | 夫妻2人 2個兒子 |
一、裝潢緣起
隨著兩個兒子一天天長大,需要的獨立空間也越來越多,家裡的歡笑聲固然溫暖,但偶爾的吵鬧和雜物也讓空間顯得越來越侷促。我和先生意識到,是時候讓孩子們擁有自己的房間,也讓我們和公婆都能保有更舒適的生活距離了。於是,「買房」這件事,就從一個念頭,變成了我們家庭的首要目標。
我們把地點鎖定在土城,這裡不僅有我們熟悉的成長環境和人情味,更重要的是,它的生活機能非常完整,學區、公園、市場一應俱全,完全能滿足孩子們的就學和放電需求。同時,這裡的房價相較於市中心,也更能讓我在預算內找到理想的坪數,這對務實的我來說,是個無需猶豫的選擇。
房子定了,接下來就是最重要的裝潢環節。這一次,我沒有像無頭蒼蠅一樣到處找設計公司,而是直接鎖定了晨陽設計。
其實在買房前,我就已經在網路上默默觀察了他們很久。我發現晨陽的作品總能給我一種「恰到好處」的感覺——沒有過度浮誇的裝飾,卻能在細節中展現質感;空間規劃非常重視實用性,尤其在收納和動線的處理上,總能看見他們為屋主設身處地著想的用心。對我這種注重細節、追求「坪效最大化」的人來說,他們的作品簡直是教科書等級。
另一個打動我的關鍵是,他們在網路上分享了大量的完工案例和施工過程,一切都非常透明化。從板材的選擇、工法的介紹,到預算的控管,都解釋得清清楚楚。這種專業態度,讓我感到非常安心。我知道,把家交給他們,我不需要時時刻刻緊盯現場,因為他們比我更在乎品質和承諾。對我而言,這份信賴感,是金錢無法衡量的。

完整裝修工具包(清單+話術+模板)已為你準備好!
二、需求列表
我們家很熱鬧,有我、先生和兩個精力旺盛的兒子。我夢想中的家,是能溫柔承接所有日常,讓我在孩子們的笑鬧中感到安心,在結束一天疲憊後,一進門就能瞬間放鬆的寧靜港灣。
因此,我鍾情於不過時的現代簡約風,喜歡由黑白灰構築的沉靜氛圍,讓我們的生活點滴成為空間裡最鮮活的色彩。
還還要有個功能強大的玄關,將所有雜亂阻絕於門外;客廳則要開闊、明亮整合收納,成為容納所有歡笑的核心。至於臥室,希望衣物都被門板妥善隱藏,不只看起來整潔、也避免積灰。
1.居住人數:我、我先生,還有兩個精力永遠用不完的寶貝兒子。
2.喜愛風格:喜歡簡約的現代風格,偏愛乾淨俐落的線條。
3.玄關設計:功能多樣的收納櫃,希望有穿衣鏡可以讓大家在出門前整理儀容。
4.客廳設計:電視牆與收納做整合,嵌入線型燈或無主燈照明,讓光線均勻地灑落。
5.主臥、兩間次臥設計:臥室都以簡潔為主,希望衣櫃的部分都有門板,可以眼不見為淨。
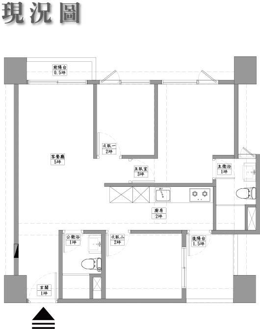
三、格局圖與動線規劃
考量到家裡兩個兒子,我對家的期望很明確:它必須是一個既能容納他們成長活力,又能維持整潔、讓生活井然有序的空間。在裝修初期,我就和設計師進行了非常深入的溝通,第一原則就是「預算要精準,空間要極致利用」。
我們並沒有選擇大刀闊斧地改變現有格局。畢竟,任何牆面的拆除或增建,都要更多的費用和更長的工期,這對於講求效率和成本控制的我來說,並不是最理想的方案。因此,我們決定在既有的基礎上,透過巧思來實現空間的升級。
我的核心需求是,即使在有限的坪數內,也要創造出寬敞、通透的視覺感受。
設計師非常精準地抓住了我的想法,他將設計的重心放在了「隱形而強大的收納」上。他沒有採用傳統笨重的櫃體,而是沿著我們一家人的生活習慣和動線,巧妙地配置了收納機能。例如,在玄關走廊設計了能順手放置外套、書包的隱藏式衣帽櫃;在餐廳旁規劃了深度恰到好處的餐邊櫃,讓散落各處的零食、藥品、生活雜物都有了歸宿。
這些櫃體不僅外觀簡潔,與牆面融為一體,減少了壓迫感,更重要的是,它們讓「收納」這個動作變得毫不費力。東西從哪裡來,就順手回到哪裡去,一切都變得直覺而自然。這樣的設計,不僅解決了小空間最頭痛的收納問題,也讓我們在不知不覺中養成了物歸原位的好習慣,真正實現了我心中那個「亂中有序、忙而不亂」的理想家庭樣貌。


工程進場前的放樣驗收 :
如果說簽下設計約,是把對家的想像交給了設計師,那麼「放樣驗收」這一天,就是我第一次真實地「觸摸」到我們未來的家。對我這種凡事講求精準、眼見為憑的人來說,這個步驟帶給我的,是無可取代的安心感和踏實感。
在現場,看著設計師和工班師傅們拉出的一條條墨線,我彷彿看到了一張從 2D 平面圖「站」起來的 3D 藍圖。那些原本只存在於圖紙上的數字和標示,此刻都化為牆壁的厚度、走道的寬度、櫃體的深度,清清楚楚地烙印在水泥地上。
我拿著設計圖,一步一步地走,用腳去丈量未來的空間。
「這個走道寬度足夠,以後搬大型家電或家具都沒問題。」
「主臥衣櫃的深度是 60 公分,沒錯,這樣我的大衣才不會卡到門。」
設計師說:在這個階段發現問題,成本是最低的。一條墨線的調整,遠比事後改掉一個櫃子來得省錢省力。這對我來說,就是最實際的!







完整裝修工具包(清單+話術+模板)已為你準備好!
四、一起來看我們裝潢後的美圖吧 !!
玄關:告別雜亂的玄關「戰場」!當復古花磚遇上現代極簡,一窺關於機能與秩序的開門序曲。
進門,迎接我們的是一條由復古花磚鋪成的清爽走道。左手邊這一整排的淺灰色櫃體,就是我最堅持的「玄關收納牆」。它採用了無把手的設計,看起來就像一面完整的牆,把我們一家四口的鞋子、外出備品全都完美地隱藏起來。對我來說,門面就是要這樣,整潔,沒有一絲多餘。
為了增加視覺的層次感,設計師用灰色的格柵屏風做了一個過渡。入口處這面大大的灰鏡,是我先生最滿意的地方,他出門前總要對著鏡子整理一下儀容。而對我來說,這面鏡子不僅實用,更重要的是它能在視覺上放大我們玄關的空間感,讓走道看起來一點也不狹窄。

▲ 這個懸浮櫃體設計,下方空間恰好成為室內拖鞋的隱藏式收納區,有效維持了玄關的整潔。底部的燈帶更是一大亮點,不僅在夜間提供引導,也讓家人能迅速辨識並更換拖鞋,避免了過去堵在門口的窘境,讓回家動線變得流暢而從容。


▲ 在收納牆的中段做了一個開放式的平台。這裡就是設計師規劃的「隨手置物區」。回到家,鑰匙、信件、買菜的零錢,都可以順手放在這個黑色的檯面上。
客廳 : 多機能與美學共存,打造最高空間利用率客廳設計。
一開始,我只知道我不想要傳統主燈,但具體怎麼做才能兼顧亮度和美感,其實很模糊。這時晨陽的設計師就給了關鍵建議,推薦我們採用「無主燈設計」,讓光線均勻地灑滿整個公領域。這個決定,可以說奠定了我們家開闊、清爽的視覺基礎,讓空間感瞬間放大。
而最讓我佩服的,是晨陽設計師對於「整合」的巧思。他將我們家的收納,從玄關、餐邊櫃一路延伸到電視牆,形成一條氣勢十足卻又不壓迫的「收納軸線」。所有櫃體都採用了同色系的淺灰無把手門片,讓巨大的收納量體化為無形,成為空間中最安靜、最沉穩的背景。

▲ 電視牆的部份,我只要求簡潔、好清理。晨陽設計師聽完便抓到重點,推薦我們用這款帶有手感紋理的淺灰色特殊漆,取代單調的油漆,讓牆面在光線下更有層次。
他也建議在懸浮電視櫃下方嵌入燈帶,說:「這樣不僅美觀,櫃體顯得輕盈,更重要的是方便掃地機器人暢行無阻。」這句話完全說進我心裡,當下就決定採納!

▲中間這個黑色烤漆玻璃的開放平台,更是神來之筆。設計師「適度留白,創造視覺焦點」的建議,巧妙地串連起客廳與餐廳。它既是電器櫃的延伸,也成了一個能隨心佈置的端景,擺上幾盆花或家人照片,就立刻為這個理性的黑白灰空間,注入了恰到好處的家的溫度。
餐廳:流暢動線,烹飪與品味兼具,開放式廚房打造上菜、小酌的完美場域。
因為家裡的坪數有限,所以我一寸空間都不想浪費。我們家的「收納軸線」從玄關、客廳一路延伸過來,在餐廳這裡,化身為一整面的餐邊櫃。
這個餐邊櫃,可以說是我們家的生活後勤中心。舉凡咖啡機、熱水瓶等小家電,孩子們的零食、備用藥品,甚至是我的烘焙工具,全都被井然有序地收納在這面淺灰色的櫃體中。
檯面我選擇了黑色烤漆玻璃,不僅呼應了黑白灰的主題,更重要的是,它非常好清理!這對時常需要處理食物、飲料的區域來說,簡直是懶人福音,抹布一擦就乾乾淨淨。


▲ 上方這盞灰藍色的吊燈,是我們與設計師一同挑選的,它像一個溫柔的焦點,將用餐區域凝聚起來,也為這個理性的空間,增添了一抹柔和的色彩。
廚房:以淺藍色烤漆玻璃取代傳統磚,明亮、無油垢死角的高效料理空間。
我對廚房的要求很簡單:明亮、好清潔、高效率。
在有限的一字型格局中,我選擇大面積的白色廚具來放大空間感。為了徹底解決油污問題,設計師推薦捨棄傳統磁磚,改用一整片淺藍色烤漆玻璃牆面,不僅增添清新感,更重要的是一擦即淨,不用特別清理磁磚與夾縫了。

▲從嵌入式電器櫃到上下吊櫃,都將空間利用到極致。最後,在上櫃點綴了淺色木紋門板,巧妙地為這個以實用為主的純白空間,注入了一絲恰到好處的暖意。
主臥室:以深淺灰拼接滑門作為視覺主體,搭配俐落的調光捲簾,構築極致舒眠場域
主臥室在色調上,設計師延續了公領域的簡約,但選擇了更柔和、更安靜的淺灰藍色作為牆面的主色,營造出被溫柔包覆的感覺。
床尾這整面的衣櫃,是我在這個房間裡最滿意的設計。我跟設計師說,我需要「海量的收納」,但又不要它看起來太過笨重。於是,設計師採用了滑門的設計,這樣即使在床尾的走道空間,開關門也完全不受影響。
而窗簾的部分,晨陽推薦我選擇了調光捲簾。設計師說,傳統窗簾厚重且容易積累灰塵,不符合我對「好整理」的最高要求。而調光簾這種一虛一實的條紋設計,讓我能非常精準地控制進光量。
平日早晨,我會將簾子調整到半透光狀態,讓柔和的太陽光喚醒我們;需要休息時又能完全閉合,達到近乎全遮光的效果。它俐落的外型與簡潔的線條,也完美地融入了整個空間的現代風格,可以說是在機能與美感上都完全滿足了我這個細節控。
對我來說,主臥室不需要太多複雜的功能,它只需要安靜、舒適,並把所有雜亂都妥善地藏起來。現在,這個房間完美地做到了這一點,每天能在此安然入睡,就是對這次裝潢最大的肯定。


▲最巧妙的是門片的設計。它不是單調的一整片,而是用了深淺兩種灰色做了幾何拼接,看起來就像一面裝飾牆,既有趣味性,又成功地削弱了櫃體的壓迫感。

▲ 櫃體側邊還規劃了開放式的層架,讓我能放一些睡前讀物或香氛小物,兼顧了「藏」與「顯」的收納彈性。
次臥:整合式書桌與上掀床頭櫃,在有限空間中創造出兼具安全、實用與個性的成長基地。
在規劃兩間兒子的房間時,我不想要做任何花俏的設計,而是把重點放在打好「實用」與「耐用」的基礎上。
整個房間的基調和我家的主風格一樣,是乾淨的白色與中性的灰色。讓他可以用自己的收藏、海報和作品,去填上屬於自己個性的色彩。這樣的設計,才不會因為他們年齡增長、喜好改變,而需要再次大興土木,這才是我眼中最精明的長遠投資。
對我來說,給孩子一個房間,不只是給他一張床,更是給他一個學習獨立、管理自己物品的起點。看著他現在能主動地把書本放回書架、把衣服收進衣櫃,我就知道,這次的堅持與投入,一切都值得了。

▲ 設計師巧妙地將書桌與床頭櫃結合,形成一個書桌的延伸,可以隨手放置鬧鐘或睡前讀物,將空間利用得淋漓盡致。床頭櫃上掀式的設計,讓我們更方便收納床聚集冬被。

▲衣櫃側邊這個的開放式書架,圓弧設計讓空間線條更柔和,也提供了一個展示他們心愛模型或書籍的小天地。深灰色的內層也與書桌檯面相互呼應,讓整個空間在簡潔中又帶有設計的層次感。
五、裝修後的夢想家
入住新家至今,每天感受著陽光在俐落的空間中流轉,我就知道當初的堅持與選擇都是對的。晨陽設計團隊為我們打造的,不僅僅是一間裝潢精美的房子,而是一個真正理解我們生活方式,並將其完美實現的「家」。
回想最初,就是被設計師那份獨有的細心與清晰的邏輯思維所打動。身為一個對數字和細節有著職業病的會計,我最怕遇到含糊不清、只談感覺的溝通。但晨陽的設計師完全不同,從第一次見面開始,他總能有條理地引導我們,從「如果下雨天回家,動線會是怎麼樣?」、「零食和藥品最常在哪裡使用?」這種極其生活化的角度出發,去梳理每個空間的使用情境。這種對生活細節的精準推演,讓我從一開始就感到非常安心。
我的要求比較苛刻,設計師完全理解我這個「控制狂」媽媽的點。我記得我們為了廚具的高度、櫃體的深度,甚至是光線反射的角度,來回討論了好幾次。每一次,設計師都不厭其煩地解釋他的設計邏輯,甚至直接在現場模擬未來使用的狀態給我看。他不會強硬地推銷某個「樣板設計」,而是真正傾聽我們的生活習慣,然後提出最適合的客製化方案。這種以人為本、不流於公式的設計態度,真的讓我非常感動。
裝修過程橫跨了幾個月,因為工作忙碌,我不可能時時刻刻盯在現場。這時,晨陽設計的工務系統就發揮了最大價值。他們的工務主任非常負責,我幾乎每天都能在通訊軟體上收到最新的進度照片和說明,有任何疑問也能立刻得到解答和處理。我們家有孩子,我對建材的健康標準自然很在意,設計師也主動幫我們挑選低甲醛的環保板材,並耐心解釋各種材質的差異,直接省下了我大量做功課的時間。這讓我深刻體會到,一個專業的團隊,價值就在於幫你「省心」,並在你沒想到的地方,為你多想一步。
現在,看著這個從期待、規劃到完整實現的家,那份成就感真的難以言喻。入住這段時間以來,我們越來越能感受到,這個家的每一處設計,都精準地貼合著我們的生活動線。一切都那麼順手、那麼井然有序。再次感謝晨陽設計,是他們的專業與用心,讓我們擁有了一個住起來如此舒心、幸福的家。








