想瞭解服務流程
丈量費用多少
想瞭解收費方式、收費節點
裝修預算怎麼抓
設計方案包含家具規劃嗎
該在什麼時候找設計師
設計師會合理控制預算嗎
找設計師前要做什麼準備
有案例平面圖嗎
設計費怎麼收
想瞭解服務流程
丈量費用多少
想瞭解收費方式、收費節點
裝修預算怎麼抓
設計方案包含家具規劃嗎
該在什麼時候找設計師
設計師會合理控制預算嗎
找設計師前要做什麼準備
有案例平面圖嗎
設計費怎麼收
一、裝修的念頭
我長期在大陸經商,全家也一起過去,媽媽也在那幫我看前顧後,照料生活起居。現在媽媽年紀大了,無法再兩地來回奔波,所以我們決定讓媽媽今年回台休息,開始人生的新篇章。
2025 空間設計包免費領!
收納超省空間,小坪數救星!
二、朋友介紹的設計師
設計師是朋友介紹的。坦白說,我回台的時間並不多,也沒有另外再找其他的設計公司比價詢問。朋友跟設計師參加同一個社團,認識10多年了,他說設計師是個很可靠的人,公司口碑也很好。
三、我要的功能
由於我在大陸從事安養機構相關事業,所以在規劃媽媽的退休宅時,我最在意使用高度的細節,包括廚房檯面、浴室設備、沙發高度等等。這些細節會讓長輩在生活使用上更加舒適、安全,減少膝蓋關節的負擔。
我認為,把我要的功能和需求清楚地告知設計師是我的責任;至於如何完成,實現得多美,那就是設計師的專業,也是他要動腦的部分。
我的要求:
- 站著的使用高度:80-90cm。
- 坐著的使用高度:45-50cm。
- 馬桶的底部要架高,整體高度要有50cm。
- 浴室的沐浴龍頭要高度90cm,下方要有隔板,方便長輩坐著沐浴。
- 長輩視力退化,室內照明亮度需足夠,要有間接光源。
- 臥房西曬嚴重,希望加強隔熱的功能。
- 室內地板高度盡量一致,避免高低落差。
- 入口處需設置玄關隔屏。
- 櫃體轉角要有小圓弧,避免尖銳轉角
- 空間氛圍舒適溫馨,有足夠的收納,好整理
- 其餘家電,電鍋、微波爐、熱水爐,風扇及沙發採用電動沙發
帶走上百屋主驗證的《裝修最全指南》,簡訊免費發您
四、格局分配

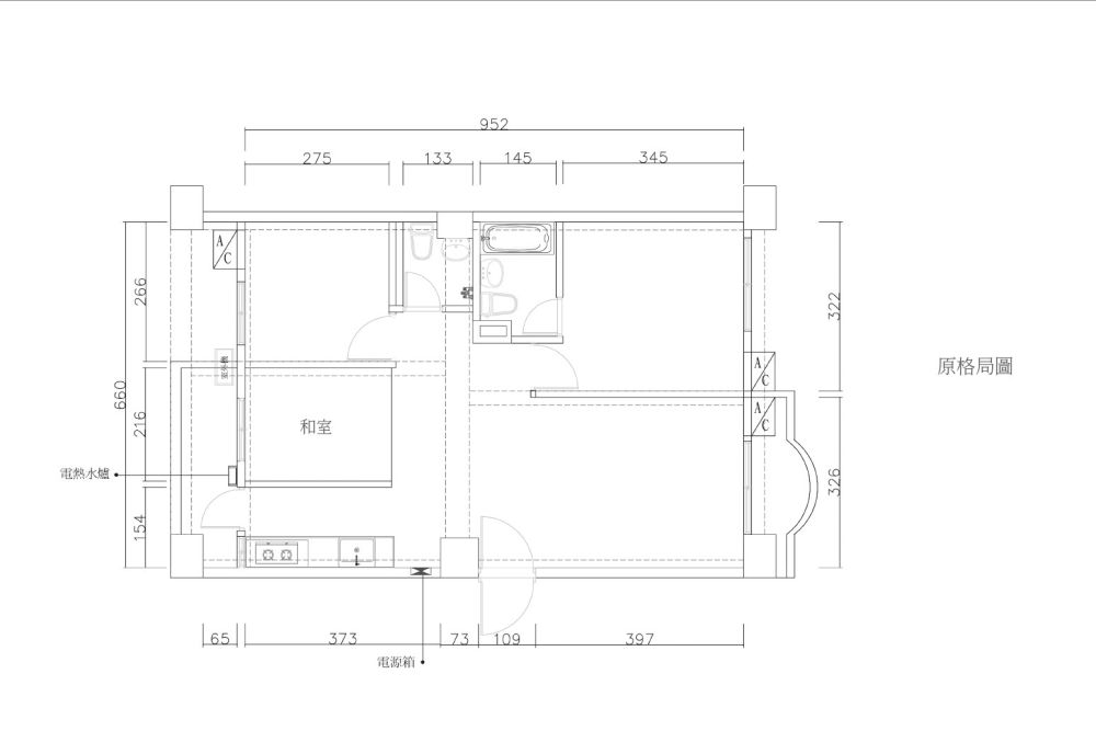
◆ 原格局圖—預計和室拆除
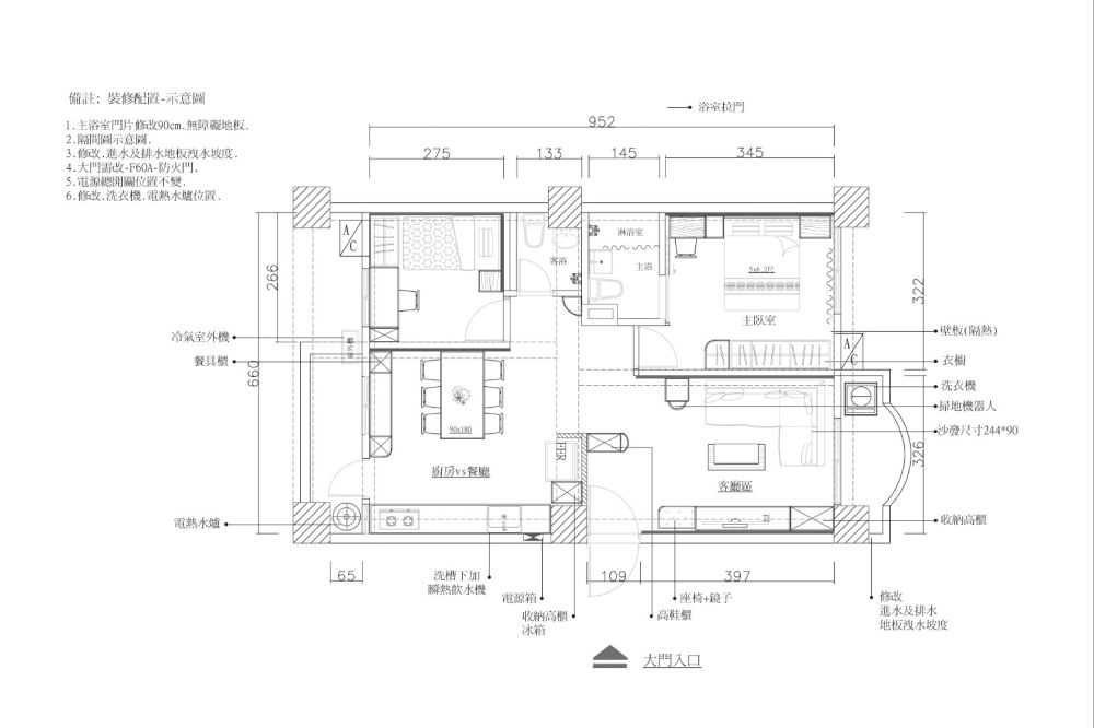
在格局方面,設計師有建議我將餐具櫃設置在次臥與廚房共用的那面隔間牆。至於我提出的玄關隔屏想法,設計師說因為大門並沒有正對客浴門,其實是可以不用特別區隔,如果不隔,還能保留我想要的對流風。
另外,設計師也建議把主臥房門往後移一點,這樣可以增加沙發背牆的寬度,讓整體空間、視覺比例更加舒適。

◆ 平面配置圖
◆ 最後,我還是依照我原先的想法,規劃玄關隔屏(櫃),拆除和室增加餐廳空間,餐具櫃移至窗戶這面牆,其餘格局不變。

◆ 水電弱電及燈具迴路圖。
◆ 客廳、餐廳、主臥及次臥,每個空間都有我想要的間接照明設計。
五、完工收尾

◆ 像設計師說的,如果沒做玄關櫃,視線沒有遮擋,空間看起來會更寬闊。

◆ 客廳

◆ 客廳

◆ 客廳的一角

◆ 客廳往餐廳看去
◆ 在走道部分,設計師增加了扶手功能

◆ 廚房

◆ 廚房

◆ 餐桌
◆ 公共空間都採用調光捲簾

◆ 餐廳看過去

◆ 主臥

◆ 主臥

◆ 主臥

◆ 次臥

◆ 次臥
其實剛開始接洽時,我有點猶豫,因為設計師在台北還有案子,我擔心簽約後我的交期會不會一拖再拖。還好,簽約後從需求討論到圖面、到後續的工程監工,設計師都全程參與。
因為我每個月只會回來幾天,要處理的事情很多,所以工程部分全權委託設計師處理,設計師每日都會在LINE群組上傳今日進度,有任何需要討論或調整的地方,也即時在群組裡溝通確認。
整體來說,這次的合作流程符合預期,設計師在時間管理與溝通上都有掌握好,工程進度也如期完成,沒有太多需要我額外處理的部分。目前工程已完成交付,接下來就是實際使用,再看細節狀況是否如預期。








