想瞭解服務流程
丈量費用多少
想瞭解收費方式、收費節點
裝修預算怎麼抓
設計方案包含家具規劃嗎
該在什麼時候找設計師
設計師會合理控制預算嗎
找設計師前要做什麼準備
有案例平面圖嗎
設計費怎麼收
想瞭解服務流程
丈量費用多少
想瞭解收費方式、收費節點
裝修預算怎麼抓
設計方案包含家具規劃嗎
該在什麼時候找設計師
設計師會合理控制預算嗎
找設計師前要做什麼準備
有案例平面圖嗎
設計費怎麼收
一、裝潢緣起
以前租房子的時候,什麼都得小心。牆上不能釘釘子、不能改變地板,只能靠無痕膠和一些臨時的軟裝撐起想要的感覺。住久了也就習慣那種「差不多就好」的狀態。後來有了自己的房子,就希望能真正按照生活需求去規劃,包含收納、動線、光線等細節。
在決定裝潢之前,我們也看了不少設計公司。每家都有自己的風格,但有些在溝通上比較難對焦,不是我們的想法沒被理解,就是預算落差太大。後來跟晨陽設計接觸之後,溝通起來就順暢許多。設計師聽我們說想法的時候,不只是點頭記下,而是會進一步討論可行性,幫我們調整成更實際的方向。有時我們提出一些比較臨時的想法,他們也願意配合討論,不會直接否定。預算方面也可以透過材質的運用
整體過程下來,很多細節都能提前釐清,讓我們很放心。最後會選擇晨陽設計,主要就是因為他們能在設計與生活之間找到平衡,做出真正符合我們需求的家。
裝修預算規劃與避坑清單
含Excel模板,限時0元領取
二、需求列表
我們一直很嚮往可以住在那種有明確主題風格、高質感的房子裡。現在小孩大了,大多時候住在外面,只有偶爾回來一次,所以家裡東西也不多,加上我們有固定斷捨離的習慣,不太會囤積東西,因此對於收納空間並沒有特別的需求。
居住人數:2+1位大人(孩子偶爾回來住)。
喜愛風格:藍色系、北歐、簡約、高質感。
玄關:乾淨大方的鞋櫃。
客廳:有特色的電視牆和沙發背牆,還有簡單的展示櫃及電視櫃。
餐廳:希望用餐環境讓人感覺像在外面餐廳用餐,旁邊還有可以放一些咖啡機、麵包機之類的地方。
主臥:旅館特色房間感,有個簡單的化妝桌,另外也想弱化主臥衛浴門的存在感。
次臥:以簡約乾淨為主,要有基礎的衣櫃和書桌。
公領域:天花板上有大樑,希望可以做造型,讓他不突兀。此外,電閘的部分希望可以美化一下。
三、格局與動線規劃
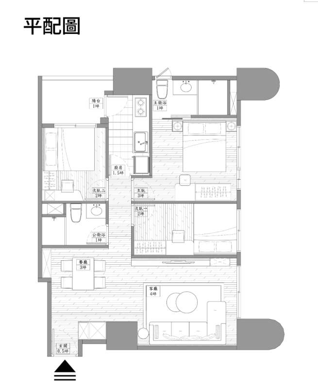
依照原始格局,基本上無論是房間還是衛浴,動線都集中在廊道上。唯有一間次臥,必須穿過客廳才能進出。只要客廳有人看電視或活動,就會互相干擾,使用上不太順。
後來設計師幫我們調整,將那間次臥的出入口改至廊道上。這樣一來,公領域和私領域就能分開,不會因為動線重疊而彼此影響。整體空間的使用也更清楚,生活起來方便許多。


工程進場前的放樣驗收 :
雖然設計圖上能清楚看到格局和動線的規劃,但畢竟更動格局是大事,還是得實際看到現場才能放心。放樣驗收那天我們到達現場時,工務團隊已經依照設計圖將整個房子都標記出櫃體尺寸、位置線條了。
設計師也在現場跟我們仔細說明動線的安排,也和我們逐一確認材料與尺寸細節。透過實際走一遍空間,很多原本只能想像的部分都變得具體。看著整體規劃一步步落實,我們對這個家的未來也更有信心,心裡踏實許多。



2025最新最全裝修省錢避坑指南免費領!
四、一起來看我們裝潢後的美圖吧
客廳區:保有高質感的清爽舒適空間,就是我們想要的生活方式
就像前面說的,我們調整了臥室出入門口位置,也還給客廳一個完整的空間和乾淨的動線。我們櫃體做的不多,牆面因此留下了大片空白。設計師以藍色格柵搭配灰紋塑麗板,勾勒出北歐風的俐落層次,為小宅注入高質感的視覺焦點。


▲做滿寬度的電視櫃讓我們保有基本的收納空間;藍色格柵電視牆搭配大面積白色大理石紋美耐板,視覺乾淨有重點,看電視時視覺也不會被過度干擾。

▲沙發背牆以灰色為主色調,並運用幾何切割設計增添視覺層次;同時搭配鏡面與大理石紋美耐板,不僅呼應電視牆,也讓整體空間更有質感與細節感。
餐廳區:延續客廳牆面設計,兼具實用與質感,打造自己的理想餐廳
一開始和設計師討論時,我們就希望餐廳區能有像在外面餐廳用餐的感覺。設計師很好地幫我們把這個想法實現出來,餐廳延續了客廳的藍色格柵牆面設計,不僅視覺一致,搭配島型鏡面,也讓用餐空間更有氛圍,看起來更寬敞。


▲每天早晨起床在這裡喝咖啡,心情超滿足。

▲餐桌旁邊有一個凹進去的空間,設計成儲藏櫃剛剛好,可以放各種生活用品或不常用到的東西,使用上方便,看起來也乾淨有秩序。

▲島型鏡面有背光設計,光線柔和不刺眼;旁邊牆面做了與儲藏櫃門片同尺寸的隱藏門,把電閘巧妙遮住。

▲廚房空間有限,所以我們把電器櫃移到餐廳區,剛好靠著梁柱擺放,深度合適,也與造型梁柱齊平;中間梁柱延伸至天花板,將原本突兀的大樑包起來,也自然區隔了客廳與餐廳,空間依然通透。
主臥:隱藏門融入牆面,安靜舒適的特色主臥
我們希望主臥有旅館般的特色主題,因此延續了公領域的設計風格,用藍色格柵牆面作為視覺焦點。偏灰藍色調的牆面,簡單乾淨,少了多餘的裝飾,反而讓空間更安靜舒適。連接衛浴的門改成平推式隱藏門,不僅節省空間、操作方便,也讓牆面看起來完整俐落。

▲化妝桌及衣櫃依據我們的生活動線,安排在床尾。

▲床頭特別裝了掛畫軌道,可以隨時更換我們喜歡的畫作,讓臥室多了些變化,也更有屬於我們自己的味道。
次臥一:2坪窄長格局,也能功能完整
孩子平常都住在外面,只有偶爾回家或有親友來住幾晚才會用到,所以我們規劃了兩間次臥:一間主要給孩子偶爾使用,另一間則留給親友或作為彈性空間。兩間房間都沒有特別要求,只希望保留基本的衣櫃和書桌,整體以乾淨簡約為主,再加一些收納就好。
這間房間格局偏窄長,牆面貼上米色立體編織紋壁布,讓空間看起來溫暖有質感。衣櫃和書桌採淺色木紋一體化設計,沿著牆面排列,有效利用了每一寸空間。由於房間實在太窄了,我們與設計師多次討論,最後決定捨棄掉床頭板,讓視覺更開闊,不會有被侷限住的感覺。

▲床架底下設有抽屜,可以收納換季衣物或不常用的物品。
次臥二:小空間大功能,書桌衣櫃L型一體化設計
這間房間坪數雖小,但格局方正,設計師幫我們把衣櫃和書桌做成L型結合設計,充分利用空間。牆面同樣貼上米色立體編織紋壁布,簡約不單調。衣櫃採藍灰色調,結合開放式收納格,可以放書、文具或一些零散生活用品,拿取也方便。床架則和第一個次臥一樣選用有收納功能的款式,好用又不浪費空間。

▲開放式收納格使用很方便,放什麼都行,也能快速拿取,偶爾擺上相框或小裝飾,也可以讓空間多了一點生活感與人味。
五、裝修後的夢想家
回想從租屋到現在擁有自己的家,真的差很多。以前很多生活上的想法都得將就,現在終於能依照我們的需求和習慣去打造空間,每一處都覺得順眼又實用,住起來很有歸屬感。
裝修過程中,晨陽設計給我們很大的幫助。像我們有時候表達得比較模糊,設計師都會耐心地一步步幫我們釐清,確認哪些是我們真的喜歡、哪些只是靈光一閃的念頭。在收納規劃上,因為我們有固定斷捨離的習慣,原本沒特別要求,但他們也會提醒考量到未來生活變化,至少要預留比現有物品多一點的空間。這些細節讓我們覺得他們不只是設計房子,而是真的在替我們設想生活。
現在每天回家看到這個空間,都還是會覺得有點不可思議。從設計圖面到變成實體,真的會有一種「這就是我們親手參與、一起完成的家」的滿足感。








