美化我家不費力·風格換新零門檻
想瞭解服務流程
丈量費用多少
想瞭解收費方式、收費節點
裝修預算怎麼抓
設計方案包含家具規劃嗎
該在什麼時候找設計師
設計師會合理控制預算嗎
找設計師前要做什麼準備
有案例平面圖嗎
設計費怎麼收
想瞭解服務流程
丈量費用多少
想瞭解收費方式、收費節點
裝修預算怎麼抓
設計方案包含家具規劃嗎
該在什麼時候找設計師
設計師會合理控制預算嗎
找設計師前要做什麼準備
有案例平面圖嗎
設計費怎麼收
一、前言
舊家是比沙列設計總監設計的,一住就是十年,這次換新家,雖然是棟老房,但想想既然當初把我的舊家打造得這麼舒服,過了十年當然還是想再找他們,這份信任感是無價的,因為他們對我的生活習慣和需求算是熟悉,溝通起來省去許多磨合時間,這點真的非常重要。

裝修前的樣子:




完整裝修工具包(清單+話術+模板)已為你準備好!
二、設計需求
我們對新家的核心需求是「貓與人共生」,設計上必須把貓咪的感受擺在前面,例如設計貓門並且在貓門旁邊都有放置貓咪費洛蒙機的插座,讓牠們可以舒服在各個空間穿梭,不被房門擋住。而家裡附近有不少流浪貓,所以我們也想要規劃一個給浪貓自由進出、遮蔽風雨的空間,讓牠們有個避風港。萬一下大雨寒冷或者是颱風天浪浪們可以躲進我們家休息避難。

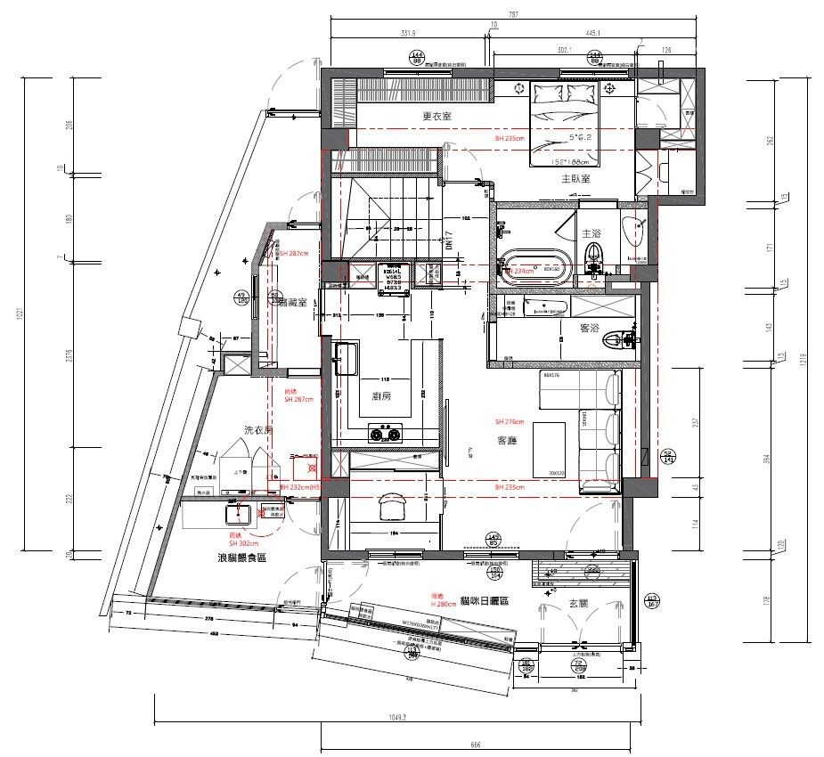
三、格局變化
這棟房子有兩層樓(一樓和地下室),像一樓原本是一個開放式的大客廳、廚房,並只有一間臥室和一間浴室,最惱人的是那個圓形鐵件樓梯,佔空間又不好走。

因此設計師建議把樓梯改造結合貓跳台與收納功能,並將廚房改到前半部,讓公領域都集中在前面,還新增了一間客衛浴,原本後面的廚房位置,就順理成章變成了主臥室跟更衣室。

地下室原本是一個單純的大空間,設計師依照我們的需求,規劃成儲藏室和貓咪們的專屬活動空間。
為了讓貓咪們自由出入,陽台則規劃為貓咪日曬區可以享受陽光的溫暖。


四、完工分享
一樓
玄關+貓咪日曬區+TNR浪貓救援區
玄關特別挑選了原木大門,相較於一般的門真的質感許多,玻璃屋設計師幫我們用白膜玻璃,讓玄關有充足陽光但又不會太刺眼。而貓咪日曬區是給我們家貓主子們專用的,有窗戶保護起來,浪貓區則給外面的浪貓用,兩個區域之間多做了一道三合一門隔開,這樣既照顧到附近的浪貓,又能確保家貓的安全。
客廳
客廳和書房是連通的,中間用一道透明玻璃門隔開,這樣視覺上既不狹窄又通透。我很喜歡設計師在客廳背牆的處理,背牆是弧形造型,再搭配弧形燈條的設計,整個空間氛圍感馬上柔和了起來。
其實書房這個空間是在跟設計師討論後期才追加的,因為我認為需要一個跟貓咪隔開、專心辦公的私人小空間,除了滿足了我辦公的需求,其實後面的大型書櫃也有巧思,撥了一小部分出來當電視與網路的機櫃,讓線路跟設備都藏起來,視覺上十分乾淨。


廚房+儲藏室
廚房設計成ㄇ字形櫃體,外加完整的電器櫃,讓家電、乾貨及雜物的收納量非常足夠,往廚房裡面走有一間儲藏室,主要用來放掃地機器人和充電座,還有一些家電像是電風扇和除溼機,解決了我需要大量收納貓用品和工具設備的需求。

主臥室+更衣室+梳妝區
主臥室是一個複合式空間,梳妝區跟書櫃區中間原本有根建築柱體,設計師利用這個柱體當作分隔線,隔成梳妝區跟書櫃區兩個小空間,而這兩區合起來形成了一道完整的造型牆面,也就順勢把原本礙眼的柱體虛化掉了,處理得超級巧妙!而梳妝區有特別安裝門,主要我有大量的瓶瓶罐罐,關起門來能避免貓咪進去搗蛋或把東西推倒,然後書櫃區除了放書,還可以放包包等其他雜物,對我來說都是非常實用的規劃。

衛浴
原本是只有一間廁所,這點不太方便,因為我家時常有親友會來訪,還是覺得需要兩間,所以新增了一間客衛浴,客人來能做使用,裡面還可以放貓砂盆,而主衛浴的部分則增加了想要已久的浴缸。

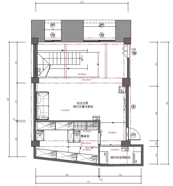
地下室
樓梯
樓梯扶手使用了1公分強化玻璃,視覺上讓整個串聯到地下室的過道更通透、更亮,樓梯間雖然只有一盞造型主燈,但設計師搭配了踢腳條燈增加明亮度,晚上走起來也更安全。整個樓梯用玻璃扶手,也不怕貓咪從高處掉落。

起居室/貓咪放養活動區:
這個空間完全是為了貓咪設計的,裝了各種牆上的貓跳台、大型貓抓板,未來還有空間可以繼續增加很多貓跳台讓牠們盡情地跑跳玩耍,樓梯下方三角櫃做了層板收納與挖洞,貓咪可以從這裡鑽進鑽出,整個空間都是牠們的遊樂區。



B1儲藏室
跟一樓儲藏室用途不同,B1的儲藏室可以大量收納貓咪生活用品,例如各種貓咪的保健品保養品還有貓咪外出籠。
五、完工心得
從2025年初的設計討論開始,設計+完工歷時十個月,從大門、窗戶、外觀到內部裝修全部都是特別是設計,還要處理老屋的化糞池跟水塔結構問題,確實是很費工、需要多花心思。
很喜歡設計師在每個細節上的用心,搬進來之後,完全沒有住新家的那種不適應感,因為整體的感覺就是溫馨、舒服。這次設計師規劃的一些巧思,我都超級滿意,包括柔和又安全的圓潤轉角、梳妝台跟櫃體檯面用了磁磚更耐刮耐髒,質感又好,門口的踏板、樓梯的寬敞度、貓門尺寸都剛剛好,每一個貓咪洞的旁邊都裝設貓咪費洛蒙機的插座,還有貓砂盆可以放浴室跟隱藏在櫃體裡面,讓貓咪有很多地方可以上廁所,真的完全都是為了人貓共生的設計!甚至設計師挑選的家具跟燈飾、原木大門,窗戶和外觀都超好看,唯一的缺點大概是房子變大了,打掃時間更多,然後要一直爬樓梯而已,但這些都是甜蜜的負擔!很感謝比沙列設計,設計師完全把我們的需求整合進去,經過十年後再交給他們,依舊是非常放心和滿意。







