隨手换装,輕鬆感受装修效果
想瞭解服務流程
丈量費用多少
想瞭解收費方式、收費節點
裝修預算怎麼抓
設計方案包含家具規劃嗎
該在什麼時候找設計師
設計師會合理控制預算嗎
找設計師前要做什麼準備
有案例平面圖嗎
設計費怎麼收
想瞭解服務流程
丈量費用多少
想瞭解收費方式、收費節點
裝修預算怎麼抓
設計方案包含家具規劃嗎
該在什麼時候找設計師
設計師會合理控制預算嗎
找設計師前要做什麼準備
有案例平面圖嗎
設計費怎麼收
厭倦了一成不變的客廳配置嗎?森鼎設計的新案【浮夢/Fomo】徹底打破一般人對家的想像,以旋轉電視柱取代傳統電視牆,為公領域創造了無限彈性與開闊視野!本次100小編特別邀請屋主潘小姐,親自分享從裝修前期的挫折到找到契合的設計師,一步步實現這個細節滿分的新家的過程,並一起深入了解還有哪些令人驚豔的設計細節!
Q:一開始想換新房的原因?是什麼契機之下找到現在的設計師?
A:搬到台南工作後的第二年,就萌生了要在這裡買房的念頭,當時選擇預售屋,主要考量是付款壓力沒那麼大,而且離公司近、周圍環境又舒服清幽,於是,人生的第一間房子就這樣勇敢地簽下去了!
既然是第一個屬於我們的家,當然想打造成最理想、最舒服的模樣,不過那時候面對客變完全是懵懵懂懂,匆忙地找了設計師將格局調整成喜歡的配置,但中間的合作過程卻出現了許多不順利,比方說設計師不懂我們想要的是什麼,來回多次的溝通讓人心累等等,因此交屋後,不得不和原本的設計公司終止合作,重新找尋最適合的設計師!
有了前一次的經驗,在找新設計師時就更加謹慎了,花了更多時間瀏覽各設計公司的作品集,卻發現喜歡的風格大多出自北部的設計公司,掙扎許久如果選擇北部公司,工班調度、跨區監工等問題,真的可行嗎?但那些超有設計感的作品又實在讓人難以割捨~正當還在猶豫到不行時,一個偶然的機會在臉書上看到了森鼎設計的作品,作品風格令人眼睛為之一亮,而且設計公司也是在台南,馬上就約了諮詢,一聊之下發現設計師能理解所有我們對於「家」的想像與需求,那種默契是心有靈犀的程度!而且發現設計師默默地把我們所有提出的想法、喜好都仔細地記錄下來,是一個細心又認真的人,當下就在心裡默默決定:就是她了!這份信賴感給了我們十足的信心,相信她一定能規劃出一個完美的空間。

完整裝修工具包(清單+話術+模板)已為你準備好!
Q:格局是怎麼配置的?設計師當時有提出哪些建議呢?
A:由於對房間數的需求,以及希望家裡能盡可能開闊明亮,在客變期就把原本的三房格局,改成了只有主臥和客臥的兩房配置,拆除的那個空間則規劃成餐廳區,本來想說在中間放置沙發區隔客餐廳兩個空間,但設計師提出了更棒的建議:將沙發放在原本要作為電視牆的位置,這麼一來視線就不會被一道實牆阻擋,而是能直接欣賞窗外大片的景色,我們一聽就覺得超有道理,當然立刻採納!
另外,我喜歡在窗邊發呆放空,所以特別要求設計一個「放空區」。同時為了收納一些像是行李箱之類的大型物品,以及置放電子衣櫥,也規劃了一個儲藏室,巧妙地利用儲藏室的一部分空間來置放電子衣櫥,這樣完全不影響家裡的行走動線,非常讚!

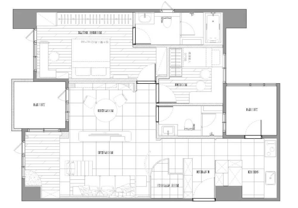
▲平面規劃圖
Q:對於新家還有哪些設計需求?
A:為了方便看,我列出幾項當時和設計師溝通的重點──
1.侘寂風,洞石、弧形、藝術塗料、淺色系(帶粉色),不要太多木紋
2.增設貓洞
3.融入智能家居系統,像是自動開關窗簾、燈光、音響
4.預留放音響、擴大機、PS5的位置
5.收納櫃必須足夠,但不要滿滿一排制式化的櫃子
Q:完工後有哪些設計亮點可以分享的呢?
A:因為每個空間都非常喜歡~所以想好好介紹一下我們喜歡的部分是哪些。
★玄關
鞋櫃是用藤編材質,符合侘寂風的元素又兼具通風透氣的功能,那時候想說一進門想要有一個特別的亮點,找到這個月球燈我覺得超美,而且符合家裡的風格,實際安裝完之後效果很不錯,一進門就會注意到這個亮點。

由於需要一個能放得進所有雜物和大型物品的儲藏室,設計師考量了動線、尺寸和電子衣櫥的位置,最後規劃出來的大小恰到好處~還刻意開兩個小窗,這是設計師的貼心設計,因為進出儲藏室通常都很快速,開了小洞就可以直接借外面的光取代照明,省電又方便。



★客廳
希望公領域開闊,所以把電視牆捨棄掉,從森鼎官網的其他作品看到這種旋轉電視之後有種發現新大陸的感覺,馬上決定採用!這樣一來,坐在沙發的位置往外能看到窗外風景,待在室內又能有開闊的視野,而且電視還可以轉到餐廳那邊,一舉數得啊~


管線部份都隱藏在底座了,還有預留音響及其他設備的位置,搭配起來很剛好。

整個家的牆面幾乎都塗刷藝術塗料,沙發背牆這邊有裝設弧形板,局部刻意塗刷洞石紋理,顯得沙發牆更有層次,也能隱藏內嵌音響的線路。

窗邊的放空區是我堅持想做的,完全不後悔有做這個區域,我常坐在這邊往外看、放放空,非常療癒。想分享一下那個櫃體,本來就不喜歡一般方方正正的櫃體,但像這種壁龕造型我就特別喜歡,不規則狀是設計師現場畫線條做出來的,一看到就覺得很對味,而且還加了線燈設計,超美!


大樑的部分用弧形修飾得非常柔和,本來想說那天花就保持平釘就好,沒想到設計師也規劃了不同角度的弧線,而且同樣採用線燈,整個空間不管開不開燈都非常有質感。



★餐廳
餐廳也有這種不規則狀線條設計,我真的大愛~

因為需要擺咖啡機等小家電,有增設餐邊櫃,並且增加一些層板收納,覺得很方便,下面開了一個貓洞方便貓咪進出房間和公領域,超可愛的啦!





★臥室
臥室的元素延續了公領域空間,色調有稍微偏橘一些,但整體是協調的。


我自己認為那種有櫃門的衣櫃看起來比較壓迫,因此以開放式的方式去規劃,其實省了板材厚度能收更多件,布簾有搭配智能家居系統,會自動整片打開或關上,不用手酸拉老半天,而且整面打開的過程真的蠻有儀式感的~

Q:經過這次的裝修經驗,有特別印象深刻的事情嗎?對於設計師有什麼樣的反饋呢?
A:事實證明當初決定換設計公司,真的是最正確的決定!目前入住幾個月以來,沒有任何不滿意的地方。可能上次不愉快的經驗讓我們嚇到,所以在更換設計公司後,做足了功課,前期的溝通可以說是超詳盡確實,自認是積極參與的屋主,因此能找到一位態度同樣積極的設計師實在太棒了!我們一有問題,就會馬上約見面解決,設計師的配合度也極高,不僅細心又勤勞,每天都會在案場緊盯進度回報,同時對工班的品質要求也相當嚴格。
我個人覺得最印象深刻的是溝通的效率,例如在挑選顏色時,面對那麼一大本色卡是很難看完的,但設計師會主動縮小範圍,精選幾個顏色讓我們做最後決定,不得不說設計師所挑選的,還真的就是我們會選擇的顏色,這也是為什麼我一開始就說根本心有靈犀,總是能懂得我們要的是什麼,但又不會強迫全部聽她的,最終的決定權還是在我們,完全能感受到設計師一定是很認真地思考過,才會給出建議~
記得那時候還沒安裝燈具,常晚上到現場開著手電筒看進度,看著圖面上的一筆一畫,一點一滴變成眼前這個空間,最後完工的樣子就跟想像中的一模一樣,非常感動,感謝森鼎設計完成了我們的夢想。
Q:有沒有一些能夠給裝潢新手的建議?
A:多看圖片影片、多參考別人的家找靈感,然後絕對要找到和自己合得來的設計公司,一切都不要太快做決定,該捨棄的就要勇敢捨棄,一旦發現不喜歡或不對勁,就要馬上換,千萬不要硬著頭皮撐下去啊~或許會跟我們一樣得到更好的成果也說不定喔!








