想瞭解服務流程
丈量費用多少
想瞭解收費方式、收費節點
裝修預算怎麼抓
設計方案包含家具規劃嗎
該在什麼時候找設計師
設計師會合理控制預算嗎
找設計師前要做什麼準備
有案例平面圖嗎
設計費怎麼收
想瞭解服務流程
丈量費用多少
想瞭解收費方式、收費節點
裝修預算怎麼抓
設計方案包含家具規劃嗎
該在什麼時候找設計師
設計師會合理控制預算嗎
找設計師前要做什麼準備
有案例平面圖嗎
設計費怎麼收
一、裝潢緣起
任職科技業的工程師夫妻,從預售屋階段就買下了25坪的新房,依自己的需求客變成2+1房格局,再委託雅和設計團隊針對屋主倆生活習慣、興趣與喜好的風格進行全室裝潢,以更靈活的空間規劃改善動線與採光,打造真正符合生活節奏的自在居家。
帶走上百屋主驗證的《裝修最全指南》,簡訊免費發您
二、屋主需求
由於夫妻倆都是上班族,女屋主偶爾需要在家辦公,一開始就提出「獨立書房」的需求;而男屋主最重視居家生活享受,客廳要有劇院級的設備佈局,餐廳也要有美酒的收藏區;兩人假日喜歡出遊露營,偶爾打打羽球,家中也需要收納大型露營器材的空間。此外,屋主倆都偏愛簡約舒適的中性色調,希望未來的家能成為「一進門就能自在沈澱」的生活場域。
三、設計師的規劃
在梳理了屋主需求與偏好後,雅和設計團隊重整動線空間,原屋2+1房格局雖完整,但公共區域略顯壓縮,加上屋主希望書房既獨立又不過於封閉,因此利用矮牆與鋁框玻璃的穿透感,重新界定書房與客廳的關係,再以莫蘭迪灰為主調,鋪陳出沉穩中性的北歐簡約風格。


完整裝修工具包(清單+話術+模板)已為你準備好!
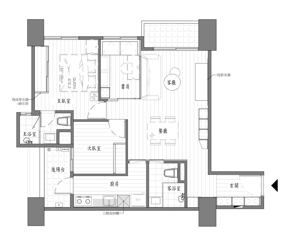
四、空間設計
玄關
玄關採 L 型動線,因走道略狹長,設計團隊充分運用垂直空間,將整面牆打造置頂懸浮櫃體,下方保留落塵區的輕盈視覺,上方延伸為大容量掀門隱藏櫃,放置屋主各種大型露營裝備等不常用物品。設計師也特別預留鞋履、雨傘、外出小物的分類位置,避免生活雜物堆積於門口。鏡面立面則巧妙拉長走道比例,也改善狹長格局的壓迫感。
(設計師提供)
客廳
為滿足屋主追劇觀影的影音享受,設計團隊以大面純灰投影牆取代複雜的電視櫃,預留出100吋投影幕的空間,下方僅搭配木質低矮櫃體,展現簡約的北歐調性。大片落地窗導入自然光,透過雙層窗簾調節亮度,使空間在白天呈現柔霧感。沙發後方即為玻璃書房,其透光特性讓視覺不被阻隔,放大公共區域尺度,也成為整間屋子的視覺亮點。


餐廳
以咖啡廳、酒吧的療癒微醺為靈感,餐廳以深木色餐桌、長凳與霧面工業灰牆面組構溫潤而沉穩的用餐場域。設計師利用隱藏門將客浴、廚房融入牆面,使立面乾淨俐落。考量屋主有收藏美酒的嗜好,特別結合木紋與鐵件打造酒櫃,讓屋主收藏的酒款成為公共區域的生活展示,也將餐廚動線自然引入日常聚餐氛圍。

書房
位於沙發後方的+1空間作為獨立書房,由於格局較為窄長窘迫,設計團隊以鋁框玻璃+半高矮牆重塑比例,使場域保有獨立性,同時能與客廳共享採光與視野延伸。靠窗安排坐臥閱讀區,讓白天光線自然灑入;書桌後側則以木皮櫃體結合黑色鐵件層架,建立完善的收納系統。開放層架、封閉櫃體交錯配置,能分類書籍、文件與工作設備,在有限坪數中創造充足且井然有序的工作環境。


五、不為人知的隱藏細節
除了視覺、機能到位,本案最大的亮點其實藏在看不見的地方——全室智能控制的整合工程。設計師在訪談時透露,屋主本身對智能家居小有研究,裝潢時與設計團隊密切協作,從前期配線、設備位置、弱電整合到櫃體施工都事先精算,透過隱藏式管線與預留模組空間,讓空調、家電、電器插座、窗簾與照明等都能無縫連動,並依使用習慣設定不同情境模式,整個居家在簡約外貌下,擁有驚人的便利性,展現智能住宅的科技生活想像。








