想瞭解服務流程
丈量費用多少
想瞭解收費方式、收費節點
裝修預算怎麼抓
設計方案包含家具規劃嗎
該在什麼時候找設計師
設計師會合理控制預算嗎
找設計師前要做什麼準備
有案例平面圖嗎
設計費怎麼收
想瞭解服務流程
丈量費用多少
想瞭解收費方式、收費節點
裝修預算怎麼抓
設計方案包含家具規劃嗎
該在什麼時候找設計師
設計師會合理控制預算嗎
找設計師前要做什麼準備
有案例平面圖嗎
設計費怎麼收
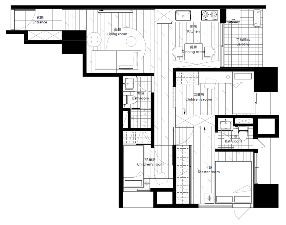
一、裝潢緣起
孩子轉眼10歲了,愈來愈需要自己的空間,以及能獨立學習、培養打擊樂興趣的房間,因此我和先生決定換掉原本住的小套房,買下這個18坪3房的小坪數住家,雖然格局機能齊全,但要真正住得舒服,還是得靠設計把每一寸空間用到恰到好處,於是開始了我們與「心繹設計」的緣分,完成這個新家任務!

2025 空間設計包免費領!
收納超省空間,小坪數救星!
二、找設計師的過程
我們的第一間房就是心繹設計操刀的,當時合作十分順利愉快,設計師本身也是我的多年好友兼同學,因為年紀相近,不僅了解我們的生活需求,溝通上也很有默契,態度更是認真負責,過程幾乎不需要盯場。因此新家一決定購入,我和先生完全沒有考慮其它團隊,直接就把裝潢任務交給了心繹!
三、我們的需求
最大的重點就在孩子。以前弟弟還小,我們一家三口擠在同一間房也沒問題;但現在他愈來愈大、每天活動力滿滿,還有玩打擊樂的興趣,不只需要能跑跳的生活空間,更需要一個獨立的小天地;再加上我們家東西不少,18坪的坪數要住得舒適,就得透過室內設計的專業,把我們家每一處空間都規劃到位。
帶走上百屋主驗證的《裝修最全指南》,簡訊免費發您
四、設計師的規劃調整
設計團隊依本身格局進行全室裝潢,以輕裝修的設計手法提升採光與明亮感,讓18坪的室內敞亮放大,各個空間都有充裕的尺度,同時打造出順手使用的餐邊櫃、衣櫃;為了擴充收納,更善用畸零空間,將我們和孩子房之間的隔牆打造頂天立地的櫃體,既不占空間又能有更大容量的收納量,這巧思太讓我們佩服!

五、完工美圖帶看
客廳
客廳以米色與木紋為主調,營造乾淨、放鬆的氛圍。沙發旁以輕巧家具取代厚重配置,保留充足動線,也讓18坪的小宅看起來更通透。電視主牆沒有厚重的量體,僅以家具選擇,視覺更乾淨簡約。從客廳一路望向餐廚區與陽台,光線穿透無阻,形成明亮延伸的開闊感。



餐廳
餐廳以白色機能餐桌搭配木質吊櫃,上方的大面收納櫃提供充足置物空間,讓小坪數依然能保持整潔不凌亂。桌面簡約不佔空間,延伸視覺也讓餐廳與客廳自然串連。是我們一家人最常一起用餐、聊天的小角落。


廚房
設計團隊在客廳與廚房交界位置,打造木質電器櫃,將電鍋、微波爐、冰箱完整嵌入同一立面,讓家電各就各位,兩個公領域都能方便使用。一字型的廚房工作檯提供足夠的備料與收納空間,整體機能緊湊但不擁擠。

主臥
我們的主臥以奶茶木紋搭配霧藍色櫃面打造,規劃大容量的滑門衣櫃與側向抽屜,動線不被打擾、收納也更直覺。角落的頂天落地大型櫃其實是兒童房隔牆,為了更精省空間且提升收納機能,特別以櫃子取代牆面,打造兩邊都能使用的櫃體。這裡結合淺抽、格櫃,讓日用品與備品都有固定位置,使臥室既簡潔又實用。



孩子房
延續清爽的藍灰色系搭配木紋櫃體,我們的孩子房書桌搭配了成長型家具,並緊貼床側配置,動線短、專注度也更好。衣櫃是主臥的共用隔牆的延伸,頂天設計提升容量,讓孩子的玩具、衣物與季節用品都能有序安放,打造一個專屬小男孩的自在天地。


六、裝潢後記
回頭看整個裝潢過程,最讓我們滿意的,就是設計師用櫃子取代隔牆的點子,讓我們可以擴充收納。因為先生常出國出差,家裡有好幾咖大型行李箱,現在能通通收攏在這裡,生活感整個提升許多。
當初我們也曾猶豫餐桌是否要靠近客廳,但實際入住後才發現設計師的安排最聰明,餐桌靠近窗邊不僅更明亮,客廳也不會因為家具集中而顯得擁擠。這次的裝潢沒有大張旗鼓的華麗風格,卻讓我們一家三口每一天的生活變得更輕鬆舒服,真心感謝設計團隊!







