想瞭解服務流程
丈量費用多少
想瞭解收費方式、收費節點
裝修預算怎麼抓
設計方案包含家具規劃嗎
該在什麼時候找設計師
設計師會合理控制預算嗎
找設計師前要做什麼準備
有案例平面圖嗎
設計費怎麼收
想瞭解服務流程
丈量費用多少
想瞭解收費方式、收費節點
裝修預算怎麼抓
設計方案包含家具規劃嗎
該在什麼時候找設計師
設計師會合理控制預算嗎
找設計師前要做什麼準備
有案例平面圖嗎
設計費怎麼收
房屋信息
- 房屋狀況/新成屋
- 坪數/19坪
- 空間格局/3房2廳2衛
- 風格屬性/奶油風
- 居住人員/4人
裝修預算規劃與避坑清單
含Excel模板,限時0元領取
平面規劃&設計重點
原始屋高不高,屋主又希望天花板不要因管線包覆而被過度壓縮,因此透過局部包樑、延伸線條與間接照明等設計手法,讓橫樑在視覺上被自然隱藏於量體之間,空間輕盈不壓迫。全室則採用淺色調搭配木質調,打造一致性的視覺感受,並因應屋主一家的使用需求,將收納做到極致,讓小坪數也能呈現井然有序的生活樣貌。

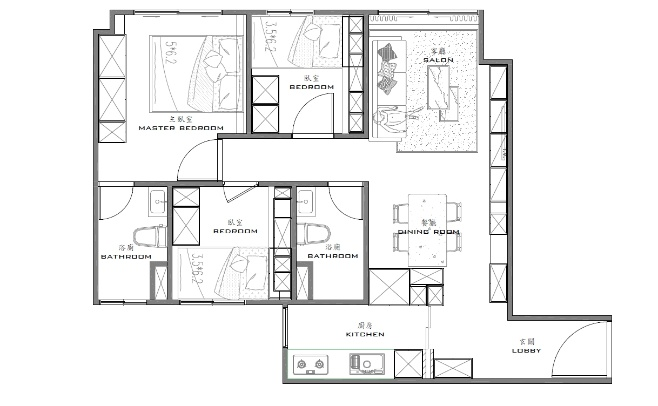
▲設計後平面圖
VR720°全景預覽
藉由三商美福提供「720°VR全境擬真實境」服務,屋主不再需要靠想像去拼湊未來家的模樣,而是能以彷彿親自走進家裡的方式,清楚感受到動線、比例、材質到光線氛圍的實際呈現,也因為這份確定與安心,讓他們毫不猶豫選擇將整個家交給設計團隊來規劃。

玄關

客廳

主臥

次臥
玄關設計
走進家門,玄關以奶油色和淺木紋,鋪陳出柔和、安定的迎賓氛圍。玄關到電視牆上方橫貫一支大樑,直接裸露容易造成壓迫,特別運用間接照明來弱化樑體線條,讓光帶輕輕包覆,使視覺向上延伸,提升整體屋高感。牆面則是透過直向格柵來修飾比例,垂直線條有效分散視覺注意力,讓人自然忽略樑下較低的區域。


▲向玻璃廠商訂製了3/4圓的大型鏡面,是玄關的一大亮點,鏡面後方再結合明亮的間接光,不但放大玄關尺度,也成為全家人每天出門前最實用的整理區。

▲頂天立地收納櫃順著樑下貼合牆面,延續乾淨立面,也賦予玄關更完整的收納機能。

▲因有風水上的考量,開門不宜直視廚房,便於廚房打造輕盈的玻璃門片,建立緩衝界線,既維持格局的獨立性,又不讓狹長廊道因實牆而顯得壓迫。

餐廳設計
餐廳位於公領域的中心位置,是家人日常交流的重要場域,牆側規劃一座具展示功能的餐邊櫃,上層以透光玻璃收納酒器,中段平台可以展示收藏品,而餐邊櫃旁也延伸為一座雙面高櫃,讓餐廚區的兩個空間能共享置物機能。

▲選用石紋岩板餐桌搭配溫潤棕色皮革餐椅,在灰白色調的空間中,成為穩定視覺的核心,餐椅色調也與牆上象徵信仰的木質十字架有所呼應。


客廳設計
考量屋主喜歡收藏與展示物品,電視牆右側特別規劃一座玻璃展示櫃,以層層光帶襯托收藏品的立體感,最左側則有一支量體厚重的大柱子,為避免造成視覺壓迫,選擇以石紋貼膜完整包覆,讓整面牆更清爽俐落。

▲柱子前側打造了弧形層架,不僅平衡柱體的硬線條,淺米色層架也成為日常展示的小角落。

▲展示平台背牆採格柵設計,提升立面層次,也與玄關的格柵語彙呼應。



主臥設計
主臥延續公領域的淺色調,營造溫潤柔和的休憩氛圍,空間雖不大,但透過縝密規劃將收納做到最滿,於床尾牆面規劃頂天立地大衣櫃,無把手設計使視覺更簡潔俐落。為了滿足臥室的生活娛樂機能,也將投影布幕隱藏在衣櫃上方,當屋主想看影集時,只需放下布幕,就能直接投影在衣櫃立面上,至於投影設備則是設置在床頭牆的層板上,不僅方便操作,也確保機器線材不外露。




▲窗邊以柔和的蜂巢簾過濾自然光,讓白天的臥室明亮卻不刺眼。
次臥設計
次臥打造一座臥榻床,臥榻下方規劃了抽屜,可將衣物、雜物妥善藏起,在有限坪數中創造最大化的收納彈性,床頭則結合書桌與吊櫃,形成實用的閱讀、工作角落。



裝修後記
從最初的3D圖,到步步落實於現場,屋主驚喜發現完工後的樣子與當初想像的畫面幾乎如出一轍,甚至在細節與質感上還更勝預期,對於這次的裝潢,全家人都感到十分滿意,也將三商美福推薦給兩位正準備裝修的朋友了。
| 系統櫃板材 | |
| 玄關 | ●鞋櫃A227亞麻珍珠絨 |
| 客廳 | ●電視櫃A227亞麻珍珠絨、M357白雲岩 |
| 臥室 | ●衣櫃A227亞麻珍珠絨 / CTT554波特蘭深灰 |

完整裝修工具包(清單+話術+模板)已為你準備好!








