想瞭解服務流程
丈量費用多少
想瞭解收費方式、收費節點
裝修預算怎麼抓
設計方案包含家具規劃嗎
該在什麼時候找設計師
設計師會合理控制預算嗎
找設計師前要做什麼準備
有案例平面圖嗎
設計費怎麼收
想瞭解服務流程
丈量費用多少
想瞭解收費方式、收費節點
裝修預算怎麼抓
設計方案包含家具規劃嗎
該在什麼時候找設計師
設計師會合理控制預算嗎
找設計師前要做什麼準備
有案例平面圖嗎
設計費怎麼收
一、買下圖面,自己發包
第一次擁有自己的房子,我和妹妹一開始就想找喜歡的設計公司來做。但幾番詢價後,覺得整體預算難以負荷,後來決定買下設計圖面自己發包,一方面爸媽有認識的工班可以談價,再者我們也能就近監控,原以為只要有圖、有工班、有時間,一切都能順利完成,卻沒料到,看似省錢又自主的選擇,後來卻讓我們吃盡苦頭。
↓↓瞧瞧房屋原貌




完整裝修工具包(清單+話術+模板)已為你準備好!
二、差點成為統包孤兒
三、系統櫃設計團隊神救援
頭都洗一半了難道不洗完嗎!我們姐妹只好尋找可以承接系統櫃、能幫收尾的團隊,「歐德」過去給我們的印象就是個家具大品牌,剛好我們家附近有間服務門市,一開始只是抱著問看看的心態,誰知我們諮詢的設計師不厭其煩的提供很多建議,這才知道歐德除了家具、系統櫃外,也有非常專業的室內設計,也因為這樣,我們決定把後續系統家具與空間收尾的重任,放心交由他們接手。
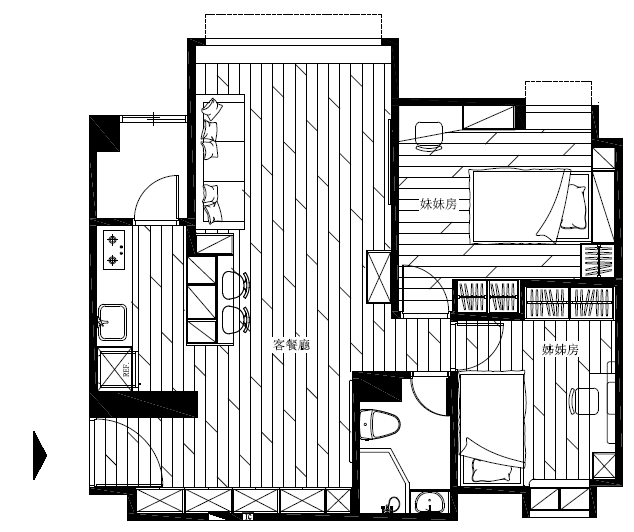
↓↓裝潢前平面圖

↓↓裝潢後平面圖

帶走上百屋主驗證的《裝修最全指南》,簡訊免費發您
四、空間設計
我們家和爸媽家同在一個社區,是一間 17 坪、2 房 1 廳的中小型住宅,空間不算大,一開始就不想被特定風格框架綁住,也不喜歡市面上常見、過於甜膩的奶油風。我和妹妹都偏愛綠色,因此想以自然清新的森林綠作為主軸,搭配溫潤木質,透過色彩比例與材質,營造屬於我們的舒適日常。
玄關
進門處的這一塊區域,是屬於我們最有個性的迎賓角落,承載著我們的興趣與收藏。因此捨去制式鞋櫃與封閉收納,改以低櫃搭配開放層板,將收藏多年的黑膠唱片機與唱盤自然陳列,層板高度依唱片尺寸細緻規劃,下方櫃體則收納播放器材與零散配件,維持玄關視覺的清爽俐落。



客廳
客廳以一張焦糖棕色皮革沙發作為視覺主角,這是依我們客廳背牆尺寸特別訂製的。窗邊刻意不做制式臥榻,原本舊家就有臥榻,但因為不好坐,反而成為堆雜物的地方,因此我們改以木皮打造俐落的窗邊桌板,既能作為置物平台,也能當邊几或臨時座位使用,讓空間能隨著生活狀態自由切換。



餐廚區
廚房原本屬於老屋常見的封閉式,但我們選擇拆除隔牆,讓視野與採光一次釋放,再以中島吧檯作為場域界定,不僅兼具備餐與用餐功能,更成為日常交流與互動的核心。餐廚空間整體以綠色為主視覺基底,特別請廚具公司客製調色,烤製出與牆面一致的霧綠色櫃體,讓空間色調更具一致性。防濺板選用白色小口磚,細緻格紋在光線映照下增添層次,也讓這裡成為家中最有生活感的區域。

姐姐房間
我的房間以沉穩的森林綠作為主,搭配溫潤木質與留白牆面,營造出安靜放鬆的氛圍。床鋪靠牆配置,床頭與書桌延續相同木色語彙,書桌上方規劃開放層板,擺放書籍與喜歡的小物,讓日常使用的物品自然融入空間。窗邊引入柔和自然光,搭配間接照明與桌燈,即使夜晚也能維持舒適亮度。


妹妹房間
考量妹妹衣物與生活雜物較多,房間規劃以收納機能作為首要重點,在有限坪數內爭取最大的實用彈性。床頭結合櫃體,特別規劃出「污衣櫃」收納區,讓日常更換的衣物能即時分類。整面收納櫃搭配書桌一體成形,將收納、工作與休息動線集中配置,使空間使用更有效率。



五、裝潢後記
整個裝潢從前年開始,一直到今年5月才完工,中間面臨各種裝潢狀況題,幸好有歐德團隊專業又即時的神救援,讓工程不僅順利收尾,完成度更超出原本的期待!
最讓我印象深刻的,是收納規劃帶來的改變,尤其是衣櫃部分。過去我們姐妹反覆討論、來回調整,卻始終卡在動線與容量之間。直到歐德設計師建議拆除牆面,改以 S 型雙面配置,讓兩側都能嵌入收納,才一口氣解決了長久以來的難題。從前期溝通、設計到實際施工,每個環節都讓人安心,也讓我們真心覺得,當初做得最正確的決定,就是選擇了歐德。









