想瞭解服務流程
丈量費用多少
想瞭解收費方式、收費節點
裝修預算怎麼抓
設計方案包含家具規劃嗎
該在什麼時候找設計師
設計師會合理控制預算嗎
找設計師前要做什麼準備
有案例平面圖嗎
設計費怎麼收
想瞭解服務流程
丈量費用多少
想瞭解收費方式、收費節點
裝修預算怎麼抓
設計方案包含家具規劃嗎
該在什麼時候找設計師
設計師會合理控制預算嗎
找設計師前要做什麼準備
有案例平面圖嗎
設計費怎麼收
一、裝潢緣起
一開始的時候我抓了三個點去看房子,因為我是桃園人,第一點是看青埔重劃區,但房價貴到嚇人,身為勤儉持家的小女子,當然先考量價位自己可不可以承擔;第二次是去看南崁,但那附近物價是比較高的,後面也放棄那個地段。第三個我就跑到了山鼻站。會來這邊看房有一個故事,因為老公有在算塔羅盤,塔羅牌說這個地方verygood,然後我們就開始去看了。後來覺得預售屋價格,費用是我們夫妻可以支付的。第二個考量是它是A10站的捷運站,因為我們沒有小孩,想說過著樂活生活,而且A10站第一站就到林口長庚,為了要便利自己,所以捷運路程很重要。再來就是它未來的期許的一個規劃,我們稍微有去看政府提供著附近的一些公共設施,覺得它未來有希望可以再擴張,會非常的便利,所以我們選擇在這邊居住。
會找晨陽也是有算過塔羅牌的,而且準到設計師的個性都算出來!塔羅牌說我的設計師是比較溫柔的,然後會有一個女性長者坐鎮,但是很貼心。後來我們一進去晨陽的辦公室,就看到設計師跟Nita姐坐在那邊等我們,那個設計師真的就問了你好你好。秀雲姐跟我們講的那個塔羅牌人物特寫讓我在心想說怎麼可以這樣這麼準。我們就相信塔羅牌一次,決定跟晨陽設計合作。

完整裝修工具包(清單+話術+模板)已為你準備好!
二、需求列表
我跟先生,很喜歡在家裡小酌,所以想把家裡打造一個像小酒吧的感覺,家人朋友來聚會也都可以非常享受,格局上沒有太多需要更改的,但因為空間只有17坪,我們很注重收納效能,希望視覺不要看起來太滿,但又要滿足收納我們日常的生活用品
- 風格喜好:現代風
- 基底的色調:喜歡莫蘭迪色調
- 玄關設計:基本的鞋櫃,可以直接拖鞋放在地板
- 客餐廳:空間不大,希望不要有下方的電視櫃,設計不要太單調
- 餐廚區:很常在家小酌,一定要有吧檯
- 主臥室:要有更衣室、床頭有樑的問題要解決
- 門片:建商附贈的門很醜,想要改色
- 收納空間要足夠,東西不要被大家看得很清楚
- 次臥室:希望是多功能的空間,兼顧日常辦公收納、客人來也可以休憩。
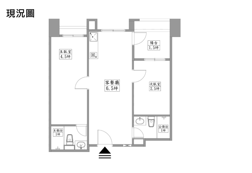
三、格局圖與動線規劃
因為我們最在意的,就是空間看起來不能太「滿」,但又要有足夠的收納可以藏好我們日常的生活用品。好在原始格局本身不錯,動線順暢、採光也 OK,所以設計師沒有去大幅更動格局,而是從「視覺延伸」與「機能整合」下手,幫我們規劃在舒服的平衡點。


工程進場的放樣驗收:
在放樣過程中,我感受到我要的東西可以立馬的做調整,甚至他要準備放樣的時候,他在上確認。我覺得晨陽在這個專業度是一級棒。在放樣過程中要調整的時候,他們都有耐心地去接受屋主的需求。也就是因為晨陽有這樣子特別的服務,讓我更放心讓晨陽去設計我的愛屋。


裝修預算規劃與避坑清單
含Excel模板,限時0元領取
四、一起來看我們裝潢後的美圖吧 !
玄關:深度加倍的收納櫃,小宅也能輕鬆收、漂亮住
我們家玄關的設計,走一個簡單設計,滿足基本的收納鞋子、日常用品 等功能、放置外出常用品的平台設計,之前有跟設計師提到我們蠻常邀請三五好友來家小酌聊天或是玩桌遊等等,設計師就幫我把鞋櫃做成懸空的設計,回家脫鞋不用彎腰半天,簡單乾淨、又實用,有時朋友來,我都會笑著說:「先脫鞋、再乾杯!」這就是我們要的生活方式

▲我們這個室內坪數才17坪,所以當初只跟設計師說收納一定要有,設計師就幫我們把收納空間做得比一般還要深,大約有50-60公分,讓我們能夠儲藏日用品的空間很多,我只能說設計師真的很貼心。


客廳:斜角電視牆× 跳色幾何設計,讓每天的微醺時光更有氛圍
當初我有跟設計師說:「 我不要無聊的電視牆喔!」結果設計師透過 ”斜角設計” 拉出整個空間的寬度,還有一個層架放置我們神學的信仰, 粉色和藍色交錯的幾何造型,活潑又不突兀,完全就是我的菜!客廳也是我們兩個最常窩的地方,不論是看Netflix、還是聊工作八卦,只要開瓶紅酒,就覺得這個家好有故事。每次坐在沙發上,我都會忍不住想:「唉~這就是人生啊~」

▲ 我們的跳色的拼接電視牆,是設計師他要讓我的空間視覺有放大的效果,所以他做用斜式的方式,斜過來從門口看的時候,會發現空間真的有變大。
▲ 沙發背牆灰藍的牆面搭配絨布沙發,整個空間安靜又有質感,設計師幫我們預留畫軌,跟挑的那兩幅掛畫我也超愛,一點藍、一點金,好像我們兩個的個性:一個外放、一個穩重,剛好互補,下班回家,窩在這裡,也覺得是一種小確幸。


▲ 我們挑選的電視就是可以自由旋轉的,所以不管是在客廳、餐廳區,我們愛怎麼看都行,電視線路、數據機也都藏在木作牆、收納櫃裡,看了就很舒服
餐廚區: 依照我們的身高,結合電器櫃,量身打造的居家小酒吧
因為本人就是很喜歡在家喝點小酒,這個吧檯就是我夢想中想要的!設計師特地幫我們量身訂做符合身高的高度,我常笑說這裡是「我們的居家小酒吧」,週末晚上,打開燈、倒杯酒,兩個人邊聊天邊小酌,看著窗外的夜色慢慢沉下去,那一刻真的超療癒~有時朋友來家裡聚會,我還會當起Bartender調酒,對著朋友們說:「 要不要來一杯今晚特調 - 微醺日常!」哈哈哈

▲餐吊燈我們在選的時候,設計師幫我們考量到冷氣機在上面的關係,擔心風這樣吹燈具會一直搖晃,所以就建議我們挑鋼線的材質,比較硬、燈具本身也是以玻璃材質為主,讓整體的重量比較重,就不會搖晃

▲ 酒吧下面有兩個系統櫃就可以放一些烤箱、微波爐,真的在這邊真的一整天都不想出去很Chill,我很喜歡這個感覺。

主臥室:棕藕色的柔和色調 ×開放式更衣室,最懂我們的空間
主臥是我們的小避風港,藕棕色的主牆讓空間沉靜又有溫度,設計師幫我們把樑進行修飾,弧形軸線讓整體更自然;開放式更衣區我超愛!刻意不設計封閉式的,也是因為空間小的關係,設計師很貼心幫我們在推拉門設計全身鏡,就不用再獨立買一面立境,整理儀容看今日穿搭、拍OOTD也超方便。

▲化妝桌是我堅持一定要留的位置,女生就是要一個屬於自己的角落嘛~小罐罐收好、髮圈丟進抽屜,桌面乾乾淨淨,看了就舒服!

▲ 假日睡到自然醒的時候,陽光會從窗外慢慢灑進來,整個房間亮亮暖暖的,對我來說,這裡就是我們兩個放鬆的療癒基地。

多功能空間:兼具書房 × 客房,果綠色調的清新感,辦公能專心、休息也能放鬆
當初,設定這間臥室要以多功能用途為主,兼具書房、客房,如果未來有客人來或是跟先生因為工作關係作業不同的時候,就可以來這一間休息,雖然是作為多功能空間,設計上也不能馬虎,設計師當初幫我們以果綠色去設計,給人一種清新感,在窗邊處也有L型書櫃結合書桌的設計,放上新買的MacBook ,在這裡辦公都是一種生活的享受

▲ 在書桌檯面上、腳下,都幫我們規劃好插座,木作檯面也預留出線孔,讓我們方便充電,線路整齊,視覺看起來更加乾淨。
五.裝修後的夢想家
說真的,一整天上班很累,下班後我最喜歡躺在沙發。看完整個空間和設計,會覺得心滿意足,是我喜歡的環境,又乾淨又整齊,然後稍微地喝一下酒,這就是我要的人生,我覺得就是人生把它顧好,我想要待在這間屋子住很久享受很久。
你有任何的想法,我覺得你找晨陽設計師他們都會幫你解決。我真的很感謝晨陽設計團隊。我真的很感謝奕彰設計師以及秀雲姐的幫忙。親朋好友來看到我們的家都說很滿意,我跟先生也是很滿意的。真的只有說謝謝晨陽設計團隊,愛你們哦。








