想瞭解服務流程
丈量費用多少
想瞭解收費方式、收費節點
裝修預算怎麼抓
設計方案包含家具規劃嗎
該在什麼時候找設計師
設計師會合理控制預算嗎
找設計師前要做什麼準備
有案例平面圖嗎
設計費怎麼收
想瞭解服務流程
丈量費用多少
想瞭解收費方式、收費節點
裝修預算怎麼抓
設計方案包含家具規劃嗎
該在什麼時候找設計師
設計師會合理控制預算嗎
找設計師前要做什麼準備
有案例平面圖嗎
設計費怎麼收
一、設計緣起
本案源於一段有趣的緣分,屋主在為新居挑選軟裝時,女主人一眼相中了一張心儀的沙發,透過家具商的引薦,進而找到了我們貓爵設計團隊來規劃兩人的新家。
這是一棟五層樓的透天宅,目前僅有屋主夫妻居住,生活重心主要集中在一、二樓。考慮到三樓以上的空間極為充裕,可作為日後的收納儲物使用,因此在一、二樓的規劃上,得以跳脫做滿收納櫃的思維,將重點放在風格完整性與空間舒適度的營造。
裝修預算規劃與避坑清單
含Excel模板,限時0元領取
二、設計方向
由於原配置已相當契合屋主需求,我們維持基礎結構不作大改,以屋主嚮往的溫潤奶油風為主軸,結合了低飽和度的奶油色系打底,並以沙發為靈感,運用柔和的弧線修飾樑柱、搭配簡約線板勾勒牆面層次,在減少櫃體壓迫感的同時,視覺更顯細緻與純粹,精準呈現屋主對新婚生活的空間想像。
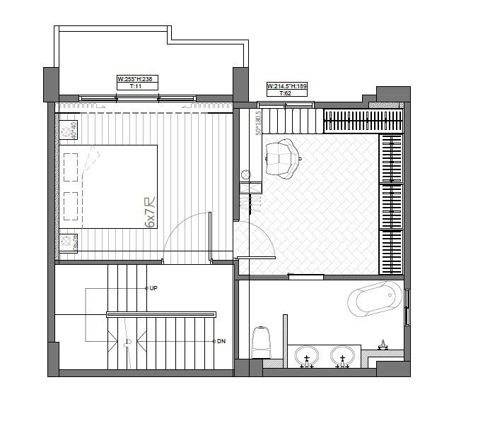
三、格局配置
在格局配置上,主要的微調集中在垂直動線與進出入口的優化,汰換了原有的傳統式樓梯,扶手改以視覺更輕盈、簡潔的玻璃材質,同時也特別針對樓梯踏階的高度進行微調,踩踏時體感更安全舒適,對於需要頻繁上下樓的透天宅來說,是提升生活品質的關鍵細節。此外,為了呼應整體設計風格,出入口的設計上也做了調整,像是圓弧線條修飾銳角,以及拱門、拉門與隱藏門的規劃,使牆面的視覺更具整體性,也避免零碎的門框破壞了空間的完整度。
1F

2F


完整裝修工具包(清單+話術+模板)已為你準備好!
四、空間細節解說
玄關
一進門的視覺對位處,以弧線包覆處理,消除了直角帶來的銳利與壓迫感,空間邊界變得模糊且柔和,並規劃了壁龕設計,不僅創造視覺上的層次感,也能讓屋主擺放喜愛的家飾品,成為入門後的端景焦點,藉由圓弧線條的轉折,優化進門後的動線流暢度,奶油風的溫潤感在推開門的那一瞬間即可被感受到。

客廳
客廳空間具備挑高條件與寬闊的電視牆面,為了發揮這項優勢並增加立面的層次,一側規劃了展示區,藉由軟裝與藏品的陳列,大面積的牆面更有視覺變化。而受限於建物原始結構與電箱位置,電視位置無法完全對齊沙發的中線,因此利用視覺錯位的手法,將內凹槽設計噴黑,不僅融入電視顏色,還能隱藏電箱,且模糊了電視的偏移感,同時,搭配弧形電視櫃的線條引導,梳理出立面的比例,透過異材質與塊狀線條的整合,讓整面電視牆呈現出不刻意的美感。

沙發背牆的以弧形修飾了原本生硬的樑柱,讓牆面線條顯得圓潤且具有包覆感,並在腰線以下鋪陳細緻線板,透過線板的立體質感,與造型沙發的柔軟線條相得益彰,軟硬裝細節相輔相成,使家具不再只是擺設,而是自然地融入整體空間的靈魂主角。

廚房規劃米白鋁框搭配長虹玻璃的拉門,米白色的框線也完美融入了整體的奶油風格,長虹玻璃則能保留光線的穿透,同時自然地遮蔽廚房內可能存在的瓶罐雜物,避免生活感的瑣碎影響公領域的純淨視角。

臥室
臥室的落地窗邊,以木作弧形門框進行大面積的包覆,消除了窗框邊角的生硬感,我們更將窗簾盒的功能隱藏於弧形結構內,保持立面的極致簡潔。


更衣室的牆體則延續了客廳的線板裝飾與同色系奶油塗料,確保空間視覺的連貫性,進出更衣室的開口採拱門設計,襯托出優雅的氛圍,更衣過程更有生活儀式感。

更衣室
更衣室是女主人最私密的小天地,因此設計細節上注入了更多感性,地坪選擇人字拼木地板,將此處與其他空間區隔開來,界定出更具個人色彩的空間氛圍。在機能上,配置了充足的衣物收納區,並局部搭配玻璃展示櫃來陳列包包,讓收納不再只是藏起來,也能像精品店般呈現。

窗邊則規劃了一座休憩臥榻,提供一處能靜下心來閱讀或小憩的角落。為了兼顧採光與隱私選用了木百葉窗,其簡約的橫向線條不僅能靈活調節光影,也能維持空間整體的俐落感,打造出療癒的空間。

五、設計師結語
由於捨棄大量滿版收納,將空間留給了光線、動線與生活風格,在視覺上獲得更完整的流暢度,每一個細節的處理,都是為了回應當初那張沙發帶給屋主的怦然心動,這些設計元素在空間中安靜且優雅地並存,不需要刻意堆砌,溫潤與舒適感便能自然而然地生長出來。







