想瞭解服務流程
丈量費用多少
想瞭解收費方式、收費節點
裝修預算怎麼抓
設計方案包含家具規劃嗎
該在什麼時候找設計師
設計師會合理控制預算嗎
找設計師前要做什麼準備
有案例平面圖嗎
設計費怎麼收
想瞭解服務流程
丈量費用多少
想瞭解收費方式、收費節點
裝修預算怎麼抓
設計方案包含家具規劃嗎
該在什麼時候找設計師
設計師會合理控制預算嗎
找設計師前要做什麼準備
有案例平面圖嗎
設計費怎麼收
一、前言
起心動念買房是因為老家確實舊了,不過住久了對原本的生活圈有份難以割捨的感情,所以當初看到家附近有適合的預售屋案子時,沒考慮太久就決定買下來,平時對室內設計蠻有興趣,客變時我自己有先微調了小地方(插座數量、廚具、中島和主衛浴雙洗手台等),但平時工作忙,我知道施工監管等等都需要耗費很多時間,加上美感實務與工程細節,請專業的設計師絕對比我這外行的慢慢摸索來得精確,就開始在網路上搜尋適合的設計師。


▲原本的屋況
後來找到了黑犬設計,發現他們的作品風格完全是我對家的想像,尤其作品對細節很講究,收邊、質感那些看起來都做得很棒,而且設計公司就在新家附近,溝通上方便,報價也非常符合我的預算,各方面都符合我的標準,所以很自然地就選擇和他們合作。

完整裝修工具包(清單+話術+模板)已為你準備好!
二、裝修需求
我喜歡的風格偏向Japandi,結合北歐簡約俐落與日式的溫潤木質調最能讓我感到放鬆,我希望家裡不只是漂亮,更要平靜、有溫度,而我自己很喜歡手沖咖啡,特別要求有一個很有儀式感的咖啡區,再來一點很重要的是,媽媽的房間要有榻榻米的設計。

▲3D模擬圖,當初和設計師討論吧台區以藍色調為主。
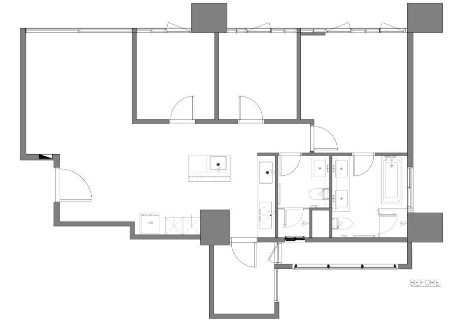
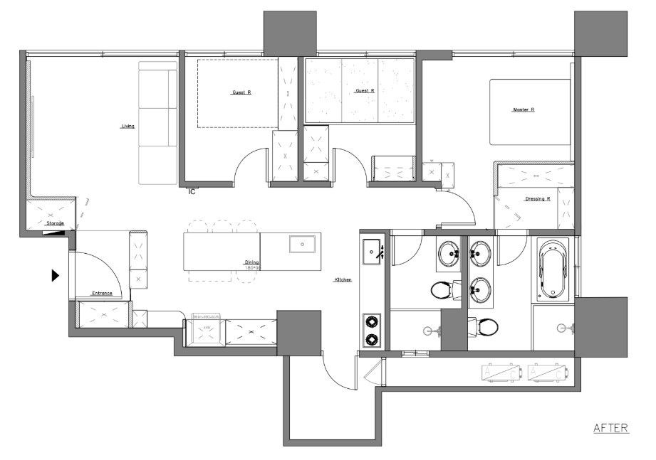
三、格局配置
當初買這間房就是相中它的原始格局,所以想在不動格局的前提下進行裝潢,最後設計師針對我們的需求做了精準的增補,像是新增玄關櫃、手沖咖啡吧台區、儲藏室,以及主臥室內我一直很嚮往的更衣室,雖然完全沒有動到隔間牆,但這樣的優化讓機能更好了,也更貼合生活習慣。
Before

After

帶走上百屋主驗證的《裝修最全指南》,簡訊免費發您
四、完工分享
玄關
地板材質當初建商就預留好了,玄關、餐廚區是磁磚,其他室內空間則是木地板,我覺得這樣的區隔蠻不錯的,也就直接延續這個規劃,一進門首先會看到新增的玄關櫃,除了界定出落塵區,也剛好擋住了視線,除了解決了開門見灶問題,進門後的空間感也更有隱私,視覺上舒服很多。

廚房
廚房增加了一張木餐桌和手沖咖啡吧台,當初我對吧台區就有個執念,覺得這裡一定要設計得很特別,設計師聽完我的想法也建議這一區可以跳一點,最後選定了藍色的復古窯變磚去延伸,為了強調質感,設計師把整面吧台區貼滿,下方甚至都是實心貼磚,看起來細緻又有層次。
旁邊廚櫃門片改成黑色系,平衡了吧台較強烈視覺,讓色調延續過去時顯得更沉穩、更有整體感,另外一定要提的是,那盞野口勇的和紙吊燈是我在裝潢前就先入手的單品,現在搭上深色背景和藍色窯變磚,我覺得有更襯托出它的美。


吊燈我希望它能一直開著,這樣每天回家時就不會覺得家裡很暗,因此設計師順勢在玄關櫃那邊局部使用了長虹玻璃材質,讓吧台區的燈光能自然地透到玄關,這樣一進家門就能感受到溫暖的氛圍。


因為不喜歡太刺眼的光,所以規劃這種細線條的間接照明,讓光線是柔柔地在空間裡擴散,氛圍也變得更溫柔放鬆,待在家真的會有一種被療癒的感覺。

客廳
電視牆是用實木貼皮整面去鋪貼,面積雖然寬闊,但也因為木頭的紋理很好,效果反而加成,而且因為我選了這款很貼牆的畫框電視,整面牆看過去相當俐落,完全沒有一般電視那種厚重感。為了延續這種極簡感,當初設計師在埋線時就花了不少心思,特別預留了凹槽和走線路徑,把所有雜亂的線路和設備引到旁邊的儲藏室裡,而且儲藏室還能藏起突兀的電箱,又兼顧收納功能,把美觀跟實用功能結合得很好。



既然電視牆已經用了大面積的木質調,沙發牆就決定用暖灰色的特殊塗料來處理,利用手感紋理跟對面的實木皮電視牆面對比,整個客廳層次感就出來了。

臥室
臥室的部分選擇維持乾淨舒服的白色系,因為有規劃獨立的更衣室,連主衛浴也一併藏在更衣室的動線裡,這樣睡覺休息的空間就變得非常單純,不會被生活雜物或是衛浴干擾,待在房間裡的時候特別容易靜下心來。



媽媽的房間則是按照她的想法,打造出一個榻榻米多功能空間,我覺得這種設計對長輩來很友善,平常不管是要坐、要臥還是隨性躺著休息都方便,而且媽媽現在也很喜歡在這個空間做一些簡單的居家小運動,看著她在那裡自在地活動,就覺得當初這個規劃真的值得了。

五、完工心得
首先是我覺得多跑現場很重要,許多細節是在現場才會知道有沒有符合想像,而且人有在現場,才能跟師傅或設計師即時討論,避免做錯了又要重改,不過還好我的設計師很給力,整個過程沒有太多要修的部分。再來是選材質要有耐心,一定要多看、多摸,直到選到自己真心喜歡的。
當然客變的話,一開始如果就有設計師一起加入更好,當初就是太早自己決定細項,像中島這種對美感要求高的部分,客變時其實應該要先處理基礎的就好,比方說桶身或五金,以免太早定案後來風格變了反而有些尷尬,而且預售交屋通常都過很久,想法會改變也是很可能會發生的事。
而前期討論時,在還沒完全確定風格前,建議多跟設計師溝通,像我是有比較多想法的人,透過不斷討論才慢慢收斂出最想要的樣子,並且要提醒自己裝修是一輩子的事,如果真的有在意的地方,一定要堅持到底,不要因為怕麻煩就將就,否則住進去後一定會後悔。
最後就是很現實的預算考量,但我個人的心得是,木作如果有預算,一定要盡量做出質感,像是我家有蠻大部分的圓弧收邊處理搭配實木貼皮,效果真的非常好,那個精緻感是絕對值得的。
總之,整個過程和設計師配合得很順利,完工成果也符合我內心所想的樣子,目前住進去都覺得很舒適,很開心能夠找到適合自己的設計團隊。








