想瞭解服務流程
丈量費用多少
想瞭解收費方式、收費節點
裝修預算怎麼抓
設計方案包含家具規劃嗎
該在什麼時候找設計師
設計師會合理控制預算嗎
找設計師前要做什麼準備
有案例平面圖嗎
設計費怎麼收
想瞭解服務流程
丈量費用多少
想瞭解收費方式、收費節點
裝修預算怎麼抓
設計方案包含家具規劃嗎
該在什麼時候找設計師
設計師會合理控制預算嗎
找設計師前要做什麼準備
有案例平面圖嗎
設計費怎麼收
裝潢緣起
買了房子後,我跟太太一開始是在網路上找設計公司,也實際跟幾間公司現場討論過。我們心裡其實一直都有一個大概想要的家的樣子,後來看到時工分的作品,覺得蠻符合我們心中的想法,加上公司離我們新家也比較近,最後就選擇了時工分設計。
在找設計公司的時候,我認為最重要的是溝通與理念的契合。一開始與時工分設計師洽談就很順暢,雙方都能在同個頻率上溝通,設計公司理解我們的需求,我們也能明白設計師的專業建議。
再來就是預算的部分,我們其實有先拿到其他設計公司的報價,雖然是差不多的價格,但如果想要達成我們想要的效果就會要加價,對方就會有點猶豫地說:「這樣可能不夠」。但時工分的設計師很直接地跟我們說,這樣的預算是可以做到的,當下我跟太太都覺得這點蠻加分的。
裝修需求清單免費領!
規劃不漏,驗收不慌!
一、需求列表
居住人數 : 夫妻2人,小孩1人 。
需求:
- 覺得原本建商的公領域偏小,希望空間可以更開闊
- 客廳的頭樑希望不要那麼明顯
- 家裡有小朋友,希望轉角設計都能盡量圓潤、安全
- 想結合智慧家電,用手機就能操作開關
- 夫妻作息不同,希望主臥與更衣室動線能分開,避免互相干擾
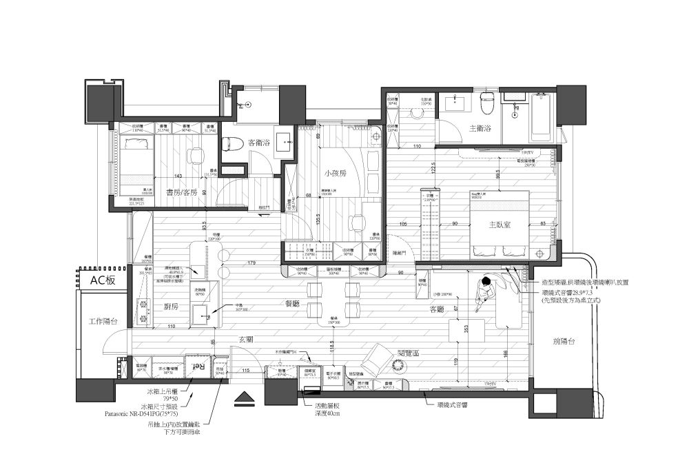
二、格局圖與動線規劃
原本的格局我們覺得公領域不大,加上實際也用不到那麼多房間,設計師就依照我們的生活方式,幫我們把廚房空間放大,整體使用起來舒服很多。
另一個很有感的是大門一進來就有一根明顯的樑,視覺上會覺得壓迫、空間偏矮。經過設計調整後,整個空間看起來開闊許多,那根樑反而像是被巧妙藏起來,無論視覺或實際感受都舒服很多。
原始格局

平面配置

帶走上百屋主驗證的《裝修最全指南》,簡訊免費發您
三、裝修過程
簽約後,我們幾乎就把後續的事情全權交給設計公司。因為我們夫妻都是醫療人員,工作忙碌,沒有時間監工,施工期間其實很少到現場。但每天打開手機就能看到工程進度回報,工期也都有照著計畫進行,讓我們非常放心。
我們自己有另外找智能家電廠商,施工過程中,對方廠商在處理崁燈時發生邊角裂開的狀況,後續時工分也都有幫忙修復。兩邊廠商在溝通上配合的很好,該留線、留電源的位置都處理得很完善、很細心,成品也很理想。
整體來說,預算控制得很合理,風格一致,空間裡沒有突兀的地方,連家電預留的位置都很剛好,生活動線規劃得很好,實際住起來也非常順手。
四、完工入住
外觀亮點
住進來之後,才更能感受到設計師的用心和巧思,像客廳的月亮造型燈,設計師當初提議時其實有點擔心它不實用,但實際使用後覺得效果很好。本來這面牆想做藝術塗料,但又擔心掛畫會遮住紋理。後來這盞月亮燈搭配背光,反而把塗料的質感完整呈現出來。
現在有朋友來家裡,第一眼幾乎都會注意到它,也常誇這盞月亮造型燈很吸引人。


實際使用
在實際使用上,也有很多貼心的小細節。像臥榻系統櫃原本的門片開法,其實沒有那麼好用,但我們一開始也沒特別注意。後來設計師主動提醒,說原本的開門方式會比較受限,並跟我們說明不同開法的差異,才知道原本我們偏好的方式反而會影響收納,最後採納設計師的建議,調整之後,收納跟使用都順暢很多。



考量到小寶寶出生,設計師也幫我們想了很多貼心的設計,家中多數銳利的轉角都改成圓弧設計,像是電視牆、電視櫃、床頭背板、玄關櫃、中島桌等,都不用擔心小孩碰撞。地板部分也在玄關與餐廳規劃了落塵區,娃娃車推進來也不怕弄髒木地板,這些細節都讓人很有感。



最後是主臥與衣櫃分開的設計,大大改善了我們夫妻不同作息的困擾。更衣時不會影響另一半休息,衣櫃也能有效遮擋光線。太太也很喜歡梳妝台的收納規劃,空間很大、隔層很多又好整理。開放式的抽屜做了內縮設計,讓視覺上不會很零亂,拿取物品也很順暢。


總結
真的覺得錢都有花在值得的地方,也不會多做亂七八糟的東西,我會推薦
時工分給親朋好友。現在的家是個溫暖舒適,也是一個讓人真正能好好休息、放鬆的地方。
雖然當初拆掉一間房時曾覺得有點可惜,但現在反而很慶幸這個決定。公領域變得寬敞,小孩可以自在爬行、活動,我們在廚房忙時也能一眼看到孩子的狀況,小孩也看得到我們,也比較不會有分離焦慮。
整個公領域住起來非常開闊,和現在一般三房、四房每個空間都很小的感覺完全不同。設計師當初建議開放式空間,現在回頭看,真的很值得。客餐廳是我們每天待最久的地方,能有這樣舒服、明亮的空間,覺得擁有自己的家是一件很幸福的事。









