想瞭解服務流程
丈量費用多少
想瞭解收費方式、收費節點
裝修預算怎麼抓
設計方案包含家具規劃嗎
該在什麼時候找設計師
設計師會合理控制預算嗎
找設計師前要做什麼準備
有案例平面圖嗎
設計費怎麼收
想瞭解服務流程
丈量費用多少
想瞭解收費方式、收費節點
裝修預算怎麼抓
設計方案包含家具規劃嗎
該在什麼時候找設計師
設計師會合理控制預算嗎
找設計師前要做什麼準備
有案例平面圖嗎
設計費怎麼收
房屋信息
- 房屋狀況/新成屋
- 坪數/17坪
- 空間格局/3房1廳2衛
- 風格屬性/現代北歐 x 無印風
- 居住人員/2人

完整裝修工具包(清單+話術+模板)已為你準備好!
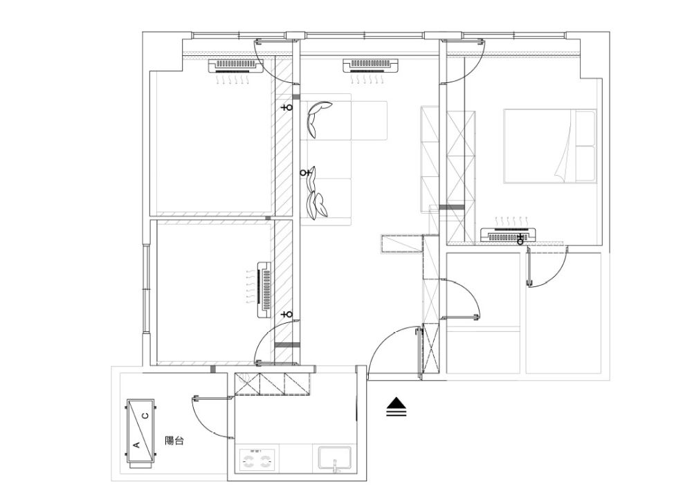
平面規劃&設計重點
全室以溫潤柔和的色調,營造明亮放鬆的居住感受,玄關與客餐廳採開放式串聯,少了多餘隔間,動線更直覺,並透過家具、收納順著牆面配置,保有適度留白,即使坪數不大也不顯擁擠。

▲設計後平面圖
VR720°全景預覽
三商美福提供的「720°VR全境擬真實境」服務,即使屋主沒有裝潢經驗,也能透過擬真畫面實際感受空間比例、動線配置與材質搭配,充分掌握設計重點與實際呈現效果,讓整個裝修的過程更安心踏實。

玄關

客廳

主臥
玄關設計
進門即為面對客廳的格局,選擇以帶有直向紋理的長虹玻璃屏風,作為玄關和公共空間之間的緩衝,巧妙化解穿堂煞,也保有良好的採光穿透性,而圓弧收邊造型,則為回家的第一眼增添柔和與安全感。玄關櫃以懸空設計呈現,讓立面視覺更顯輕盈俐落,下方可以直接收納常穿的鞋子,也預留未來放置掃地機器人的空間。



▲玄關櫃局部採開放設計,搭配溫潤的間接照明,成為展示擺飾與生活收藏的儀式感角落。




客廳設計
沙發背牆一路延伸至餐廳區的牆面,選用帶有細緻紋理的灰色特殊漆,在自然光照射下呈現出柔霧質感,不僅增添層次感,也成為米色沙發與淺色木地板之間的穩定背景,讓整體氛圍更沉靜耐看。電視牆上方設置層板,讓屋主展示書籍、藝術品或生活收藏,並配置插座,這樣一來,無論是小型燈飾、開運小物都能彈性擺放,且不破壞整體視覺。

▲設置懸空式電視櫃,減輕量體帶來的壓迫感,同時兼顧清潔便利性。


餐廳設計
餐廳簡單擺放一張圓形餐桌與兩張餐椅,在不佔用過多動線的前提下,滿足日常用餐與工作需求,而圓桌柔和的線條,正呼應全室偏向溫潤、低彩度的設計語彙,和弱化了空間轉角的銳利感,讓用餐氛圍更顯溫馨自在。


▲桌椅選用輕巧款式,搭配不同材質的混搭設計,簡約中增添生活感。
廚房設計
廚房採二字型廚具配置,將料理台、備餐台與電器櫃分列於兩側牆面,形成順暢動線,避免操作時相互干擾,也讓狹長型空間能被有效利用。電器櫃特別規劃抽拉盤設計,讓常用的小家電可在需要時直接拉出使用,也避免高溫蒸氣影響櫃體結構與安全,使用後推回櫃內,即能讓廚房恢復整潔。

▲透過走道中段保留適當寬度,即使兩人同時進出,也舒適不擁擠。

主臥設計
主臥延續公領域的低彩度、溫潤色調,形塑出安定、放鬆的休憩氛圍,床頭特別打造整合式床頭板,將開關、插座納入同一介面,使用上更順手方便,床頭上方也搭配間接照明設計,光線柔和不刺眼。另外,考量空間中的樑體結構,天花板以弧形收邊來修飾,視覺上更無壓。



▲善用牆面高度打造頂天立地大衣櫃,滿足衣物收納需求,衣櫃色調則與牆面相互融合,更顯清爽、俐落。
裝修後記
屋主坦言,第一次裝潢難免會擔心溝通不良或預算不透明,但三商美福設計團隊不但提供清楚、完整的報價內容,還搭配3D圖面與VR視角進行說明,讓他感到很安心,實際入住後,對於空間使用與整體氛圍,也感到相當滿意。規劃顧問Celine則分享,在整個專案中她最難忘的,便是與屋主反覆溝通、逐步凝聚共識的過程,以及一起挑選家具、軟裝配置的階段,透過細膩反覆討論,不僅讓設計完整度更高,也讓空間真正貼近居住者的生活樣貌。
| 系統櫃板材 | |
| 玄關 | ●波特蘭牙白A555/白色顆粒面T180 |
| 客廳 | ●波特蘭牙白A555/白色顆粒面T180 |
| 廚房 | ●山胡桃A545/白色顆粒面T180 |
| 臥室 | ●波特蘭淺灰A553/波特蘭牙白A555 FLOORPAN納爾維克白橡 |
帶走上百屋主驗證的《裝修最全指南》,簡訊免費發您








