想瞭解服務流程
丈量費用多少
想瞭解收費方式、收費節點
裝修預算怎麼抓
設計方案包含家具規劃嗎
該在什麼時候找設計師
設計師會合理控制預算嗎
找設計師前要做什麼準備
有案例平面圖嗎
設計費怎麼收
想瞭解服務流程
丈量費用多少
想瞭解收費方式、收費節點
裝修預算怎麼抓
設計方案包含家具規劃嗎
該在什麼時候找設計師
設計師會合理控制預算嗎
找設計師前要做什麼準備
有案例平面圖嗎
設計費怎麼收
一、購屋緣起
我們一家四口,平常住在南投。每次回台中娘家總是擠在一間小房間裡,空間實在不太夠用,有時先生和孩子也會覺得不太方便、難以久留。
某次回娘家時,發現附近一塊地圍起來準備蓋房子,那一刻突然冒出個念頭:如果能有個距離娘家不遠、回來也能自在過夜的地方該有多好……從那之後,我們開始關注建案的進度,也陸續去看了樣品屋。一路從預售到交屋,幾年下來,這間房子慢慢變成了我們用來轉換心情、在週末重新充電的居所。
裝修預算規劃與避坑清單
含Excel模板,限時0元領取
二、與設計團隊的相遇
南投的住家當初並未特別裝潢,這回等於是我們第一次從頭規劃裝潢。完全是「小白」的我,從100室內設計開始找喜歡的風格,再慢慢鎖定幾家台中的設計公司詢問合作。有的坦言預算較難配合、有的則未進一步回覆,最後只有禾宇設計給了正面回應。
那時正值疫情,我們透過視訊溝通,總監Doris的語氣溫柔、有耐心,即使我常常問東問西,也讓人覺得放心、好溝通。
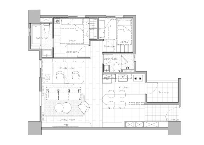
三、格局規劃與裝修需求
這間被我們親暱地稱作「小屋」的房子,室內坪數約20坪。原本是建商配置的三房格局,在客變時只保留兩房,將其中一間改為開放式書房;廚房則因已有基本配備,沒有進行太多調整。
由於這間房主要作為週末度假用,我對風格與空間配置有幾個明確的期待:
- 整體氛圍希望呈現柔和的奶油白色調,營造有放鬆感的度假氣息
- 加入藤編材質,並盡量避免銳利線條
- 公共空間盡可能開闊,臥室則維持簡單實用
- 每個空間都希望設計得完整,包括兩間衛浴空間
- 因應第二個孩子的出生,次臥設計為上下舖;先生要求主浴「一定要有浴缸」
我從網路上蒐集許多風格圖片給設計師參考,設計團隊很快就掌握了我喜歡的方向,整體討論也進行得很順利。
Before平面圖

After平面圖


完整裝修工具包(清單+話術+模板)已為你準備好!
四、裝修過程
裝修過程中,印象最深的是客廳後方隔牆打掉後,原本藏在線槽裡的電線因此跑到地面。當時建商原本要跟我討論線路調整方式,但我擔心自己轉述會有落差,直接請設計師與建商溝通。設計師重新計算,最後成功將電線藏進沙發背牆內,整個過程由他們協調處理,讓我完全不用夾在中間來回傳話。
另外,原本建商提供的地磚與我理想中的風格不太搭,設計團隊協助全室更換為木地板,僅在餐廚區保留地磚,方便清潔。因為我們是在很早期就提出客變,整棟大樓好像只有我們家成功更換地板,這點也讓我非常感謝設計師的專業與效率。
五、各區域設計特色
玄關
地面鋪設我挑選的幾何花磚,呼應整體空間的柔和氛圍。搭配一整面的造型全身鏡與圓角木質平台,使用上既實用又有設計感。鏡旁櫃體下方還特別設計成可坐下穿鞋的高度,小朋友使用也方便。電箱則巧妙隱藏在鏡旁的上下吊櫃之中,收納櫃選用藤編材質與圓弧收邊,一進門就有種讓人放鬆下來的感覺。


客廳/書房區
電視牆使用奶油色特殊塗料處理,簡潔大方,搭配淺色木作層板,讓我能擺放花藝作品和全家照片,也保留了未來彈性佈置的空間。天花板融入法式線板元素,線條細緻,不會太過繁複。
沙發背後的開放式書房以半高的水磨石矮牆作為區隔,保有視覺延伸感,空間分配更清楚。書桌後方結合上方的鐵件展示層架與下方的封閉式矮櫃,線條輕盈不厚重,除了能擺放書籍與擺飾,也有實用的收納空間。書桌旁還設計了一個窗邊臥榻,先生最喜歡坐在這裡看書、休息,陽光灑進來的時候,坐在那裡特別愜意。




餐廚區
廚房保留了中島與烤漆玻璃等建商原有配備,設計師補上冰箱櫃與高櫃,材質與色系一致,整體感更完整。餐桌從中島延伸而出,依照空間量身製作,桌下設有收納櫃,可擺放雜誌和書籍;設計中加入藤編元素,與整體風格相呼應,視覺上也更柔和溫潤。


主臥
採架高地坪設計,床下設有抽屜收納,抽屜配置於走道側,深度適中。床頭牆以木作百葉門片遮住原有窗戶,保留採光與通風,也解決我最在意的「窗簾壓頭」問題。衣櫃下方特意留空,方便收納來此度假的行李箱。床頭櫃是木工師傅現場打造的小抽屜櫃,尺寸剛好可放手機與小物,也可移動,使用更靈活。
天花板簡化處理,四周以圓弧修飾邊角,延續公領域的設計語彙,線條一致也更順眼。主浴入口的門片改為滑門形式,方便進出,也更符合空間配置。



次臥
孩子的房間設計成上下舖,採「錯層不重疊」配置,保有通透感、避免壓迫。上舖以藤編護欄圍出安全範圍,也與其他空間風格呼應。樓梯側邊設計為收納抽屜,上舖下方則規劃層架與掛桿,方便擺放衣物與雜物,拿取順手。兩個小孩最喜歡用被子把上下舖圍成祕密基地,在裡面玩上大半天。


衛浴
兩間衛浴的磁磚都是我親自挑選,主牆與地面分別選用不同花色的跳色幾何磚,其他區域則以奶油色系為主,風格維持一致。
主衛浴是先生最在意的部分,設計師將原本洗手台的位置改為浴缸區,再重新調整洗手台的配置,浴缸尺寸也剛好符合他180公分的身高需求。浴缸一側設有壁龕,可擺放沐浴用品。客衛空間雖然較小,使用現成浴櫃和簡潔的配置,機能也很足夠。



六、後記
入住一年以來,每次週末來到這裡,就像切換成另一種生活節奏。公共區域寬敞,每個人都能自在做自己的事。女兒甚至常常在要回家時哭著不想離開,說這裡才是她真正的家。親友來訪也都說這個空間很有度假感。雖然坪數不大,但設計讓空間看起來比實際大很多,使用起來非常舒服。
如果你也是第一次裝修,我真心建議:先確定自己喜歡的風格,再去找擅長那種風格的設計師合作,過程會順利很多,也比較不會出錯。我很慶幸當初選擇了禾宇設計,現在「小屋」已經成為我們全家人最喜歡待著、也最期待回來的地方。








