想瞭解服務流程
丈量費用多少
想瞭解收費方式、收費節點
裝修預算怎麼抓
設計方案包含家具規劃嗎
該在什麼時候找設計師
設計師會合理控制預算嗎
找設計師前要做什麼準備
有案例平面圖嗎
設計費怎麼收
想瞭解服務流程
丈量費用多少
想瞭解收費方式、收費節點
裝修預算怎麼抓
設計方案包含家具規劃嗎
該在什麼時候找設計師
設計師會合理控制預算嗎
找設計師前要做什麼準備
有案例平面圖嗎
設計費怎麼收
一、前言
房子已經是老屋了,過去一直是租給別人,後來生涯規劃的考量,決定整理後當作自己的住所,希望改造成很舒適,並能邀請三五好友夠輕鬆來家聚會的空間,因此著手找適合的設計師,起初在一般設計公司與個人統包之間猶豫不決,後來經同事介紹同樣是在新店的和慕設計,除了認為都在新店更方便溝通之外,他們的報價透明,回應也是最快速的,設計師展現出的細膩度與專業建議也讓我們十分安心,所以在預算符合預期的情況下,決定將裝修的重任交給他們。
2025 空間設計包免費領!
收納超省空間,小坪數救星!
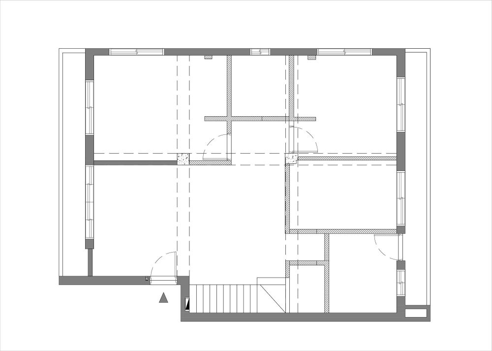
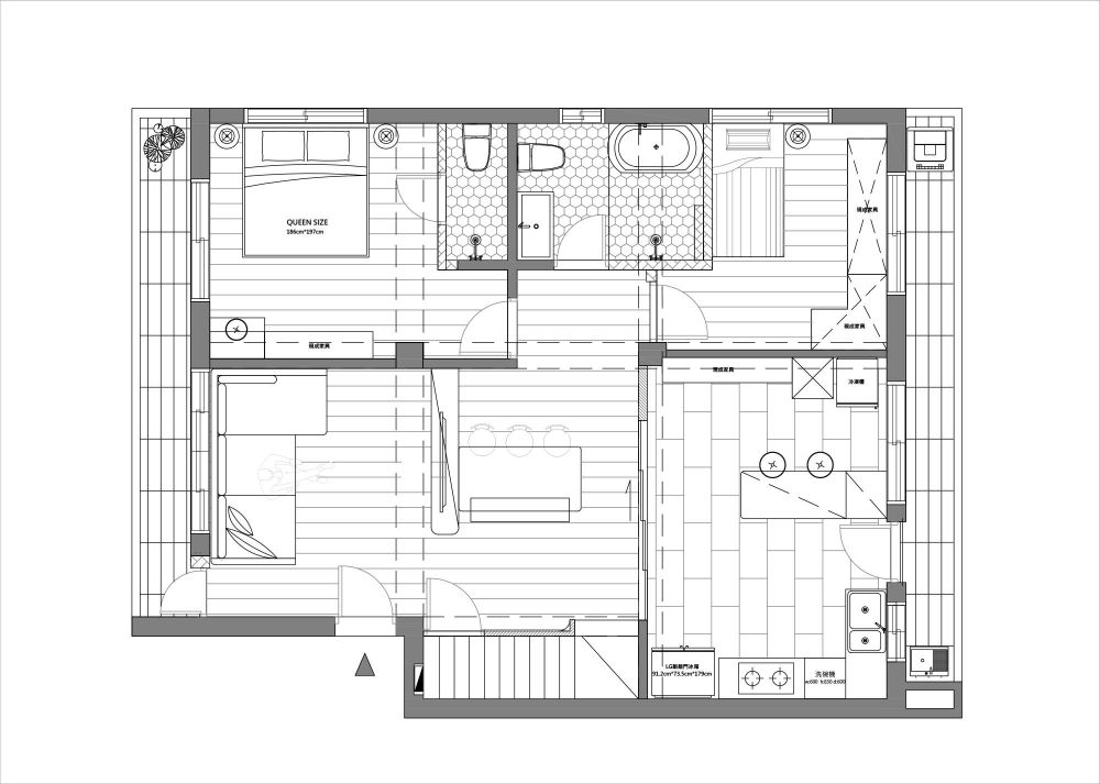
二、需求與格局調整
- 客廳:為了讓動線更寬敞,將電視牆移至中心位置,也如願以償放進一組夢寐以求的大沙發。
- 餐廚空間:把原本的封閉式廚房改掉,改以一座寬敞的大餐台為中心,方便平常做蛋糕的興趣使用,也是方便招待好友的核心區,還另外加裝廚房拉門。
- 衛浴:考量要在家幫狗狗洗澡的問題,原本狹小的客浴不好使用,將客浴擴大後淋浴區變得寬敞,同時新增了浴缸。
- 收納:不喜歡視覺上太壓迫的收納櫃體,因此利用樓梯下的畸零空間規劃一個隱藏牆面的儲藏室,連電動麻將桌都能輕鬆收納進去。
Before

After

三、完工分享
客廳
我很喜歡當初設計師提出的半高電視牆的想法,不僅走道視覺感瞬間變得寬闊,也自然地為客廳與餐廚區劃分出明確界線,而且電視牆加裝了旋轉五金,讓電視可以隨需求調整角度,無論是坐在沙發上,還是朋友們在餐廚區喝酒聚會都能夠輕鬆看電視,使用上非常彈性。



當時有和設計師討論希望整個家色調不要太白,設計師就建議以奶茶色、白色和灰色去營造暖心舒適的氛圍。最特別的是那道半高電視牆,選用了義大利進口的奶灰色特殊塗料,質感細緻還具備好清潔的優點,即便經常旋轉電視、手部頻繁接觸,只要用濕布輕輕一擦就乾淨了,此外,考量到家裡有寵物,建材都是選擇好打理的材質,像是儲藏室的隱藏門整面貼上木皮,除了提升空間的溫潤感,清潔起來也非常輕鬆。


因為擔心家中貓狗跑跳時會撞到銳角受傷,設計師主動提議將櫃體轉角改為圓弧設計,入住後發現這項巧思不僅保護了寵物,對我們人也蠻有感的,不小心踢到也沒那麼痛,真的是超貼心的設計!

餐廚區
把原本封閉式廚房的隔間拆掉後,等於客廳變成雙面採光,室內明亮度跟寬敞度都比以前好很多,最讓我喜歡的轉變是,以前朋友來訪,自己在廚房忙碌或洗碗時總覺得被隔絕在另一個世界,現在即便在流理台前,也能輕鬆加入大家的聊天話題。考量到經常下廚而加裝了輕透的玻璃滑門,既能有效阻隔油煙,又能彈性切換空間,同時不影響視覺的通透感。


衛浴
把客衛浴擴大後,現在整個動線變得相當寬敞,淋浴區和泡澡區分開更能方便幫狗狗洗澡,而且為了因應這個需求,還特別在牆面80公分處增設了第二組龍頭,這個高度的設定真心有感幫狗狗洗澡的過程變得更輕鬆,完全感受到了設計師對我們家毛孩的貼心考量。

帶走上百屋主驗證的《裝修最全指南》,簡訊免費發您
四、完工心得
入住至今約兩年半的時間,整體規劃都非常契合生活習慣,最滿意的是廚房區域,過去封閉式的廚房改成開放式後,那種寬敞度和能夠大家交流互動的感覺是我們最喜歡的改變。
回過頭來看,想給裝潢新手們一些真心建議,首先是洗碗機絕對是解放雙手的必備神物,早買早享受~再者,選擇設計師時除了專業度,對方是否足夠細心、溝通是否即時,也是讓裝潢過程不心累的關鍵!







