想瞭解服務流程
丈量費用多少
想瞭解收費方式、收費節點
裝修預算怎麼抓
設計方案包含家具規劃嗎
該在什麼時候找設計師
設計師會合理控制預算嗎
找設計師前要做什麼準備
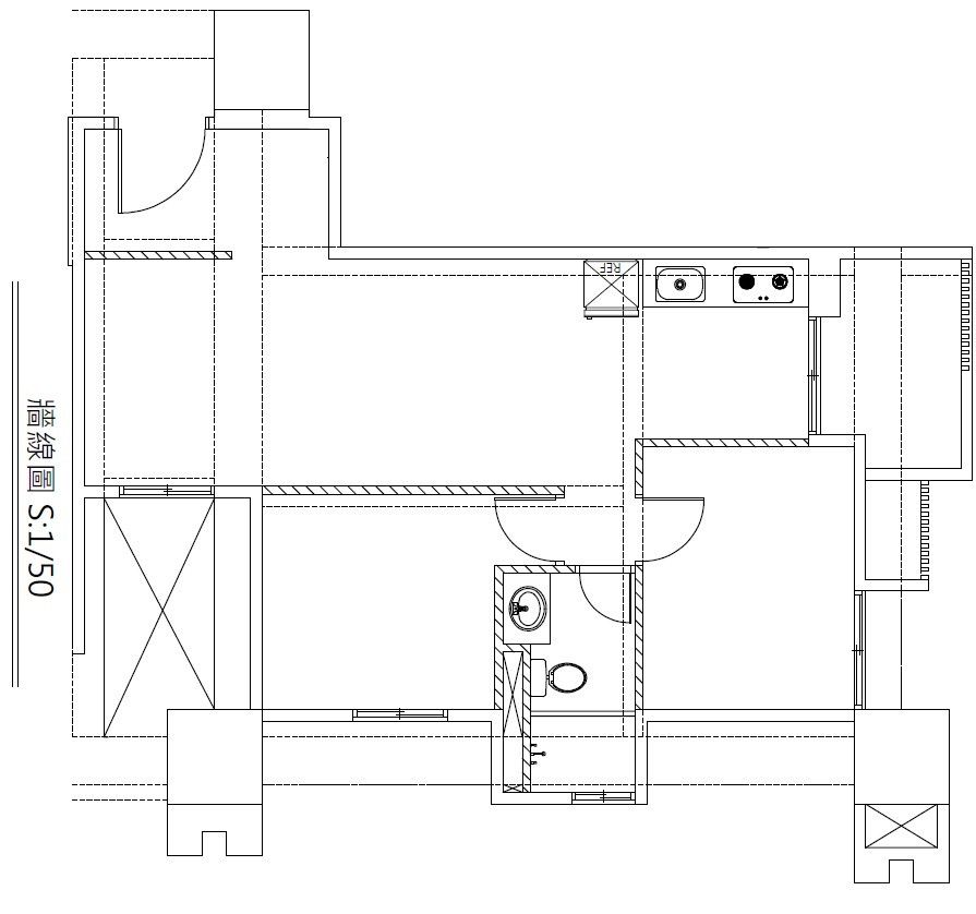
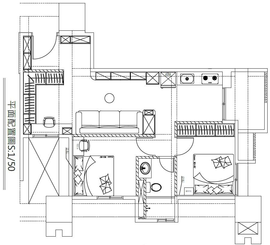
有案例平面圖嗎
設計費怎麼收
想瞭解服務流程
丈量費用多少
想瞭解收費方式、收費節點
裝修預算怎麼抓
設計方案包含家具規劃嗎
該在什麼時候找設計師
設計師會合理控制預算嗎
找設計師前要做什麼準備
有案例平面圖嗎
設計費怎麼收
一、裝潢緣起
我們之前都是租屋,一直計畫想在台中定居買房,在仲介的協助下,終於遇見這間約 20 坪的小宅,雖然坪數不大,但格局、預算都符合我們的需要,也成為我們人生中的第一間房!
↓我們家裝潢之前的樣貌




完整裝修工具包(清單+話術+模板)已為你準備好!
二、找設計公司過程
買到房子後我們就開始上網做功課,仲介也有推薦我們設計公司,但畢竟過去沒有太多裝潢的裝驗,我們想找具規模、風評好且知名的公司,而「歐德」不僅形象好,設計師認真又仔細,也能接受我們各種討論和修改,因此很放心把我們的家交給歐德!
三、我們的需求
我們家居住人口簡單,兩位大人加上兩隻調皮的毛孩。希望不動大格局下,家裡要有溫馨舒適的氛圍,空間上需要規劃友善喵星人的設計細節,但不想做太多貓跳台。另外我們東西較多,還收藏了很多公仔,不論收納、展示還有公私領域生活動線等,都需要設計師為我們安排。

完整裝修工具包(清單+話術+模板)已為你準備好!
四、設計師的規劃
1.空間氛圍:以溫潤的奶油風為基底,透過大面積奶茶色系與木質調營造舒適柔和感。
2.格局安排:2+1的格局中,將+1房打造成開放式的多功能書房,並在客廳轉角量身規劃圓弧展示櫃,三面向的開口結合貓跳台與收納展示,同時也界定場域。
3.機能規劃:規劃多個展示區,讓收藏的各式公仔都能成為空間中有趣的細節,不論玄關、書房還是客廳,都能有可愛的公仔端景。
▼Before / After


五、完工美圖
●玄關
考量我們兩位大人的鞋量,以及平時進出門的習慣,將進門主牆做了頂天收納櫃,中段刻意留出檯面與開放層格,搭配內嵌燈光,成為展示收藏與日常小物的溫柔角落,也自然形成回家時的置物平台。另一側作為動線的過渡地帶,上方以燈帶引導視覺,搭配牆面全身鏡,既放大空間感,也讓出門前整理儀容更順手。



●客廳
客廳以我們喜歡的奶茶色鋪陳,搭配淺木紋地坪,營造出放鬆舒適的日常氛圍。電視牆採低檯面懸浮櫃設計,線條簡潔俐落;沙發側邊特別規劃木作圓弧展示櫃,鏤空的配置讓光線能自然延伸進室內,並結合層板與貓跳台,讓這裡不僅成為展示公仔與收藏的亮點,也為貓咪打造專屬活動路徑!




●書房
位於玄關與客廳之間的書房,原本是建商規劃的+1 房空間,我們將它重新定位為可彈性運用的多功能室。長桌整合收納與插座,既能作為日常書房,也能兼顧梳妝使用;一側的展示櫃成為從玄關入內的第一眼亮點,陳列我們的收藏公仔。其餘兩面牆則設置頂天立地收納櫃,在不壓迫視覺的前提下,大幅提升整體收納機能。



●餐廚區
因為坪數不大,我們的餐廚區緊鄰客廳,採取開放式規劃,儘管尺度有限,廚房機能卻相當齊全,電器櫃、冰箱櫃都事先依實際尺寸量身配置,使用起來更加順手。備餐空間搭配吊櫃與下櫃收納,日常鍋碗與乾糧用品都有各自歸位。



●臥房
臥房同樣以簡約溫柔奶茶色調為基底,配合我的身高置入KING SIZE大床,搭配舒適的order奧莉薇亞綠色床墊,床頭處也預留插座及開關超貼心。收納櫃結合開放層格與封閉櫃門,規劃出實用的污衣吊掛區,讓日常更衣與整理動線更加順手。櫃體下方特別作了圓形貓洞,成為貓咪自在穿梭的小入口。


●次臥房
次臥同樣以清爽淺色為主調,床頭以延伸式木質背板整合插座與間接照明,整體配置兼顧機能,簡約不單調,保留彈性使用空間,可依需求作為客房或未來生活調整。

五、裝潢後記
目前居住將近9個月,想起以前住在租來的小套房裡,連睡覺都沒辦法伸直雙腳,現在空間變大,住起來好舒服,也有了更多展示空間,可以盡情收集喜歡的公仔及藝術品!最讓我們滿意的就是沙發旁的轉角櫃了,設計師利用這個小空間打造出上方讓貓咪玩耍跳躍、下方可以收納貓砂盆、側邊還能展示的多功能櫃,轉角式的設計讓貓咪便便不會把砂帶出來,清理也方便,真是超級聰明的設計,也把這個靈感推給未來的貓奴屋主們喔!
亮點:









