拍张客圖,AI極速换装,1分鐘出圖
想瞭解服務流程
丈量費用多少
想瞭解收費方式、收費節點
裝修預算怎麼抓
設計方案包含家具規劃嗎
該在什麼時候找設計師
設計師會合理控制預算嗎
找設計師前要做什麼準備
有案例平面圖嗎
設計費怎麼收
想瞭解服務流程
丈量費用多少
想瞭解收費方式、收費節點
裝修預算怎麼抓
設計方案包含家具規劃嗎
該在什麼時候找設計師
設計師會合理控制預算嗎
找設計師前要做什麼準備
有案例平面圖嗎
設計費怎麼收
一、裝潢緣起:第一次規劃就得到認可
「屋主一開始找了幾間設計公司,而我們初步規劃就得到屋主的認可。」ON Design Lab設計總監蔡曜牟說。原來年屆五十的屋主夫妻,與兩個孩子、兩隻貓咪入住這個的新宅邸,設計團隊一步步梳理一家人的生活需求與喜好,先釋放公領域,再細膩鋪陳亮點,活絡的空間運用與極具巧思的細節,也讓整體規劃貼合屋主對理想生活的想像。

完整裝修工具包(清單+話術+模板)已為你準備好!
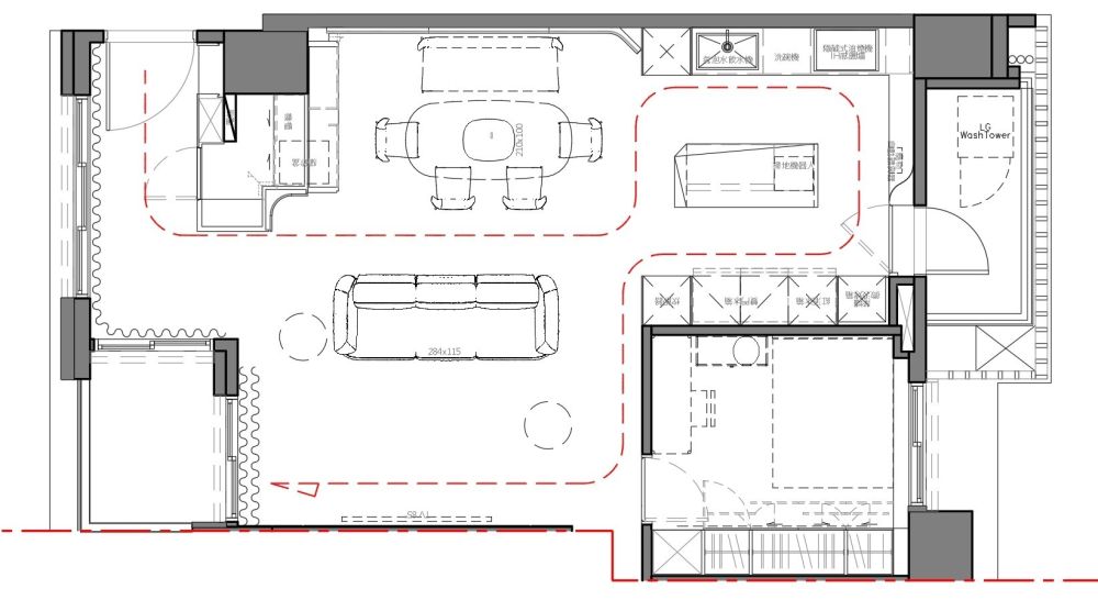
二、格局規劃:雙循環動線整合公領域
蔡總監進一步指出,原始格局因獨立書房與封閉式廚房分割了公領域,使客廳動線顯得單一而受限——「進門只要一個轉身,就會望進底端後陽台」,因此選擇拆除書房,重新梳理客、餐、廚之間的關係,以中島為核心,打造自由寬闊的Open Kitchen;並以沙發圍塑影音娛樂場域,構築出流暢的雙循環動線,將原本零碎的空間重新整合。

▲住宅公領域平面圖(裝潢前)

▲住宅公領域平面圖(裝潢後)
三、空間設計:重塑客餐廚關係,讓機能與美感同時成立
●客廳
許多屋主或設計師喜歡在「電視牆」上變化造型,創造客廳視覺核心,但四四方方的電視螢幕,往往反而成了端景的干擾源。蔡總監在這場設計中選擇反其道而行,把視覺還給螢幕,以極簡收斂的立面語彙,搭配低背沙發配置,讓空間不再被電視牆綁架,而是回歸純粹、安定且耐看的生活場域。





●餐廳
設計團隊將全室核心亮點從客廳移至餐廳,餐桌側壁以一整道墨藍漸層的石紋牆鋪墊用餐場景,透過藏燈、藏維修孔的設計巧思,讓光線順著石紋層理自然透出亮度,呈現微光晶石的華麗效果,讓人目光捨不得離開,近乎藝術裝置的手法下,強化餐廳日常交流的情感場域,進一步型塑家的生活核心。




●廚房
廚房原先採封閉式配置,設計團隊退掉隔牆與拉門,讓空間重新連結。立面則整合大型廚電設備於側壁,再以石紋牆將後陽台門片隱藏,維持整體的純淨感。設計團隊在拿捏動線尺度後,中央打造具雕塑感的中島,延伸檯面機能的同時,更成為料理備餐、輕食交流的核心。在材質拼接與斜面轉折下,多角度切割語彙中島,讓廚房不只是廚房,而是連結餐廳、承載全家人互動的生活舞台。





●臥室一
相較於公領域的層次鋪陳,私領域的臥房刻意回歸純粹與安定。這裡以和諧牆面色調、溫潤木地板與俐落櫃體,保留足夠留白,間接光源柔和鋪灑,搭配弧形鏡面與輕盈家具,營造出乾淨、靜謐卻不失溫度的休憩場域。



●臥室二
依屋主個人喜好選用沉穩的酒紅色作為空間主調,讓這間臥房在低彩度中保有個性。櫃體以大面積酒紅立面延伸至天花,搭配圓弧收邊設計,柔化原有橫樑的銳利感,也讓視覺線條更為流暢,讓簡約的空間多了一份溫度與靜謐感,形塑出專屬的安定私領域。



●浴室
客浴與主浴皆延續全室自然而華麗的質感語彙,灰白色階的鈦鋼石鋪陳空間基調,搭配霧金色的五金細節,空間細膩而不張揚;設計團隊以大板磚石與特殊塗料細細處理天地壁細節,儘可能去除縫隙線條在小空間中的繁複,留下純淨明亮的立面視覺,讓每日的洗浴時刻,都能享受獨有的儀式感與從容。





四、不為人知的設計思考
「尺度不是比例尺,而是與世界互動的距離」──ON Design Lab. Ltd蔡曜牟總監曾在官方Instagram分享自己對於空間設計的觀點。他解釋,小尺度的差異藏在 0.5 毫米的收邊、在手指摸到的回饋、在光滑與微紋之間的恰到好處;放到更大的尺度,設計開始處理的是「人會怎麼靠近」—包括接縫要藏在哪裡、比例要怎麼拿捏、材質要怎麼使用—這些不只是風格選擇,而是結構與尺度的判斷。









