想瞭解服務流程
丈量費用多少
想瞭解收費方式、收費節點
裝修預算怎麼抓
設計方案包含家具規劃嗎
該在什麼時候找設計師
設計師會合理控制預算嗎
找設計師前要做什麼準備
有案例平面圖嗎
設計費怎麼收
想瞭解服務流程
丈量費用多少
想瞭解收費方式、收費節點
裝修預算怎麼抓
設計方案包含家具規劃嗎
該在什麼時候找設計師
設計師會合理控制預算嗎
找設計師前要做什麼準備
有案例平面圖嗎
設計費怎麼收
一、前言
因為從事教育相關工作的關係,我和太太、女兒長期過著南北奔波的生活,直到當年疫情爆發,大家被迫中斷忙碌的日子,我才有時間靜下來想到底想要什麼樣的生活環境和居家空間。那時太太正忙著備考,我們也決定讓孩子之後在家裡自學,而既然要自學,我認為空間就不該是被定義好的,不希望家裡看起來像教室,希望這個環境是孩子可以參與、自由探索的,同時又能是一個看起來很安穩,適合讓一家人靜下來的空間。

完整裝修工具包(清單+話術+模板)已為你準備好!
二、找設計師的過程
這間房子的坪數不算小,但原本配好的格局真的完全不符合需求,我從一開始就很清楚如果不打破框架重新規劃,這裡永遠沒辦法變成我理想中的家,我先後找了三位設計師,雖然心裡的藍圖已經很清晰,但收到的圖面總是太保守,感覺只是在現有的框架裡修修補補,直到遇到了成立設計才真的有了轉機,設計師本身是當代藝術家出身,這讓他看空間的角度很不一樣,最打動我的是他會花很多時間傾聽、仔細了解我們的生活細節,基本上有別於其他設計師像是在做「工程案」,他反而是真的把我家當成一件「作品」在創作,甚至非常有膽量去挑戰那些一般設計師不敢動的格局部份,光是討論就花了將近九個月,雖然我對新家已經有很多想法,但設計師更像是一位引導者,他把我對有限空間的想像轉化成更沒有邊際的無限自由模式,而且因為我很早就把家具都挑選好了,這其實對設計師而言是一大挑戰,他必須在規劃空間的同時,把這些已經存在的家具完美整合進去,過程中他接住了我對細節的所有堅持,還讓家具與空間產生了很好的連結,這也讓我對完工後的成果相當有信心。
三、設計想法
希望能融入信仰的元素,我和太太都很喜歡丹麥現代教堂那種簡約、神聖且充滿寧靜感的設計,那種挑高、優雅的弧形與拱型線條,總能讓人一進去就感覺心很定,另外,因為不喜歡視覺上有生硬的稜角,所以提出盡量轉角都做導圓處理,不管是天花板、地面、還是牆面,甚至燈條都能順著圓潤的弧度走。
裝修預算規劃與避坑清單
含Excel模板,限時0元領取
四、格局與設計說明
1F
除了功能上的增減,為了實現那些天地壁的弧線,其實也補強了許多結構,對我們來說這不是一個用來招待客人的地方,而是一個專屬於家人的極私密空間,因為不考慮對外,完全可以按照自己的生活習慣徹底拆解並重組這個家。
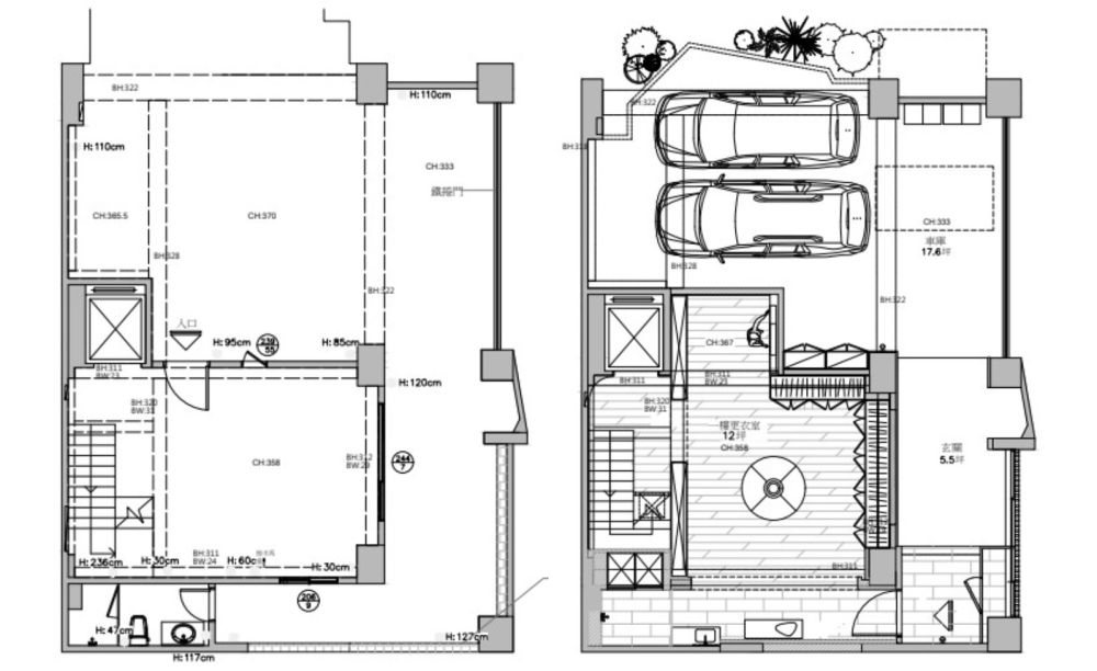
首先挪動了大門與車庫的位置,因為常常去海邊玩,加上那時候還在疫情期間,希望一進門就能先簡單清潔,所以一樓入戶處設計成一個全封閉的區塊,一進家門,眼前就是洗手台、更衣室和收納櫃,還有一個開放式的淋浴空間,就像是一個隱密的洞穴,不需要多餘的光線,我們一家人可以把私密的一面展現出來,也能在這裡就把外頭的紛擾徹底隔絕開來。
空間的中心點是一張Poltrona Frau的圓凳,對應著天頂螺旋向上的線條,圓凳中間設有一個花器區,有一種地面上的綠意向上生長、像個室內的小花園,與挑高的弧線穹頂灑下的光線交織在一起的意象。
除了做大量的收納櫃來維持視覺上的乾淨,還特別運用了壁龕設計,用來擺放珍藏的藝術品,那種帶點原始感、不刻意修飾的質感,讓空間雖然有神聖感,卻一點也不嚴肅,反而添了一分放鬆的感受。
1F Before&After平面圖







2F
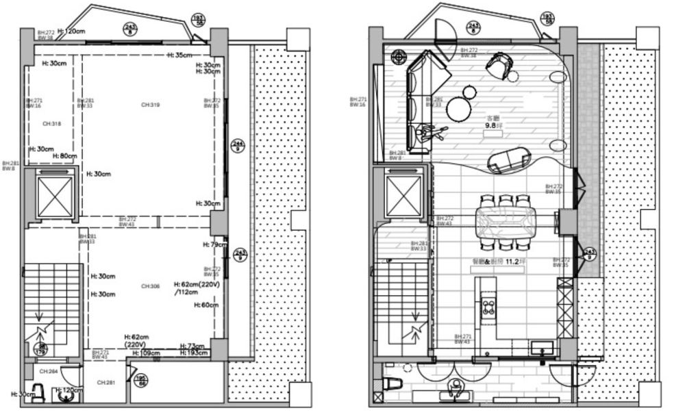
二樓主要由客廳、餐廳和廚房組成,空間的界線不是靠牆,而是用地面上的弧線來區分,這道弧線也正好跟天花板的線條互相呼應,廚房那一區就像是一池平靜的湖泊,而客廳區則是延伸出來的岸邊,我們家最特別的地方是客廳沒有電視,對我們來說最重要的娛樂就是對話,所以沙發和椅子的擺放是像露營一樣圍成一個圈圈,大家圍著中間,就像圍著無形的營火,這樣的配置能以人為中心,只要孩子在哪、話題就在哪。
那張鞦韆椅是一開始就選好的,太太和女兒都很喜歡那種腳離地的輕盈感,垂掛在客廳與廚房的交界處,視覺上其實也很像一艘輕輕滑在湖面上的小船,既安靜又自在,而空間裡隨處擺放的小凳子,是為了讓女兒發揮想像力,這些凳子輕便好移動,對她來說就像是遊戲裡的道具,她可以自己拖著走、隨意擺放,這也是當初希望讓孩子能深度參與環境的完整實踐。
為了維持空間的穩定,我們封掉了幾面不必要的窗戶,雖然窗戶少了,但因為原本的樓梯側牆有打開,加上空間基底是明亮的白色,且運用了大量的弧形、拱型設計,讓光線能串聯穿透,採光依然非常充足,視覺上也顯得更加柔和。
2F Before&After平面圖
















3F
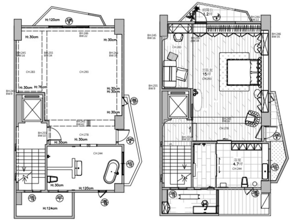
一般人的臥室習慣用窗簾擋光,但我們希望能更徹底一點,三樓主臥室封了大部分的窗戶,只保留一扇用來通風,當門一關上,房間就成了真正的暗房,這種物理上的封閉,其實在心理層面給了一種紮紮實實的包覆感,只要沒有光線的干擾,休息時的心理負擔感就降低了。
臥室和衛浴空間都刻意放得很大,除了追求身心放鬆,還有一方面是因為不希望家具被擠在角落,像我們選的是Poltrona Frau的床架,由於空間足夠開闊,這張床的線條與皮革細節可以完整地被看見,像是一件藝術品靜靜地待在那裡,而且房間也沒有多餘的擺飾,這種秩序感非常重要,我們的生活習慣是家具一旦選定、想好了,就不會再隨意新增,算是一種對極簡自律生活的練習。
3F Before&After平面圖




4F
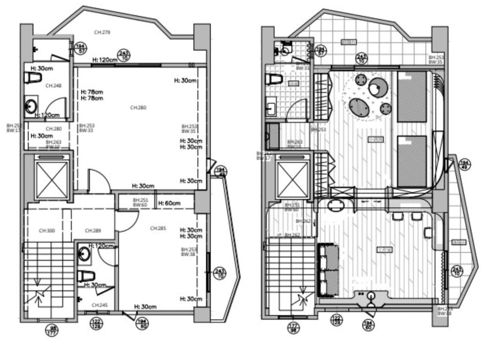
因為孩子自學的需求,四樓為一個明亮、不受限的學習與創作空間,設計師憑藉著美術背景的直覺刻意留白,讓格局不成為制式框架,並打造了能接納孩子所有奇思妙想的環境。比方說書櫃不走制式路線,而是像樹洞的設計,我們還在這裡放了一張蛋椅,為了兼顧質感與耐用度,特別挑選了硬挺的馬鞍皮革,支撐力夠又沒有塑料感,女兒很喜歡這個椅子,她會把她的娃娃好朋友們都擺進去,自己也能在裡面看書、聽我說故事,對她來說,這個蛋椅就像一個小小的私人領域,能幫助她去探索自我。
這層樓最有趣的細節是洗手台,考慮到畫畫的需求,用水晶打造了一個不會卡色的水槽方便洗水彩筆,這面牆它帶有層層弧形,遠看很像教堂裡的端景,蓄滿水時又像一個清澈的小池塘,這不僅是為了洗筆,更有一種淨化的象徵。
而不設限的想法也延伸到孩子一旁的臥房,沒有傳統設計的床組,為了保持空間的連動與流動性,我們讓這裡徹底開放,孩子可以隨性地拉著棉被就在地上休息,或者在寬敞的空間裡追趕跑跳,這裡擺放作品的空間與生活動線完全融合,讓她在遊戲中自然地學習與成長,沒有制式的機能分界,只有滿滿的自由,這就是我們想給她的。
4F Before&After平面圖





5F
五樓一部分是增建的空間,也是給女兒的另一個自學場域,這裡兼具了音樂與運動的空間,是孩子可以盡情活動、探索身體律動的地方,那一座螺旋梯是因為我父親以前是一位船員,船艙中的結構一直都留在我腦海裡,對我而言有一種象徵傳承的精神在空間裡延續著。
5F Before&After平面圖


五、完工心得
這座房子的規劃,其實早在四年前就已經開始在腦海中成形,對我來說人和環境應該是流動的,很多人是裝潢好才買家具,但我正好相反,後來想想,倒因為家具早就定位,反而更能看出之後空間規劃上的純粹。
設計師最讓我敬佩的,是他的藝術家價值觀,不是用那種最保險、最可能實現的方案,而是真的感同身受我的情緒,接納我那些天馬行空的想法,甚至光是選磁磚就選了八個月,這種對細節的偏執,若不是遇到同樣具備這樣的堅持的他,我想大概是很難堅持下去,他不僅有著開放的心態去傾聽,更運用專業工程知識,幫我把預算精準地花在刀口上,在這個過程中,我也看見了他對我們一家人的重視與尊重。
而這次裝潢大改格局部份,對施工師傅們來說也是一場挑戰,聽師傅說,施作我們家是一座里程碑,他們拋下了過去對工程的既有認知,在這個案子裡做出了極大的成就感,我聽了也覺得很開心。
這次最有感觸的是,我不是單純在蓋一間房子,而是把理想中的生活型態完整地實踐了出來,在這個自由且靜謐的空間裡,全家人終於找到了那份最神聖、最紮實的安定感。







