想瞭解服務流程
丈量費用多少
想瞭解收費方式、收費節點
裝修預算怎麼抓
設計方案包含家具規劃嗎
該在什麼時候找設計師
設計師會合理控制預算嗎
找設計師前要做什麼準備
有案例平面圖嗎
設計費怎麼收
想瞭解服務流程
丈量費用多少
想瞭解收費方式、收費節點
裝修預算怎麼抓
設計方案包含家具規劃嗎
該在什麼時候找設計師
設計師會合理控制預算嗎
找設計師前要做什麼準備
有案例平面圖嗎
設計費怎麼收
房屋信息
●房屋狀況/新成屋
●坪數/19坪
●空間格局/3房2廳2衛
●風格屬性/美式風
●居住人員/4人
帶走上百屋主驗證的《裝修最全指南》,簡訊免費發您
平面規劃&設計重點
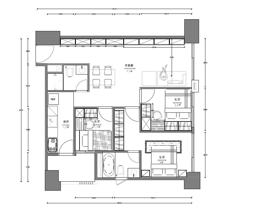
這間19坪的新成屋,在不動格局的前提下,保留三房、兩廳、兩衛的完整配置,公領域採開放式設計,讓客、餐廳串聯,使動線更為流暢,採光也能自然延伸,降低小宅的壓迫感。整體規劃透過色調、材質與線條的延續,維持空間一致性,讓機能與美感並行,展現低調卻極具質感的美式生活樣貌。

▲設計後平面圖
VR720°全景預覽
三商美福提供的「720°VR全境擬真實境」服務,讓設計師與屋主的討論不再停留在平面圖或想像,而是透過更直覺、具體的畫面進行溝通,不僅雙方更容易取得共識,屋主也能提前感受空間比例、動線配置與材質呈現,為整個裝修過程增添安心與信任感。

玄關&餐廳

客廳

主臥

完整裝修工具包(清單+話術+模板)已為你準備好!
玄關設計
玄關以窯變六角磚鋪陳落塵區,增添視覺層次,也兼具耐磨、好清潔的功能,沿牆則規劃整面線板收納櫃,讓空間保持整潔有序,櫃體中段也特地穿插開放式展示格,讓屋主可隨需求、喜好更換擺設,像是綠植、開運招財擺件等,讓空間充滿溫度與生活感。

▲玄關櫃體層板可依鞋款高度、物件尺寸做調整,使用上更靈活彈性。

▲酒櫃的透明玻璃視覺與木質背板形成對比,搭配柔和燈光,營造宛如展示精品的優雅氛圍,也是餐廳與玄關端景的一大亮點。
餐廳設計
餐廳選用石紋岩板餐桌,紋理低調細緻,桌腳的俐落線條設計,自然放大餐廳尺度,降低擁擠感,天花板上的吊燈則是金屬、玻璃材質相互交織,映襯牆面線板與淺色家具,營造微奢卻不浮誇的空間感受。



客廳設計
柔和奶油白線板電視牆,以俐落對稱的框線為牆面增添亮點,呈現經典耐看的美式風格調性,即便大面積留白也不會覺得單調,沙發背牆則同樣延續線板語彙,整體更和諧一致。懸空電視櫃搭配隱藏式燈條,形成柔和間接光源,在提供充足收納機能之餘,也不會造成壓迫。

▲因應客廳縱向尺度較短的空間限制,櫃體特別採取集中配置於電視牆同側的方式,避免左右分散造成空間切割感。


▲選用可依需求調整進光角度的百葉窗,讓自然光溫柔灑入室內,也讓美式風格更到位。


臥室設計
主臥以奶油白與米灰色鋪陳,營造適合休憩的靜謐場景,牆面透過線板造型細膩勾勒比例,增添視覺層次,型塑細緻有質感的美式優雅,再搭配圓潤柔軟、包覆感強的布質床頭板,更顯舒適放鬆。此外,牆面也設置兩盞金屬壁燈,注入精緻光澤,既提供夜間閱讀的實用照明,也成為牆面端景的重要裝飾。




▲次臥牆上設置層板,可讓屋主擺放香氛與日常小物。
裝修後記
完工後,屋主表示這次裝修真的圓夢了,對他們而言,這不只是一個日常居住的地方,而是一個能讓人放慢步調、好好感受生活的空間,整體耐看有質感,收納機能也滿滿,每天住起來都覺得很放鬆、很療癒舒適。
系統櫃板材 | |
全室櫃體 | ●灰棕杜里橡木 |
門板 | ●Belsay瓷白 |








