隨手换装,輕鬆感受装修效果
想瞭解服務流程
丈量費用多少
想瞭解收費方式、收費節點
裝修預算怎麼抓
設計方案包含家具規劃嗎
該在什麼時候找設計師
設計師會合理控制預算嗎
找設計師前要做什麼準備
有案例平面圖嗎
設計費怎麼收
想瞭解服務流程
丈量費用多少
想瞭解收費方式、收費節點
裝修預算怎麼抓
設計方案包含家具規劃嗎
該在什麼時候找設計師
設計師會合理控制預算嗎
找設計師前要做什麼準備
有案例平面圖嗎
設計費怎麼收
原本出租的35年老屋,隨著孩子即將北上念書,屋主決定重新整理規劃,讓空間回歸自住需求,因喜歡淺色調的明亮感,以及帶點石紋質感的輕奢氛圍,委託三商美福設計團隊操刀,從平面配置到材質搭配,逐一梳理生活所需。最終,為屋主一家三口打造出質感、美感與實用機能都兼具的23坪現代風格居所。
房屋信息
- 房屋狀況/中古屋
- 坪數/23坪
- 空間格局/2房2廳2衛
- 風格屬性/現代風
- 居住人員/3人

完整裝修工具包(清單+話術+模板)已為你準備好!
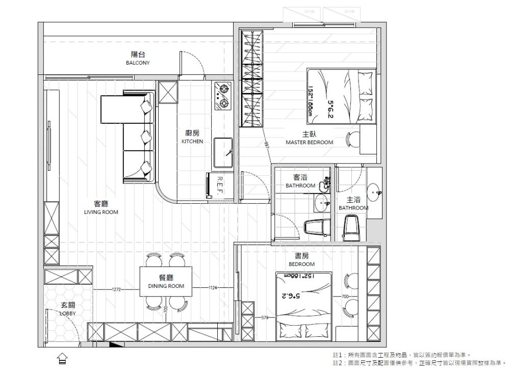
平面規劃&設計重點
調整原先過長、使用效率不高的玄關尺度,透過縮小玄關、放大客廳,讓客廳更寬敞舒適,且考量到平時全家人習慣待在同一空間聊天、互動,公領域採開放串聯的配置,讓客廳、餐廳與廚房形成一氣呵成的核心場域,家具、櫃體也多沿牆配置,保留中央走道完整,讓動線順暢不擁擠。在收納規劃上,則著重於公區機能整合,透過整排櫃體將生活物品集中收納,讓私領域保有更單純、舒適的休憩空間。

▲設計後平面圖
VR720°全景預覽
三商美福提供的「720°VR全境擬真實境」服務,讓設計師與屋主在討論階段,即可透過擬真畫面直覺掌握空間比例、動線配置與材質搭配,以更具體的視覺方式進行溝通。藉此,雙方也能更快取得共識,讓屋主提前感受未來家的樣貌,為裝修過程增添安心與信任。

餐廳

客廳

廚房

主臥
玄關設計
玄關鋪設六角花磚作為落塵區地板,界定室內外邊界,花磚圖樣也成為視覺亮點,側邊規劃矮櫃平台,可隨手放置鑰匙、口罩等小物,上方搭配壁燈,營造溫暖柔和迎賓氛圍。玄關櫃設計簡約俐落,局部挖空作為開放展示端景,可陳列植栽、擺件,櫃體內部整合穿衣鏡,因隱藏於門片之後,使用時開啟即可完整映照全身,平時關起來則維持立面整潔。



餐廳設計
餐廳以高機能收納櫃,搭配輕食吧檯為核心概念設計,透過整排收納櫃配置,將電箱巧妙隱藏其中,且特別加深櫃體深度,能完整收放電扇、除濕機、行李箱等大型家電與物件,部分櫃體則規劃為汙衣區,使用上相當彈性多元。輕食餐邊櫃的平台可以擺放熱水瓶、咖啡機,上層開放櫃搭配格狀設計,則能展示女主人收藏的馬克杯,增添生活溫度。

▲最上層的門片是黑玻材質,讓視覺層次更豐富。

▲餐廳選用石紋陶板餐桌,細膩紋理與大尺度桌面成為餐區焦點,也符合高使用頻率的需求。



客廳設計
霧面石紋電視牆設計,紋理自然有質感,表面的切割造型線條,則讓大面積牆面不顯單調,下方規劃懸空式電視櫃,提升視覺輕盈感,同時也便於日常清潔。考量到屋高不高,避免複雜、厚重的天花設計,選擇以弧形柔化橫樑存在,降低壓迫感,也為空間注入溫潤柔和氛圍。

▲大面收納櫃的中段特別打造開放展示櫃,可擺放收藏品、書籍或植栽,作為空間點綴。


▲天花線條簡潔俐落,搭配嵌燈,維持乾淨明亮視覺感受。

▲沙發背牆的圓弧設計不僅修飾原有結構,也避免直角牆面造成的壓迫與碰撞風險,讓進出廚房的動線變得更加流暢。
廚房設計
廚房與客廳間採玻璃隔間設計,屋主在廚房料理時,仍可透過玻璃看到客廳電視,並與家人互動,同時將自然光引入廚房,使空間更明亮通透,而在原本一字型廚房的基礎上,透過微調廚房尺度,新增工作平台,使格局轉為二字型配置,既增加收納量,也擴充備餐與料理檯面,下廚時更順手便利。


▲平台可作為備料區、暫放熟食或小家電擺放使用,搭配下方收納櫃,能整齊收納鍋具、家電,保持空間清爽。

▲考量日常進出的便利性,廚房未再額外設置門片,而是以開放式出入口銜接餐廳與走道,也避免門片開闔佔用過多空間。
臥室設計
主臥延續全室一致的淺色調,搭配木質元素,牆面與櫃體線條也減少多餘裝飾,維持俐落視覺,形塑安定、放鬆的休憩氛圍,床尾規劃大面衣櫃,並依屋主生活習慣採用開放式設計,讓常穿衣物一眼可見,內部則以吊掛區搭配抽屜與層板,便於分類、收納與拿取。

▲床頭牆以半高平台形式呈現並結合插座,可隨手放置手機、眼鏡等物品。

▲以格柵造型門片修飾衛浴門,並透過直向線條拉伸比例,弱化門片存在感。


▲牆面設置木質層板,提供展示置物機能。

小孩房兼書房設計
這間臥房整合了閱讀、收納、休憩與展示機能,使用上相當靈活彈性,牆面一側規劃長型書桌,提供充足的書寫與閱讀空間,書桌上方則打造整排開放展示櫃,並依比例分隔成多個收納格,可擺放書籍、收藏品或裝飾物,為牆面增添層次與端景效果。


▲書桌末端延伸出L型平台,搭配臥榻式座位,形成閱讀休憩角落。

▲噴砂黑玻拉門設計能避免一眼看穿室內,強化空間隱私性。
裝修後記
三商美福規劃顧問Linnie分享,屋主長期居住在台中,能親自北上與設計團隊討論的時間相對有限,因此每一次討論都格外珍貴,雙方總是把握時間密集溝通,當次無法討論完的細節,則會透過線上會議持續補充與確認,確保設計方向與需求都能被完整掌握。完工後,屋主對成果感到相當滿意,除了肯定三商美福在整體服務上的專業度,合約內容與付款流程清楚透明,讓人感到安心有保障之外,也特別提到因家中物品數量多,感謝設計師將廚房收納規劃得非常齊全,讓家電、鍋具都有合適的收納位置,並表示全家人都相當期待在新年時正式入住,迎接美好的新生活。
| 系統櫃板材 | |
| 客廳 | ●電視櫃+收納櫃-卡加利橡木/波特蘭牙白水泥粉光 |
| 餐廳 | ●收納櫃-波特蘭牙白-水泥粉光 |
| 廚房 | ●卡加利橡木/波特蘭牙白水泥粉光 |
| 主臥 | ●波特蘭牙白-水泥粉光 |
| 書房 | ●卡加利橡木/波特蘭牙白水泥粉光 |








