想瞭解服務流程
丈量費用多少
想瞭解收費方式、收費節點
裝修預算怎麼抓
設計方案包含家具規劃嗎
該在什麼時候找設計師
設計師會合理控制預算嗎
找設計師前要做什麼準備
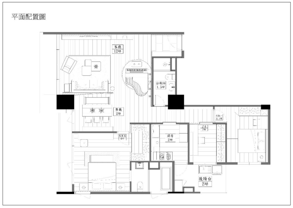
有案例平面圖嗎
設計費怎麼收
想瞭解服務流程
丈量費用多少
想瞭解收費方式、收費節點
裝修預算怎麼抓
設計方案包含家具規劃嗎
該在什麼時候找設計師
設計師會合理控制預算嗎
找設計師前要做什麼準備
有案例平面圖嗎
設計費怎麼收
一、裝潢緣起
我是一名對生活細節有著近乎偏執要求的人,平日在職場上衝鋒陷陣,回到家,最渴望的就是一份能讓人靜下來的秩序感,但以前的舊家,琴譜堆得鋼琴上到處都是,收納櫃雖然多,卻像是厚重的牆壁一樣壓得人喘不過氣。
我想要一個能讓我練琴時心情平靜、看書時視線通透,且不必每天為了找東西而抓狂的家
找上晨陽設計,其實是因為他們有一套SOP的流程,這對我這種焦慮型屋主來說簡直是救贖;記得第一次溝通,我開出了密密麻麻的需求清單,設計師不是直接跟我談坪數,而是看著我的清單問:「妳最希望在哪個角落待最久?」
帶走上百屋主驗證的《裝修最全指南》,簡訊免費發您
二、我們的需求 :
- 風格 :輕奢、奢華質感
- 玄關 : 要有鞋櫃櫃,希望內外空間有界定
- 客廳 : 想要開闊感;有一台鋼琴,平時有練琴的需求,也需要有隔音
- 主臥室 : 輕奢感、化妝桌結合衣櫃,要有更衣室,希望可以兼具通透跟遮蔽的效果
- 次臥室 : 化妝桌結合衣櫃
- 廚房 : 要有電器櫃、烤漆玻璃好清潔
三、格局與動線規劃

工程進場的放樣驗收:
最打動我的,是他們提到的 「1:1 放樣驗收」,我其實對空間尺度沒什麼概念,總擔心插座位置會被家具擋住,或是櫃門打開會卡到動線。 「我們會在施工前,在現場用地貼和噴漆把所有家具、櫃體位置畫出來,讓妳實地走一遍。」設計師這句話,直接安定我的不安全感,後來了解到晨陽設計還有 ISO9001 認證和售後保固,對我這種買東西都要看規格的人來說,這就是一種專業感的背書
在正式動工前,放樣驗收那天真的很有趣,我看著牆面、地面的膠帶,設計師帶我實地感受動線、設計櫃體的長、寬、高,突然發現:「喔!原來電視牆到沙發位置區域,我這中間實際上還有多大的空間;那種確定感,讓後續施工期我幾乎沒怎麼操心,晨陽設計的團隊都會定期回報進度,發照片給我,我甚至不需要天天跑現場。



裝修預算規劃與避坑清單
含Excel模板,限時0元領取
四、一起來看我們裝潢後的美圖吧 !
玄關:告別開門見山的壓迫,用「圓弧天花」創造回家的儀式感
玄關的設計,是我每天最期待的回家的時候,看到地面的藍色幾何花磚,像是一個溫柔的提醒:從這裡開始,外面的紛擾都要放下了
當初在看設計圖的時候,還跟設計師說:「玄關這道轉角的樑,能不能別讓它這麼明顯?」 設計師在特別了解我的需求後,跟我說我們改做大面積的圓弧處理,讓它像雲朵一樣滑過去,視覺上就會順許多
現在每天進家門,視線順著天花板的圓弧弧度滑向客廳,流暢感,真的很舒服會讓心情瞬間放鬆。

▲玄關落塵區:採用藍色幾何圖形花磚,與室內木地板做出明確的異材質交界。

▲ 圓弧天花曲線: 玄關進入客廳轉角處,天花板採用大面積圓弧收邊,消除樑柱壓迫感。
客廳:石紋大理石與「懸空櫃體」,讓大收納也能輕盈呼吸
客廳我們選擇了大面積的灰色石紋大理石作為電視牆,下方懸空的櫃體讓掃地機器人輕鬆穿梭。
沙發後方的那道石材矮牆,既是隔屏,也是餐區與客廳的隱形界線;像是一幅大自然的琥珀畫作,與旁邊的鋼琴專區相呼應,鋼琴區我特地鋪了一張波浪紋地毯,牆上點綴的圓球投射燈,在夜晚練琴時,真的像在表演廳一樣。


▲ 以銀狐大理石搭配白色展示收納櫃,透過懸空底部與圓弧天花設計 ,勾勒出輕盈、簡潔且具延伸感的視覺節奏。

▲ 沙發後方利用富有強烈紋理的石材矮牆作為區域劃分,區隔客廳與餐廳區。

鋼琴專區:波浪地毯與球型燈,把雜亂琴房變身「居家音樂廳」
以前琴譜總是到處亂堆,現在透過白色展示櫃收納整齊;設計師更在鋼琴區特地鋪上波浪紋地毯,並在牆面點綴球型投射燈、垂直線條感,夜晚練琴時,光影在石紋牆面上交錯,像在居家音樂廳的氛圍感直接拉滿,讓練琴變成是一種享受



▲波浪紋地毯,加上燈光氛圍,是不是真的有一種在居家音樂廳的感覺

餐廳區 : 運用琥珀色石材矮牆界定,營造奢華質感,也為空間保有通透感
為了維持視覺的通透,我們不用實牆隔開客餐廳;沙發後方這座富有強烈紋理的石材矮牆,既是客廳的靠背,也是餐廳的隱形界線;上方懸掛的結構感球體吊燈成為視覺中心,讓開放式空間有了明確的功能定位。

▲餐廳上方懸掛球體結構的設計感吊燈,成為開放空間的視覺中心。
主臥空間 : 純白飾板嵌入鏡面金屬條,打造「飯店級」睡眠體驗
主臥室以溫柔的莫蘭迪灰調,金屬飾條搭配側邊的灰色格柵,呈現出細緻的輕奢感;我最愛的更衣室則隱身在長虹玻璃拉門後,內部的 L 型木質感衣櫃結合感應燈帶,讓每天找衣服的過程變得像在精品店挑選一樣優雅 。



▲更衣室透過L型木質感衣櫃結合抽屜式、吊桿式設計,讓每天的選衣時光變得更加輕鬆。
臥室:莫蘭迪粉色的溫柔擁抱
主臥室,我要求一定要有「徹底的放鬆」。設計師用了莫蘭迪粉紫色調搭配白色格柵,營造出一種優雅的現代古典美。這裡同樣貫徹了「輕盈收納」的原則,書桌與化妝台整合在一起,白色懸空櫃體讓空間看起來更寬廣。
更衣室更是我的心頭好。長虹玻璃拉門後方,是一個有感應燈帶的精品空間。木質的衣櫃格層,讓衣服放上去都像是展示品,找東西再也不用翻箱倒櫃。

▲ 莫蘭迪粉的溫柔基調,搭配垂直格柵飾板,在柔和光影下,交織出新古典的輕奢質感。

五.裝修後的夢想家
現在住進來半年多了,我最深刻的感受是生活變簡單了,以前總覺得收納要多才行,但在晨陽的規劃下,我發現正確的視覺節奏比堆疊櫃體更重要;家裡的每個物品都有它的位置,而且都在我隨手可得的地方。
最窩心的是,前陣子我只是問了一句櫃門微調的問題,客服馬上就安排師傅過來處理;這種售後還有人協助處理的感覺,才讓這份開箱文有了最完美的結尾;如果你也在尋找那個能聽懂妳需求、跟你對頻的設計團隊,我想,晨陽設計會讓你很滿意。








