想瞭解服務流程
丈量費用多少
想瞭解收費方式、收費節點
裝修預算怎麼抓
設計方案包含家具規劃嗎
該在什麼時候找設計師
設計師會合理控制預算嗎
找設計師前要做什麼準備
有案例平面圖嗎
設計費怎麼收
想瞭解服務流程
丈量費用多少
想瞭解收費方式、收費節點
裝修預算怎麼抓
設計方案包含家具規劃嗎
該在什麼時候找設計師
設計師會合理控制預算嗎
找設計師前要做什麼準備
有案例平面圖嗎
設計費怎麼收
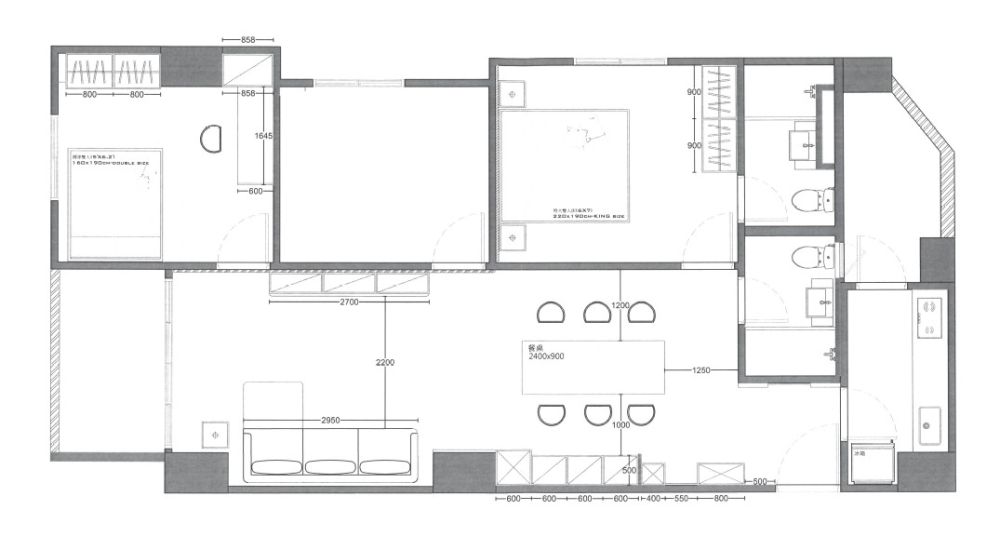
平面規劃&設計重點
依原始格局進行配置,透過公私領域的明確劃分與收納整合,打造動線流暢、機能完善的生活空間,客廳、餐廳採開放式串聯,讓採光、視線得以延伸,放大空間感,也提升日常的互動性,私領域則集中於另一側,規劃為主臥、次臥、衛浴,透過明確的動線區隔,提升居住隱私。
▲設計後平面圖

2025 空間設計包免費領!
收納超省空間,小坪數救星!
VR720°全景預覽
三商美福提供的「720°VR全境擬真實境」服務,讓屋主能在設計階段即透過直覺且具體的空間畫面,提前感受整體比例、動線與材質搭配,雙方能更精準針對細節進行討論與調整,有效降低對空間想像的認知落差,不僅提升溝通效率,也讓設計方向更加明確。

客廳

餐廳

主臥

次臥
玄關設計
考量玄關空間深度有限,設計上捨棄厚重量體,改以石紋大板磚搭配間接照明作為視覺主軸,利用細膩自然的紋理延伸空間感,視線自然聚焦於端景牆面,予人沉穩、大器的入門印象。而玄關鞋櫃除了提供收納機能,也有隱藏電箱的作用,櫃體內部搭配活動層板,可依不同鞋款高度彈性調整,提升使用的靈活度。

▲以石紋大板磚取代天然石材,不僅保有自然紋理,大面積鋪設也能減少拼接縫隙,整體視覺更完整,還便於清潔維護。



▲懸浮式檯面可作為藝術品或擺飾的展示平台,搭配間接光源,柔化石紋冷冽感,增添空間層次與氛圍。

完整裝修工具包(清單+話術+模板)已為你準備好!
客廳設計
為化解原始電視牆面較短、兩側緊鄰門片的限制,透過隱藏門設計將門片融入牆面,維持俐落視覺效果,也避免零碎切割造成壓迫感,再搭配格柵設計,向兩側展開,透過連續的垂直線條拉伸牆面寬度,讓電視牆更顯大器。沙發背牆則以簡約立面和垂直分割呈現,結合間接照明,柔和光源自側邊漫射而出,提升牆面層次,也形塑溫潤氛圍。

▲電視牆以大板磚打造,細膩石紋為空間注入沉穩質感,電視櫃則採懸空設計,整體視覺更輕盈。






餐廳設計
餐邊櫃上方鋁框黑玻門片設計,透過半透視材質弱化量體感,讓器皿與收藏成為空間的一部分,而中段的開放展示平台,以柔和光源烘托石紋背板質感,打造出視覺亮點,下方封閉櫃則提供實用收納機能,讓空間維持整齊清爽。


▲選用陶板餐桌,細膩紋理呼應整體石紋元素,並具備耐磨、耐刮且易清潔的特性,搭配金屬桌腳支撐,在沉穩之中注入輕奢質感。
主臥設計
床頭牆以簡約造型床頭板作為主視覺,搭配線燈設計,既提供夜間閱讀照明,也營造出溫潤放鬆的休憩氛圍,收納機能則整合於床尾牆面,規劃頂天立地衣櫃,提升收納容量,櫃體門片採無把手設計,視覺上更輕盈俐落。



▲將原本深色的房門與主衛浴門,重新烤漆成白色,讓門片自然融入牆面,減少視覺上的突兀感,同時也呼應整體淺色基調,讓空間顯得更加明亮。

次臥設計
次臥原始格局中因柱體位置形成牆面凹凸,便順勢將柱體轉化為書櫃與書桌的一部分,透過櫃體整合讓突出的結構自然融入立面之中,打造出完整、實用的閱讀工作區。此外,因天花板上有大樑,透過弧形線條柔化樑體銳利感,搭配線性照明設計,增添空間的層次與現代感。

▲打造頂天衣櫃提升收納容量,櫃體門片採無把手設計,讓視覺更純粹。



裝修後記
裝修前,屋主和太太蒐集了許多喜愛的空間圖片,並與設計師討論生活習慣與風格方向,逐步釐清理想居家的樣貌,雙方也建立起良好的溝通與信任基礎,最終也讓原先想像的設計細節得以實現,完工入住後,屋主夫妻倆對整體成果都感到相當滿意。
客廳 | ●A202(淺灰)/ M358(泥灰岩)/ J987(希林核桃木) |
主臥 | ●A322(灰織沙)/ A394(布紋灰) |
次臥 | ●T180(白顆) |








