想瞭解服務流程
丈量費用多少
想瞭解收費方式、收費節點
裝修預算怎麼抓
設計方案包含家具規劃嗎
該在什麼時候找設計師
設計師會合理控制預算嗎
找設計師前要做什麼準備
有案例平面圖嗎
設計費怎麼收
想瞭解服務流程
丈量費用多少
想瞭解收費方式、收費節點
裝修預算怎麼抓
設計方案包含家具規劃嗎
該在什麼時候找設計師
設計師會合理控制預算嗎
找設計師前要做什麼準備
有案例平面圖嗎
設計費怎麼收
基礎資訊
地區:桃園市中壢區
格局:3房2廳2衛
坪數:16.5坪
屋況:新成屋
風格:韓系奶油風
設計公司&施工團隊:時工分設計

完整裝修工具包(清單+話術+模板)已為你準備好!
屋主導語
現在的家,滿足我們對理想生活的想像。從一開始與設計公司諮詢,到完工入住的每一刻,我和太太對這個家的感受都非常滿意。它不只是一個居住的空間,而是充滿幸福感和安全感,對我們而言無可取代。
裝修緣起
我們原本的房子是投資用途,加上對建商的品質不太放心,所以一直有考慮換房。剛好新房就在舊房隔壁,去看過後覺得很不錯。太太喜歡看飛機,而新房的窗外就能看到飛機,所以她非常喜歡。
買第一間房子時,我們還是新手屋主,對裝修很多細節都不熟悉,也詢問過其他設計公司。最終選擇了時工分設計,因為設計師很用心聆聽我們的需求,幫我們確定風格與色系,合作過程非常順暢。因此第二間房子自然還是選擇他們。
帶走上百屋主驗證的《裝修最全指南》,簡訊免費發您
風格決定
第一間房子,我們希望營造回家如同入住飯店的生活氛圍;加上太太偏好個性化的設計,所以空間採用了深色系的現代摩登風格。

後來購入第二間房子,孩子出生後,生活樣貌也隨之轉變。家中開始出現大量淺色與明亮的兒童用品,與原有深色調的空間產生落差。於是在新家的規劃上,與設計師反覆討論後,將整體風格改為柔和的韓式奶油風,讓空間更符合現在的生活狀態。

我們同時也參考了時工分設計的咖啡廳案例,並實際走訪體驗,我和太太都很喜歡它營造出來的氛圍。所以也將家中的餐廳塑造成帶有韓式咖啡廳感的生活空間。從桌椅的挑選到整體配置,都經過細心規劃,讓我們能在家中自在享受悠閒時光。

需求列表
居住人數 : 夫妻 2 人,小孩 1 人 。
需求:
1.保留三房格局:主臥、書房、兒童房
2.太太衣物較多,需增加衣物收納空間
3.建商原有電器櫃不足,需重新設計
4.增加育兒用品收納,降低視覺存在感
5.兒童房規劃系統櫃,可彈性調整,配合孩子成長使用
因新房沒有更衣間,且考量太太衣物較多,希望規劃足夠的收納空間。
建商原本僅配了一座電器櫃,使用上明顯不足,因此請設計師重新調整設計,使收納更貼近實際需求。孩子出生後,奶瓶機、尿布台等育兒用品占據不少空間,我們希望能方便使用,又不過度占據視覺空間。兒童房以系統櫃規畫收納,未來孩子長大後,也能靈活拆除或調整,讓空間隨生活進化而延展。
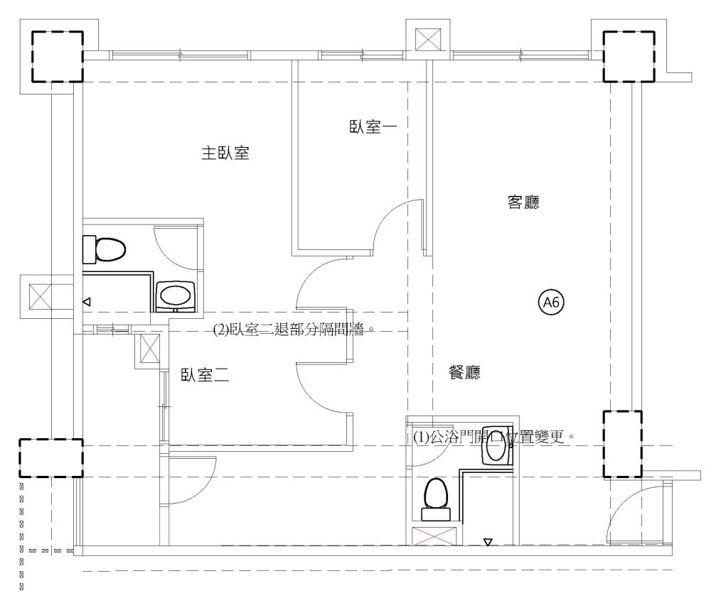
原始格局

平面配置

裝修過程
設計師在前期就先協助我們釐清實際需求,討論後先以客變調整房屋格局,並採大面積的系統櫃來整合收納,同時也作為書房與主臥之間的區隔。實際入住後,這樣的安排滿符合我們的生活習慣,太太使用主臥床尾的大衣櫃,我的衣物與雜物則集中在書房,各自有獨立的使用空間,也不會互相干擾。

電器櫃在重新設計的同時,也多了一個小平台,平常可以用來整理小朋友的物品或換尿布,不僅方便,也不會占掉額外空間。整體收納規劃兼顧了功能性與視覺上的整潔感。

在設計過程中,時工分幫我們很細心地掌控預算。有時候我們想加入的元素比較多,容易超出原本規劃,但設計師總能提出替代方案,在不大幅增加花費的前提下,盡量滿足我們的需求。像展示櫃的弧形造型,因木作成本較高,建議改以系統櫃設計,不僅保留美觀,也讓預算更合理;玄關展示櫃也是,希望保有設計感但又不超過預算,最終改為貼石皮板,同樣達到理想效果。


工程進度的掌握也讓我們非常安心。當時因與現任屋主約定了交屋時間,所以稍微有點時間壓力,但設計團隊堅守工程交付時間且準時交付,讓我們非常安心。
在施工期間,我們曾前往現場查看,保護措施細緻周全,相較鄰居家的施工更為完善,門框不只是簡單貼防撞泡棉,而是以木板封起,每一處細節都展現出專業水準。進入現場時,整體維持乾淨整潔,師傅態度親切,驗收過程順利;設計師亦會定期回報進度,讓我們無需頻繁到場,也能全程安心。
售後服務的細心程度也讓我們印象深刻。住舊家的時候,完工保固一年期滿前就會貼心的協助乳膠漆修補;第二年遇到地震造成牆面龜裂,設計公司也主動詢問並協助處理;後來在準備售屋時,還貼心幫我們重新粉刷,連油漆師傅都稱讚時工分的設計與售後服務,讓我們感到十分安心。
施工期間,我和太太曾到現場查看,第一印象就是整體管理相當專業。現場的保護措施做得細緻周全,與鄰居家施工相比更顯完善,例如門框不僅貼上防撞泡棉,而是以木板完整封護,細節上的處理讓人明顯感受到差異。進入室內後,案場維持整潔,師傅態度也相當客氣,驗收過程順利,整體施工品質令人放心。此外,設計師會定期回報工程進度,讓我們不需要頻繁到現場查看,也能安心掌握施工狀況。
完工入住
入住感受
入住後最明顯的差異,是收納使用上的改變。過去我和太太共用同一個衣櫃,空間與使用上多少會互相影響;搬到新家後,各自規劃了獨立衣櫃,動線與收納方式都更符合彼此習慣,使用起來也更順手。
另外,這次也預先規劃了掃地機器人的收納位置,不使用時可以隱藏起來,讓空間維持整齊俐落。玄關新增的收納櫃同樣提升了日常便利性,外出回家後,安全帽與雨傘都能順手收納,整體動線順暢,也更容易維持整潔。
實際使用
因為之前已有合作經驗,設計師對我們的生活習慣和需求相當熟悉。吊衣桿的位置甚至依照我和太太的身高訂製,使用起來十分順手。燈光方面,我們本身對照明並不熟悉,但設計師會依據我們的生活習慣進行細緻調整。例如太太喜歡側躺看電視,規劃燈具時便特別考量她的視角與位置,避免炫光,實際使用後,照明效果既舒適又貼合生活需求。


床頭的弧形背板是設計師主動提出建議。當時我們只提到希望有背板,沒有特別指定形式,設計師考量到實用與美觀,建議做成弧形,不僅柔化空間線條,也巧妙增加了一個小置物檯,睡前放眼鏡、手機都非常便利,細節上充分展現了他們對生活使用的貼心思考。


另外,主臥的門檔也是設計師特別考量的細節。隨著小朋友逐漸長大,開始會自己開門,但尚未掌握力道,設計師因此規劃了磁吸式門擋,能有效避免開關門時過大力道造成碰撞。這樣的小巧思,雖然不顯眼,卻讓日常使用更安全,也讓我們深刻感受到設計師對生活細節的用心。
總結
搬進新家後,我們才真正感受到每個空間的用途與舒適度。太太最常待在餐廳,假日下午坐在那裡聽音樂、喝咖啡、享用點心,還能順便欣賞飛機掠過天際,悠閒而愜意。我則喜歡待在書房,無論工作或打遊戲,都能專注投入;空間大小剛好,一個人使用也非常自在,而玻璃門的設計既保持安靜,又能隨時觀察小朋友的狀態。


這個新家完全符合我們對理想生活的想像,無論是功能安排還是生活氛圍,都讓我們感到安心而滿足,是一個真正無可取代、充滿幸福感的家。







