隨手换装,輕鬆感受装修效果
想瞭解服務流程
丈量費用多少
想瞭解收費方式、收費節點
裝修預算怎麼抓
設計方案包含家具規劃嗎
該在什麼時候找設計師
設計師會合理控制預算嗎
找設計師前要做什麼準備
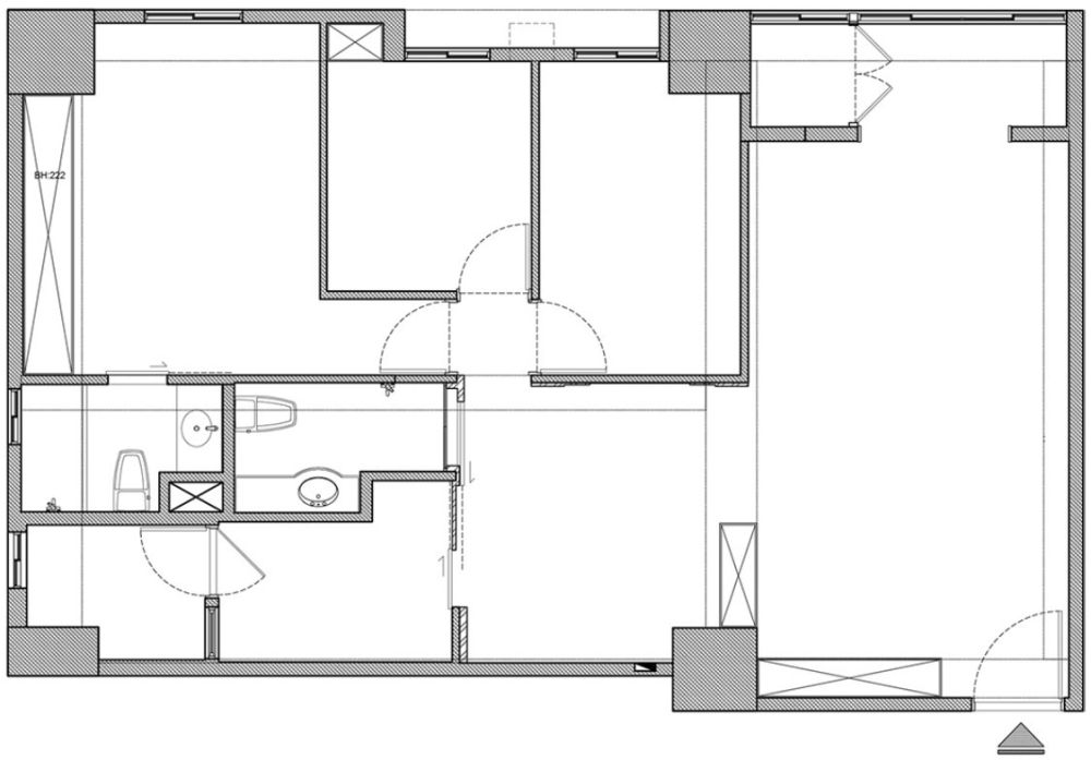
有案例平面圖嗎
設計費怎麼收
想瞭解服務流程
丈量費用多少
想瞭解收費方式、收費節點
裝修預算怎麼抓
設計方案包含家具規劃嗎
該在什麼時候找設計師
設計師會合理控制預算嗎
找設計師前要做什麼準備
有案例平面圖嗎
設計費怎麼收
1.裝潢緣起
這個房子算是我的老家,結婚時曾經歷過一次小幅度的翻修,但隨著小孩出生,格局動線愈來愈不符合我們的需求,就在一年前女兒準備上小學了,我們想給孩子更多生活空間,而這個我從小住到大的老家,也需要來一次全面的修繕調整,於是我們把夢想和需求一次結合,踏上這個老家原地改造之路!
2025最新最全裝修省錢避坑指南免費領!
2.找到設計公司與風格定調
我先在100設計平台上看了很多案例,再與太太各自挑選幾家有共鳴的設計見面討論。多數設計公司用我們舊格局資料提供建議,寓木制作則是非常務實的先幫我們丈量,幾週後再提供想法,讓我們對未來的家有更清晰的想像。
風格上,我一開始就著迷「侘寂風」,喜歡帶點枯木、原始、自然的質地,但理想與現實畢竟有差距,也與太太喜歡的日式風不同。寓木設計師有一句話讓我印象很深:「不太可能只用單一風格去完成整個家。與其刻意做出標準化的侘寂,不如讓材質自然融合」於是為我們調整侘寂的比例,融入日系Japandi元素,打造屬於我們自己的居家風格。
3.我們最想調整的地方
●餐廚區─我們最想改善的就是玄關、餐廚區,原始廚房位在通往後陽台的過道區,不但超小也不好用,最想把廚房移出來,再與玄關前的空間整併,打造像國外家庭般的開放式餐廚區。


▲裝潢前的玄關過大、餐廳區偏小,廚房更塞在照片外的封閉角落裡。
●收納─我們家明明有35坪,但感覺多數面積都留給了過道,衣物、生活用品不夠放,大大小小的露營用具也找不到地方收,唯一的儲藏空間卻在陽台處,東西不好拿不好收更不好看,希望能重新整併,再打造出可以獨立收納的更衣間、儲藏間。

▲改造前,家裡的過道非常寬闊


▲因為收納不足,原本家中雜物都塞在陽台角落,或和室外機擠在一起
4.設計師的調整
設計師說,他最初一進我們家,就覺得異常「空曠」,原來玄關只有展示,沒有收納,看起來空但少了機能。而每個空間都是環環相扣的,為提升更高坪效,設計師拆除玄關與餐廳的隔櫃,整併出餐廚區;三個房間門片拉平,省下大量迴旋面積;兩間浴室微調位置,讓出更多餐廚空間;最終我們家房、浴數量沒變,但賺到了一大間更衣間、一個儲藏間、一個玄關儲物區、一個窗邊休憩區。
Before

After

5.完工美圖
為了實現我們理想中的風格,設計師為我們尋找各種木材、磚料與家具,其中最費工的就是那座中島,因為實木取自於自然,尺寸、紋理、色調全然符合條件的,真的可遇不可求,另外復古窯變磚、藝術塗料、格柵等也是細節滿滿,現在就開箱帶看~
玄關
融入了侘寂風與Japandi的日系元素,沉穩的木質堆疊下,一進門就能紓解壓力,你如果進來我家,會發現家裡有很多弧形元素,那是因為老房子天花特別低矮,設計師用弧線拉高視覺,並修飾尖銳夾角,消除所有壓迫感!

大門左手邊兩道木格柵是淺型展示櫃,陳列我們的收藏,內部則是一個儲藏室,設計師將落塵區地坪延伸到這,方便我們一進門就能把哩哩叩叩的露營器具、推車、行李箱等立即收納。


客廳
很喜歡客廳連接的臨窗區域,設計師把原本方正的開口改為「洞穴感」的弧形輪廓,柔化了原有的銳利線條。進門就能感受包覆又安定的氛圍。電視牆則以石材與木紋做搭配,保留材質本身的紋理與色差,不刻意修飾,讓時間感與質地自然流露。沙發背牆透過礦物塗料呈現帶有手感的粗糙肌理,沒有過多裝飾,卻能在光線變化下顯現細微層次,也更貼近侘寂所追求的「不完美之美」。




▲對了~這個木質百葉簾後面,其實是一個迷你收納區
餐廚區&中島
餐廚區是我們這次裝潢的重點空間,規劃上特別希望它既有機能,也能呈現我們想要的日式侘寂,因此中島結合兩種不同材質做非對稱設計,白色檯面延伸出圓潤的曲線,自然銜接原木餐桌板;局部再以暖色調的復古窯變磚包覆,帶出溫度,讓整體不會過於冷靜單調。透過斜角與弧形收邊的處理,讓餐桌周圍的動線更流暢。



主臥與更衣室
原始的主臥房則是另一個壓迫感爆棚的地方!除了既有結構樑特別巨大外,我們還要在這安裝全熱交換與吊隱式空調,因此天花板內的走線都需要仔細精算過,既不能感覺太低矮,也不能減少採光,設計師選擇用簡化線條搭配留白,將設備隱於結構之中。牆面則特別選用大地色系的藝術塗料,在光線下呈現細膩層次,也讓整體氛圍更沉靜柔和。

床頭處則以木質立面結合弧形收邊設計,搭配隱藏燈帶,打造出溫潤又帶有包覆感的休憩角落。少了銳利的轉角,多了一點柔和的過渡,躺在床上時會有一種被安穩包覆的安心感。

更衣室
床尾連接更衣室的牆面,刻意選擇在上方鑲嵌透明玻璃,採光處配合玻璃磚鋪陳,提升主臥與更衣室的進光量,輕盈的挑空效果也能卸除天花壓迫感,而進入更衣室的一側,則巧妙運用原木與麻繩構築出一處汙衣掛置區,以質樸觸感呼應全室的大地色調。




衛浴
前面提到我們重新調整了主、客浴的位置配置,讓整體動線更加順暢,日常使用也更直覺。兩間浴室風格上則延續整體侘寂語彙,主浴以溫潤的大地色為基底,洗手台上方的圓鏡柔化視覺線條,客浴則著重在清爽與實用性,外部壁燈照明也嵌入了小小巧思。



6.裝潢心得
目前我們已入住半年,回頭看這段裝潢歷程,很慶幸當初選擇寓木設計團隊,讓我們能一步步把腦海中的理想生活具體實現出來,我太太特別喜歡家中弧形的設計細節,像是帶有洞穴感的圓潤造型、一路延伸的天花曲線等,讓家裡多了很不一樣的溫度與表情。

▲這個弧形洞口為我們家營造出特別不一樣的氛圍
我自己最喜歡的當然就是那座中島餐桌,當初不遠千里和設計師一起看材質、挑木頭,現在每天看著家人圍坐用餐,或是朋友來訪時一起聊天分享,那種凝聚在一起的感覺,一切的付出都很值得。

▲兩種材質拼接而成的餐桌中島是我最喜歡的設計,怎麼看都美。
實際入住後的我們,每天都能感受到手工與實木帶來的質感,空間越住越有味道。當然,如果要說小小的遺憾,大概就是當初預算如果再多一些,或許會希望把更多系統櫃改為客製化處理,整體一致性會更完整。







