想瞭解服務流程
丈量費用多少
想瞭解收費方式、收費節點
裝修預算怎麼抓
設計方案包含家具規劃嗎
該在什麼時候找設計師
設計師會合理控制預算嗎
找設計師前要做什麼準備
有案例平面圖嗎
設計費怎麼收
想瞭解服務流程
丈量費用多少
想瞭解收費方式、收費節點
裝修預算怎麼抓
設計方案包含家具規劃嗎
該在什麼時候找設計師
設計師會合理控制預算嗎
找設計師前要做什麼準備
有案例平面圖嗎
設計費怎麼收
裝潢緣起
我是一個科技工程師,工作的關係,過去曾在外租屋,後來搬回來和爸媽一起住,想強迫儲蓄,也想給爸媽、自己更好的生活品質,決定直球面對這件人生大事─「買房」。
由於預算有限,加上單身的我在居住上的需求並不複雜,很快決定買下這間12坪(實坪)的新成屋,開始了裝潢之路。
▼裝潢前新成屋概況



裝修全流程攻略免費拿!
小白避坑秒上手!
找設計師的過程
雖然第一次買房,不過參與裝潢倒是第二次,之前租的房子是間毛胚屋,當時就找歐德設計師裝潢規畫,過程十分順利,我自己對工程一竅不通,平常又忙著工作,能找到信賴的團隊包辦真的非常省事!
時隔六年,這次雖然有找幾間設計公司談,但還是覺得和當年接洽的歐德設計師最有默契,她也最懂我的想法,歐德品牌形象好,交給他們也不擔心遇到裝潢蟑螂,最終還是把自己的房子託付給歐德團隊。
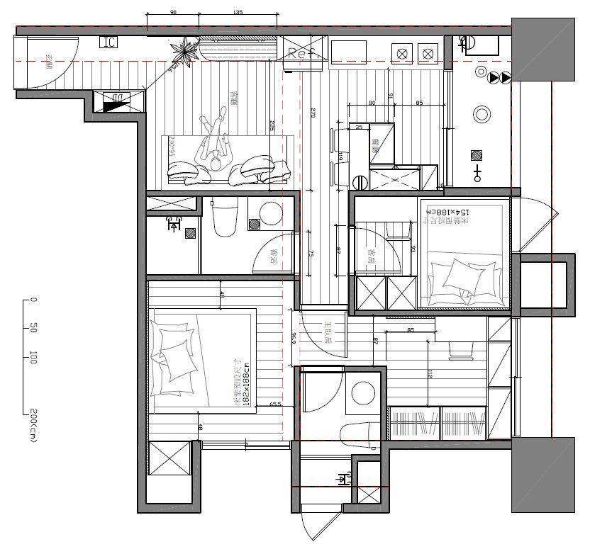
裝潢需求
原本建商規劃的是三房一廳兩衛格局,但主要居住者只有我,不需要隔出這麼多房,因此和設計師討論後將兩房合併,我的主臥也因此多了更衣室。
為了放大空間感和機能,整合客餐廚、打造開放式格局,其實單身宅「一人飽、全家飽」,我本來就沒有想要餐桌占空間,設計師幫我設計小型中島吧檯,兼顧餐桌、工作桌,機能剛剛好。另外依我的生活需要,玄關落塵區、樂高展示櫃、酒櫃等,設計團隊也一一完成。
▼Before裝潢前平面配置

▼After裝潢後格局圖

2025最新最全裝修省錢避坑指南免費領!
完工美圖帶看
小宅最怕空間太複雜、隨時有塞爆的壓迫感,因此選擇低彩度灰階鋪陳主視覺,搭配木質地坪,讓空間沉穩耐看。收納機能則整合於牆面與量體之中,降低視覺干擾,更有放大效果。
玄關
根據我自己的居住經驗,玄關處要有明確的落塵區,進門才有充裕的換鞋、收納空間,因此選擇石紋六角磚界定出落塵區的範圍,同時在銜接電視牆處作了洞洞板,方便順手吊掛小東西。

客廳
在客廳的設定上,一開始就希望「乾淨、放鬆、不壓迫」,所以刻意簡化線條、拉伸視覺高度,使空間敞而清爽。電視主牆延伸到側邊做整合式收納與展示層板,把原本零散的小物件集中收整,也讓視覺更俐落。沙發選擇低背、淺色系的款式,讓視線可以一路延伸到餐廚區,整體動線也變得更流暢。


餐廚
一字型廚房是建商原本的配置,設計師幫我搭配中島吧檯+吊櫃的組合,除了主要烹調區,還能延伸出備料、簡單用餐甚至工作的功能。吊櫃下方加了間接燈光,晚上使用時光線很柔和,也提升了整體的質感。


主臥
主臥是兩間房合併而成,中間還有一套衛浴,調整原本門片位置,將另一個房間改為走入式的獨立更衣間,整合出完整的私領域,讓生活動線更有層次。床邊規劃了一整面的展示收納櫃,結合玻璃門片與內嵌燈光,放置我自己的樂高收藏。衛浴則做成隱藏式門片,關起來時整面牆看起來俐落一致,不會有過多切割感。



更衣室
房間另一側安排大面積衣櫃,另一側則結合梳妝桌與抽屜收納,讓日常更衣、整理、出門前準備都能在同一空間完成。衣櫃門片採用局部鏡面設計,不僅方便穿搭檢視,也在視覺上放大了空間感。


次臥
次臥一開始就沒有設定成單一用途,而是以「多功能」為主要方向,可以隨著生活需求自由轉換,整合臥榻、書桌與收納櫃,平常可以當作工作或閱讀的地方,有朋友來過夜時,也能直接變成客房使用。臥榻下方也做了收納,把不常用的物品集中放置,讓整體空間維持整齊。


裝潢後記
不論是六年前房東毛胚屋裝潢,還是這次的自家裝潢,兩次經驗我都覺得很有趣,不同時期的自己,也有不同的想法啊~
坦白說我們有親戚是室內設計師,當時連我爸都很納悶為何不找自己人,而要找歐德,但我覺得沒有人情壓力,才更能直接溝通,不用擔心過程中不好意思修改或調整,反而更容易做出真正適合自己的決定。
另外,歐德從設計、丈量到施工一條龍的作業讓我省事安心,不必擔心會遇到裝潢蟑螂或溝通斷層的問題,對於像我這種沒有太多時間盯工的人來說,真的差很多!唯一要說的遺憾就是荷包不夠深,本來想換掉建商附的廚具,改成T字型的抽油煙機,但最後還是得在預算裡做取捨,不過也因為這樣,反而讓我更清楚自己下一次想要的是什麼,就當作是為未來留下一點期待吧。








