Before:
「運用天井樓梯設計令光線和綠意透進來,讓室內與室外更貼近沒有界限,宛如生活在大自然之中。」何侯設計何以立設計師說道。
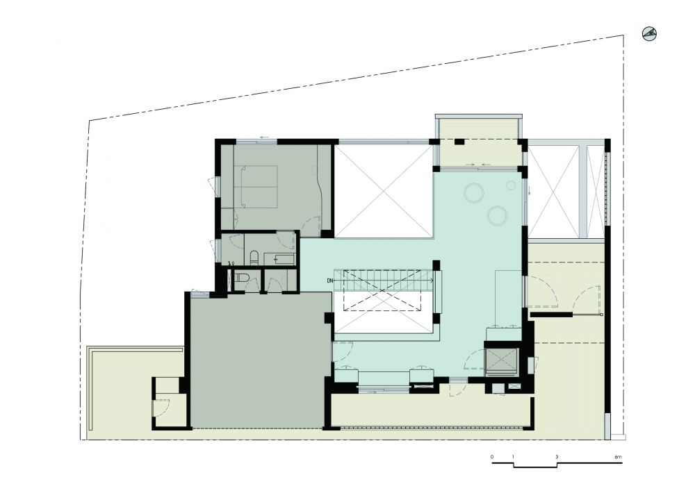
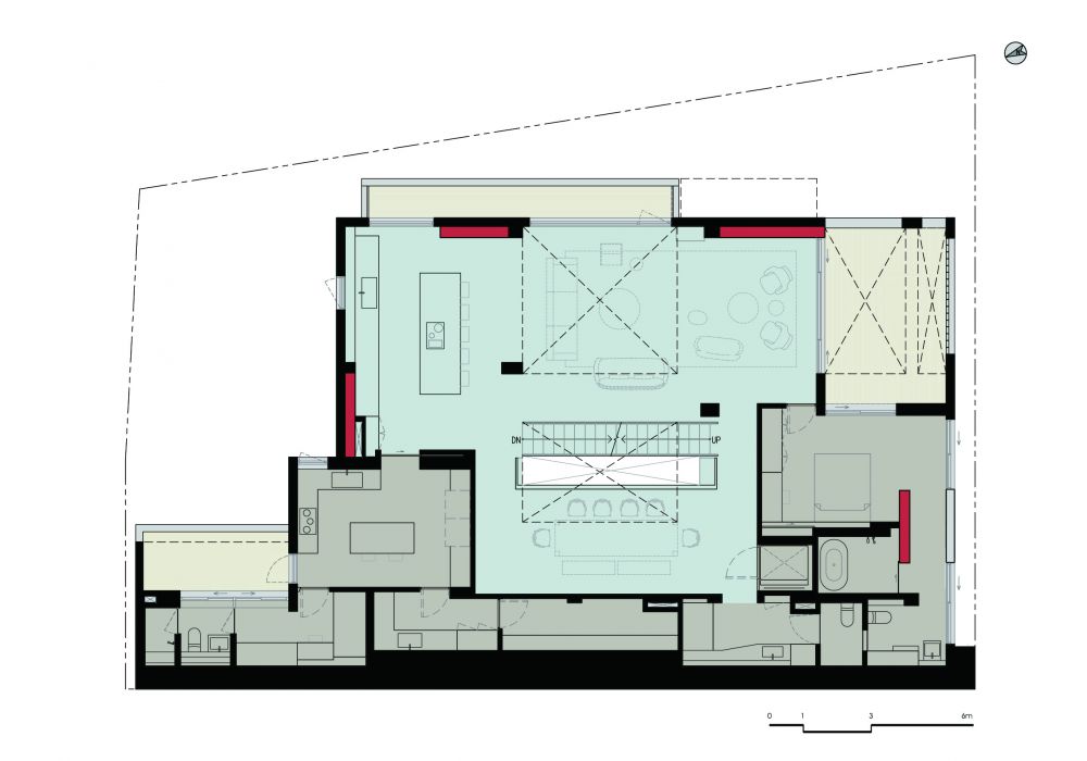
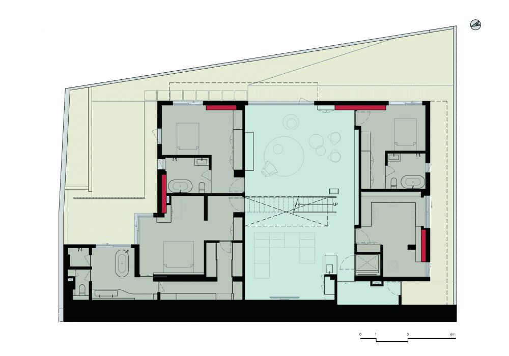
這間位於陽明山山麓,傍山而建的三層樓老屋,由於依著山形,入口位於頂層,一進入空間即可看到另一側開闊無阻的山谷風景,設計師將這層設計為公共接待區,設有藝廊過道、客房及車庫。並以樓層做場域界定,樓梯越往下空間越私密。地下一樓為起居室、餐廳、廚房,地下二樓則為私領域,設有小孩遊戲室、臥室與戶外花園。
因為原本房屋很深加上窗戶都用鐵捲門遮蔽,導致光線與綠意被鎖在門外,設計師將房屋中間的電梯改成樓梯形成天井,令屋頂側天窗的光線帶到B2層,也將室內熱空氣如煙囪效應向上帶出,形成好的對流循環,即使大開窗也不顯悶熱,更因此與戶外花園連結山景,雖然因為天井、花園等讓室內的坪數少了將近3、40坪,但實際上卻讓生活沒有邊際,宛如住在遼望無際的大自然之中。

2025 空間設計包免費領!
收納超省空間,小坪數救星!
業主需求:
1. 讓小孩生活在戶外
2. 可以有很多放畫作的空間



玄關
依山而建的三層透天,臨馬路的入口玄關位於頂層,設計師將這層設計為公共接待區,其藝術廊道滿足屋主對於家中能展演許多畫作的想像,其擺放位置更都是量身打造。



2025最新最全裝修省錢避坑指南免費領!
起居空間
空間隨著樓梯越往下越私密,地下一樓為起居室、餐廳、廚房,開放式無隔間與大量的留白的設計令空間更顯寬闊明亮。



樓梯設計
房屋中間的電梯改成樓梯形成穿透的天井,令屋頂側天窗的光線帶到B2層,也將室內熱空氣如煙囪效應向上帶出,形成好的對流循環,也帶來良好採光。


細節
因為原本房屋很深加上窗戶都用鐵捲門遮蔽,導致滿山綠意被鎖在門外,設計師運用四面大開窗引山景入室內,令生活與大自然無界限。


After
「因為老屋的結構問題很多,在設計過程中十分矛盾是不是該拆除重建,但思考到新式建築法規的限制,還是做大尺度的結構補強,或許重建的可能性更多,但現在卻是當時討論過後的最好選擇。」何侯設計何以立



