業主想要
1. 活潑的辦公氛圍
2. 休閒場域不受拘束
3. 舒適的會議空間

完整裝修工具包(清單+話術+模板)已為你準備好!
Before
「設計與創意都必須是建立在使用機能之上」昕益設計總監沈柏勳說道。屬於創意傳播類型的娛樂公司,想讓員工有一個時時激發靈感的環境,因此希望空間能自由活潑且與眾不同。此空間原為展示中心,設計師保留原有的開放空間,僅以草皮和植栽牆點綴,打破傳統辦公室制式無趣印象,營造出清新脫俗不受拘束之感。
空間色彩以公司品牌的青草綠加上白與灰,定調出自然舒適氛圍。值得一提的是,設計師把傳播這個動詞表象化,以具有運輸特性的「貨櫃」作為會議室,7間會議室以不同顏色區分,並輔以不同星期命名,令人眼睛為之一亮。

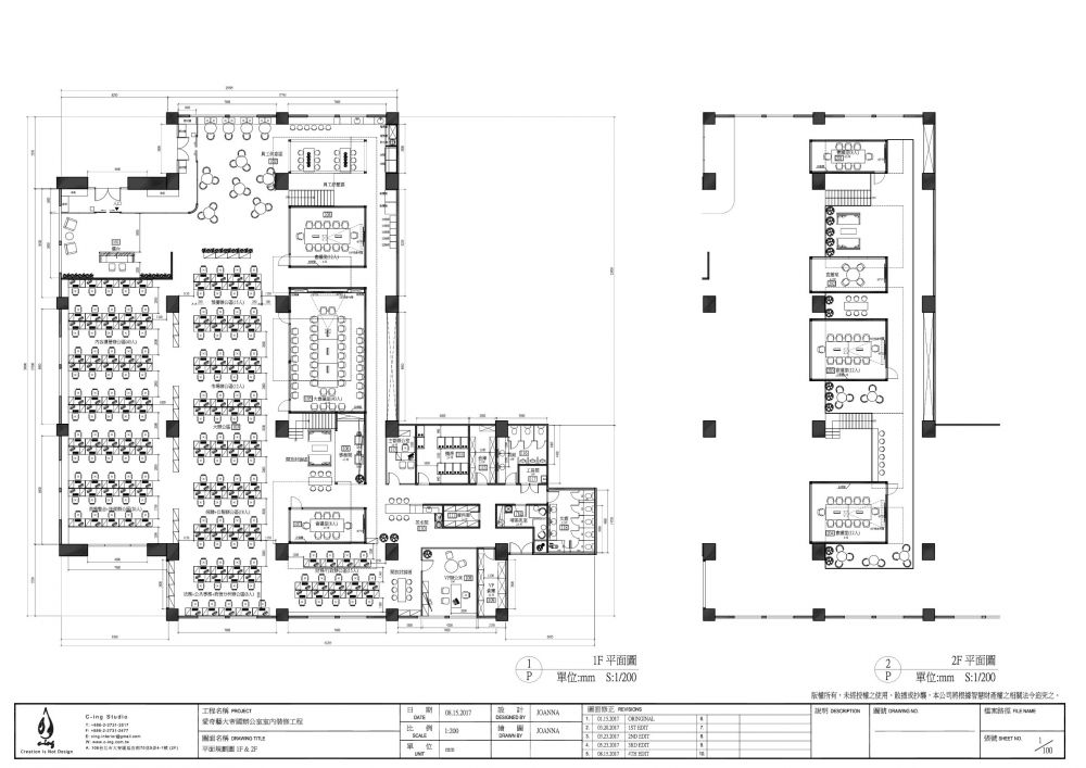
平面規劃上,辦公區集中於平面左半邊,右半下方為主管會議室。會議室則位於中間及垂直動線的二樓區,讓使用動線更簡潔簡單。天花板則以波浪排列方式懸吊著灰、黑色吸音板,不但減少回音,從二樓向下望也形成另一種景致。充滿機能與設計結合的創意,造就了年輕有新意的辦公空間。




辦公區
以公司品牌的青草綠為主視覺,配上灰與白,使色調中和,再配上地板的草皮,讓辦公區呈現自由舒適的氛圍。



2025最新最全裝修省錢避坑指南免費領!
用餐休息區
分為吧檯區及一般休息區。一般休息區散置於空間中的各個角落,不讓員工休息時擠在同個區域。利用不同的餐桌椅配置,使每個用餐區景色都不同,也凸顯了休息區的活潑感。吧台則用沉穩神秘的黑色妝點,以收沉思冷靜之效,特殊造型的燈飾依舊保持空間的創意感。




會議室
貨櫃富有傳遞意義,與歐銻銻娛樂公司的精神有相呼應的意味,因此沈總監以貨櫃屋做為會議室的模型。7間會議室以不同的顏色代表,並利用星期命名,成為空間的一大亮點。裝置大片落地窗的會議室依然注重隱密性,因此每間會議室的背牆都是以吸音板拼接而成,地板夾板中也加入保麗龍,大幅降低聲音外露的可能性。


廁所
利用較耐陰的植物做成植栽牆,讓使用者有彷彿進入森林之感,使廁所都別致精美,植栽牆除了增加景色外還有吸附異味的用處,讓廁所時時保持清香。
After
「如果使用人數在少一點就更能做到自由無拘束且脫離傳統辦公室的感覺」昕益設計 沈柏勳







