小編帶你看房子
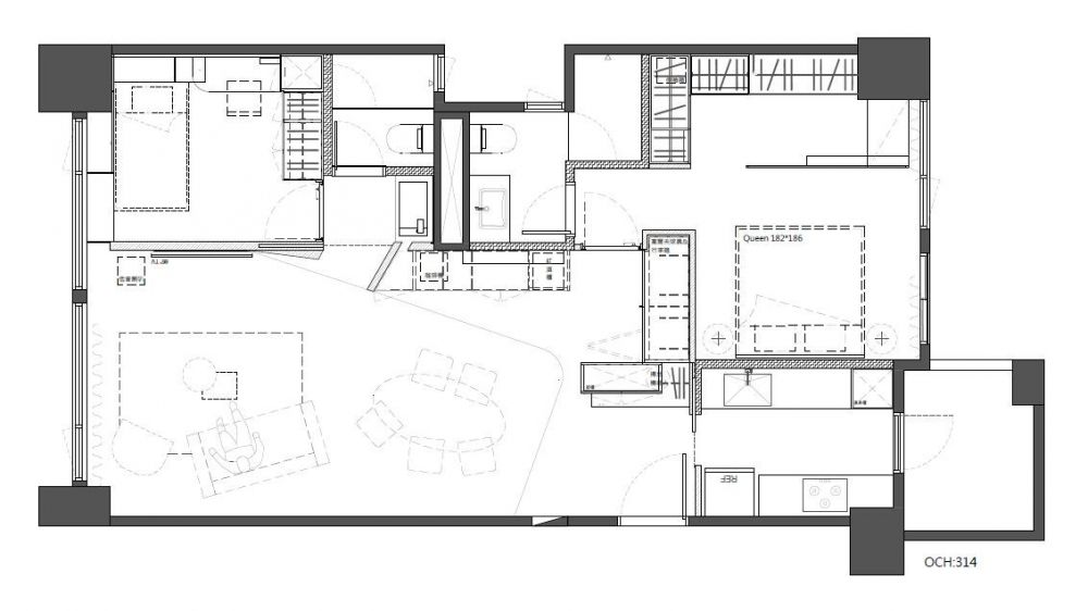
今天小編要帶大家看的是均漢設計的21坪小宅,一般來說像這樣不算大的坪數,我們總會有既定的印象認為應該要盡量保持簡約、淺色,空間看起來才夠寬闊吧?不過看了這個案子後的小編簡直是被顛覆三觀了!不僅使用了豐富的材質,還透過材質的轉換界定出格局、拉出了場域間的空間感,讓人不得不佩服這是非常高端的設計手法!一起來看看有什麼令人驚喜的設計巧思:

帶走上百屋主驗證的《裝修最全指南》,簡訊免費發您
帶看特色1:用異材質做分界,延伸空間感
木作、石紋、水泥特殊塗料、紅磚牆、魚骨拼木地板……一進門就被各種材質吸引住目光的小編,可說是震撼不已啊!不過材料用這麼多難道不會太花、太亂嗎(屋主最常有的疑慮)?請仔細看,設計師透過曲弧線條作了材質收邊、從玄關到吧台區的石紋往上延伸到櫃體,這兩種設計能消除死板的分界線,不但不雜亂還能拉出空間感,讓人根本不會察覺到這是小坪數的家呀~

▲地坪以曲弧線條及材質變化界定出場域,天花板也是同樣的設計表現,讓空間不過於制式,更拉出空間感。


帶看特色2:太Chill!超都會感的小酒館氛圍
為了幫喜歡品酒的屋主圓了一個家裡要有吧台的夢,設計師運用層板及燈帶,創造出小酒館般的現代氛圍,同時又以紅磚牆襯托美酒剛烈的美,且吧台一旁就是餐桌,讓來訪的親朋好友們更能在開放的空間中來去自如、品酒談天,不受到空間限制,簡直太Chill了!有了這樣的設計,誰還想到酒吧人擠人呢?


▲石紋吧台櫃延伸到後方的衛浴浴櫃,使得場域轉換不死板突兀。

▲一打上燈,小酒館氛圍立刻出現!!


完整裝修工具包(清單+話術+模板)已為你準備好!
帶看特色3:自然感硬裝+微奢感家具家飾
屋主當初表示,希望家裡能盡量有自然紋理材質,同時也要有精緻感的細節,其實從設計師選用材質上就能略知一二,像是磚牆、石紋、水泥塗料都屬於天然質樸的材質,而在精緻面上,則多表現在家具上,比方說家具的顏色或者造型,看起來都是非常有細節、有設計感的款式,也在自然風格的材質中跳脫出明顯的層次。

▲充滿奢華感的孔雀綠沙發,在質樸的水泥牆前方看起來超搶眼!

▲餐桌椅款式現代俐落,和魚骨拼木地板搭配出層次感。
其他空間美圖分享
玄關

▲以玄關櫃取代牆作為隔斷,是小坪數能夠有效利用空間的好方法,一旁特地留空可以掛外出常穿的外套,同時讓小宅視覺更穿透。

▲門把造型是一家三口的名字縮寫,看起來好溫馨啊~
主臥室




▲只有五坪大的主臥室,利用木質屏風隔出半開放式的更衣間,比起頂天的更衣室,既不會壓縮到空間大小,還能保留些許隱私性。
女兒房



小編MEMO
這個案子一看就令人印象深刻,小小21坪的家要運用這麼多種材質,其實真的需要很強大的心臟,雖然乍看之下是很大膽前衛的設計風格,但該有的實用機能與精緻細節可是一點也沒少,也令小編不得不佩服設計師讓整個空間能夠處處到位、巧妙又平衡的設計功力!
也想要家裡有超時髦吧台的指數●●●●●●●●●●十分
想看更多關於這個家,你可以參考這支影片:







