風格選到暈?怕裝完不喜歡?30 秒測專屬風格,裝出理想家!
業主想要
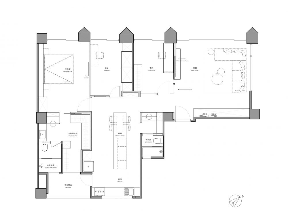
1. 以白色及淺卡其色為空間主調
2. 增加主臥更衣室,並希望加大主臥與主浴空間
Before
「大自然是最棒的軟裝師,我在構思的時候,腦海中浮現曾經見過的大樓石材牆面反射天空、白雲的畫面,於是把窗外白雲、綠蔭投映在電視牆上,讓自然與藝術帶入空間打造恬靜療癒的空間。」禾築設計譚淑靜總監說道。

以雲上的太陽為創意思考,客廳電視牆的白色線板從裝飾性材料成為牆面主角,設計師仔細思考線板的排列比例,凹凸面搭配玻璃,將窗外大片白雲及太陽光照映入屋內,並考慮到屋主注意的隱私問題,大面落地窗施以風琴簾在遮擋外人眼光之中也同時能讓陽光灑落。
廚房延伸白色與卡其色調,在不動格局下運用噴漆改變櫃體顏色,並在軟裝上施以更多著墨,岩石形狀的吊燈以玻璃材質展現輕盈並與牆上的吊飾相呼應,為柔和的空間氛圍添加一抹趣味。而轉入主臥房,新做的床頭櫃櫃體是淺卡其色,延續空間主色調,並善用光線,利用窗外陽光灑入慵懶清閒;而回歸實用面,床頭後方則是大面積的收納,並拆除一排廚房收納櫃加大更衣空間,滿足屋主希望擁有更衣室的需求。


客廳設計
客廳電視牆以白色線板凹凸面搭配玻璃,並善用環境條件將窗外大片白雲及陽光照映其上,打造雲上的太陽意念。而大面落地窗選用風琴簾,可隨意上下調整,滿足居住隱私還能保留窗外景致。



完整裝修工具包(清單+話術+模板)已為你準備好!
廚房設計
廚房延伸空間白色與卡其色調,營造柔和氛圍,岩石形狀的吊燈以玻璃材質展現輕盈並與牆上的吊飾相呼應,為柔和的空間氛圍添加一抹趣味。

主臥設計
主臥床頭以淺卡其色延續空間主調,並善用陽光樹影的灑落讓大自然成為最好的軟裝,而床頭後方則是大面積的收納空間。


書房設計
男主人常用的書房別於空間的柔色調,選用灰色演繹沉穩質感。書桌下方牆面吸收客廳電機櫃部份深度,以減少機櫃凸面。卡其色與灰色搭配出穩定卻放鬆的工作閱讀空間。
After
「本案我們在有限的資源下整合與創新,再以家具及軟裝搭配,賦予空間全新的生命。而如果真要說能重來的話,會吹毛求疵的希望電視櫃能增加長度,讓影音設備有更好的散熱空間。」禾築國際設計 譚淑靜







