美化我家不費力·風格換新零門檻
想瞭解服務流程
丈量費用多少
想瞭解收費方式、收費節點
裝修預算怎麼抓
設計方案包含家具規劃嗎
該在什麼時候找設計師
設計師會合理控制預算嗎
找設計師前要做什麼準備
有案例平面圖嗎
設計費怎麼收
想瞭解服務流程
丈量費用多少
想瞭解收費方式、收費節點
裝修預算怎麼抓
設計方案包含家具規劃嗎
該在什麼時候找設計師
設計師會合理控制預算嗎
找設計師前要做什麼準備
有案例平面圖嗎
設計費怎麼收
租屋多年一直以來都很想要擁有一間屬於自己的家,從找房>買房>找裝潢>入住等等歷經了一年多,終於能在今天來好好分享我的裝潢開箱了!
一、如何找到我的設計師?
從確定房子後就馬不停蹄地找室內設計公司,聽說也看過太多設計裝潢的糾紛,真的很害怕找到很雷的,所以比較了高雄近10間的室內設計師,還是沒找到和自己風格想法都很合的。
後來找到的房子的建案剛好有實品屋可以參觀,參觀後馬上就知道終於找到我心目中想要的夢想屋!立馬請建設公司介紹他們的實品屋設計公司,只能說整個過程都非常愉快!非常滿意!
第一我非常注重設計師的美感,在確定裝潢前一定都會先看他們以往的作品,看完實品屋後,我就上網去瀏覽這間設計公司以往的作品,幾乎8成以上都是我會喜歡的感覺,再來他們的回覆訊息速度跟專業度都非常好!
因為是第一次裝修,很多自己沒有想到的問題他們都會主動提出給我建議,中間也與他們設計總監開會幾次過程也非常滿意,設計總監會細心地仔細說明每個部分,讓我覺得原本好像不懂的東西,在她的解釋下都非常清楚。

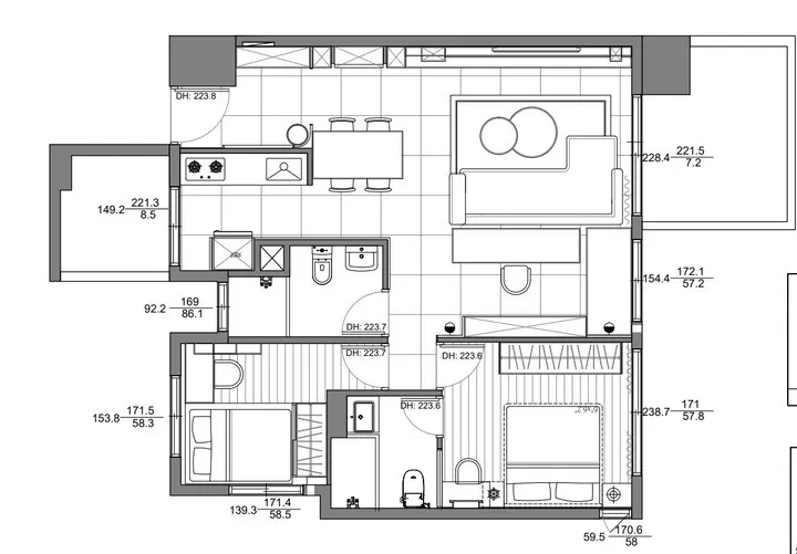
平面配置圖,格局部分只有更改一些

完整裝修工具包(清單+話術+模板)已為你準備好!
二、原始屋況

Before-玄關



Before-客廳、電視牆

Before-餐廳

Before-主臥

Before-小孩房

Before-走道
三、完工美圖


每次回家一進門就非常愉悅啊



玄關進來後的用餐區

燈具也是請設計總監幫我選的,我有嚴重的選擇障礙所以全部交給她來決定,結果出來又讓我不得不再讚嘆一次他們的設計總監,怎麼可以那麼有美感呢~~




客廳那面牆有打掉改成開放型書房,讓整個空間視覺感放大很多。


要來介紹我最喜歡的地方-我的房間!我跟他們設計總監說想要看起來奢華但是不要太華麗,怕住久了會視覺疲勞,還要有大大的衣物收納空間,還特別跟她說我喜歡粉色但不要太少女~畢竟年紀已經不再是小女生了啦。結果~登登!完全就是我心目中的樣子啊!


附上一張剛入住隨手拍的床頭櫃,現在每天都會把家裡整理乾淨保持剛裝潢好的樣子,完全捨不得弄亂啊~



衣櫥採用同色系下半部延伸讓整體有一致性外,空間也不會有視覺上狹窄,還多了收衣物的地方,真的幫我們想到很多。
想當初從買房時就在網路上找建案到裝潢,我的新家也終於塵埃落定啦~分享給大家也希望大家可以找到滿意的設計師(非常私心推薦我的設計公司總監哈哈),直接附上設計公司資訊給你們~太推了不藏私給你們!藝瓦室內設計








