風格選到暈?怕裝完不喜歡?30 秒測專屬風格,裝出理想家!
屋主想要…
1.可以展示蒐藏的櫃體
2.女主人要有足夠的衣帽間
Before:
「融合不同外國風情元素難以定義是哪種風格,因此稱為異國風讓屋主回到家能夠被浪漫包圍著。」爾聲設計設計師Linda說。喜歡旅遊的夫妻被西班牙充滿熱情的國家吸引,加上女主人鍾情藍色,希望能將摩洛哥獨有情調帶入屋中。設計師以西班牙建築設計為出發點,從玄關開始在櫃體上加入許多線板勾勒出浪漫的藝術氣息。


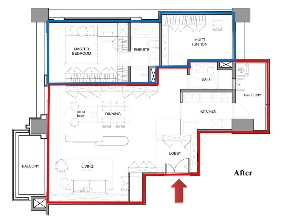
平面圖規劃上,上方圖為原本格局,下方為現在格局。進門處為下方紅色箭頭處,將主臥、餐廚及客廳最常使用空間設置於採光最好面。將原本主臥房門改為朝落地窗面以隱藏拉門取代,為了避免一進面即見房內的情況。廚房牆面也往內縮,多出空間設置泡咖啡區。


玄關


2025最新最全裝修省錢避坑指南免費領!
客廳
沙發背牆設置整面收納櫃以及透明玻璃櫥窗放置書籍,滿足男主人喜歡閱讀的嗜好。中間的半高電視牆呼應沙發的灰色從側面看像是劃分了兩個區域。



中島&餐廳
餐廳是整體空間主視覺,依照女主人喜愛的藍色。不好歸類是哪一種藍色,設計師將它稱之為沁藍帶點古典浪漫味道。藍色櫃中間利用透明玻璃櫥窗展示屋主的各個收藏,中島上方利用金色鍍鈦吊櫃作為紅酒杯架。餐桌下的花磚彷彿是一大片地毯透出神秘感,展示櫃延伸到上方彎曲木皮天花更是溫暖整個空間


主臥
與公領域色彩不同,以簡單灰白為主。床頭背牆則依然帶上華麗風格貼上浮雲壁紙,衣櫃門片上的線板呈現更是延續公領域的法式格調。藉由良好的採光窗戶選用有紋路窗紗,當陽光灑進會自然呈現稻穗倒影。

客房
客房以較簡約風格但牆壁依然使用大面積莫蘭迪色系呈現,除了可收納衣物在大型物品上也可收納於此。







