想瞭解服務流程
丈量費用多少
想瞭解收費方式、收費節點
裝修預算怎麼抓
設計方案包含家具規劃嗎
該在什麼時候找設計師
設計師會合理控制預算嗎
找設計師前要做什麼準備
有案例平面圖嗎
設計費怎麼收
想瞭解服務流程
丈量費用多少
想瞭解收費方式、收費節點
裝修預算怎麼抓
設計方案包含家具規劃嗎
該在什麼時候找設計師
設計師會合理控制預算嗎
找設計師前要做什麼準備
有案例平面圖嗎
設計費怎麼收
其實早在兩三年前,我和太太就陸續在看房子,因為家裡兩個孩子愈來愈大,原本28坪的房子也愈來愈不符合需要,而因緣際會看到這個格局方正、地段也不錯的透天建案,也因此啟動了我人生第2次的裝潢旅程!
<裝潢背景>
│屋況│新成屋
│裝潢坪數│38坪
│裝潢樓層│1~3樓
│裝潢區域│玄關、書房、客廳、主臥、廚房、餐廳
│總坪數│75坪
│總樓層│5樓
裝修全流程攻略免費拿!
小白避坑秒上手!
<找設計師的過程>
裝潢前在Mobile01上看到有位屋主開箱文,不僅設計的很有質感,不論細節還是風格都完全打中我們,私訊詢問後得知是灰色大門設計,也因此成為我們裝潢委託的第一選擇,又因為官網上都有列明清楚的計價方式與流程,因此實際會面、丈量、評估下來和我們的預想並沒有太大的落差,滿順利的和設計團隊一拍即合。
<裝潢需求>
- 1. 足夠的藏書空間
- 2. 可阻隔油煙的廚房
這裡還有件妙事,因為廚房設備和廚具櫃體都是建商配的,我們本來也沒太多意見,不過在設計師提醒下才發現─進口廚具檯面高度偏高,加上人造石材質容易吃色,不好清理,因此廚具、料理檯全換了,我們平時使用廚房的頻率很高,好險這些小細節有注意到。
裝修預算規劃與避坑清單
含Excel模板,限時0元領取
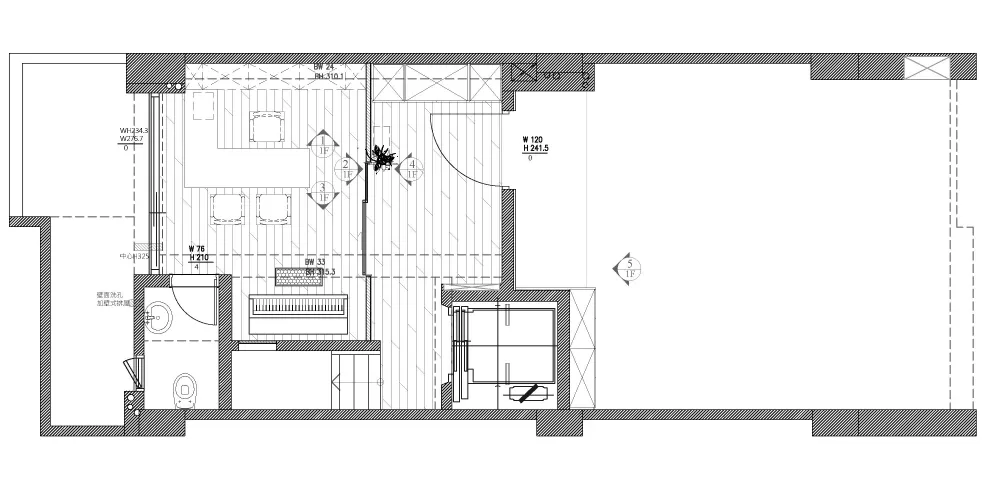
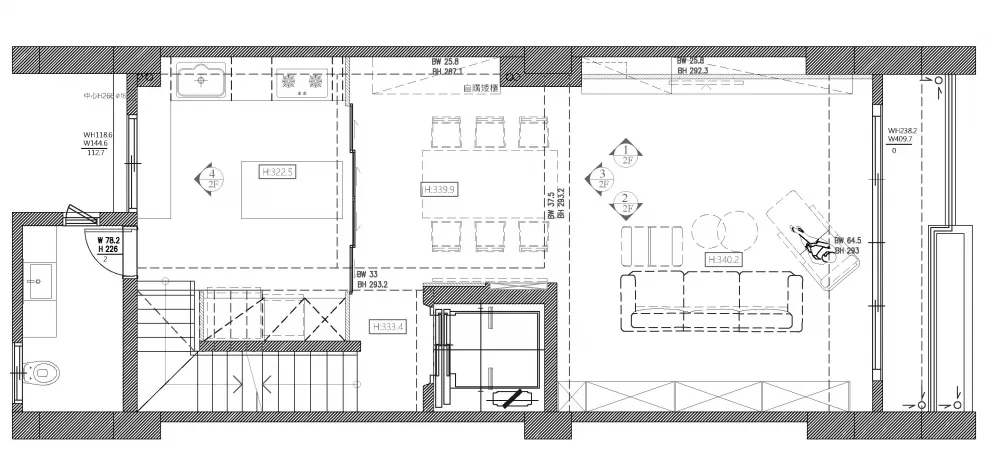
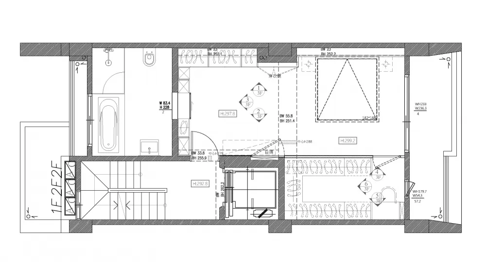
<格局>
我們主要把重心擺在一至三樓的地方,保留了建商在浴廁和四、五樓的原始規劃,孩子還小,等姐弟倆開始有自己的想法和需要,再局部裝潢也還不遲!
一樓玄關&書房

二樓 客、餐、廚

三樓 主臥&更衣室

<秀幾張木作工程期間的照片>



< Before & After >
施工期間剛好遇到我太太生產,灰色大門他們當時是親自把材質、樣板都多打一份樣品送來讓我們確認,不管是烤漆板、五金配件、廚材質等,也都一一看到實體樣式才施做;另外,設計團隊會隨時用手機傳送工程實況,最少每兩天也有一次的進度說明。





<美圖欣賞>
算算日子,我們家的裝潢花了有五個月的時間,花最多時間的就是「等大板」。我們家的廚房檯面、防濺牆、中島檯面,用的都是120*240cm的大板磚(電視牆面則是120*270cm的尺寸),受到疫情影響,大板磚從國外運送到台灣等了好久哇!現在就帶大家看看每個空間的細節!
玄關&書房



客廳


廚房


臥房



<入住心得>
第一次裝潢時我印象很深,當時選了台北的設計公司,他們常配合的工班都在台北,雖然有為我們找台中的工班,但工班和設計就不是太有默契,以致裝潢結果也有些落差。這次裝潢我就比較重視地緣關係,找到設計和工班都是台中在地的灰色大門,從最初溝通到後期執行,效率和態度都好的沒話說,入住後一些小地方(像發現材質有刮痕、想追加一些材料等),設計師也能立即處理,是我覺得揪甘心的地方!
<最滿意的空間>
我們全家人搬進來已經有四個月了,從當初僅28坪平面空間,到現在擁有可以讓孩子跑上跑下消耗體力的獨棟住宅,真是說不出的開心~我最滿意書房的設計,而我太太最喜歡廚房,想到當初在材質、高度上來來回回溝通了好久,如今使用起來真的覺得當初花的時間和金錢都好值得啊!








