Home Data
設計公司:一本設計 EVEN Design
室內坪數:權狀43坪(不含車) ,室內約30坪,陽台約3坪格局:原始建商格局3+1房,經客變為2房施作時間:約2個半月
施作範圍:客廳、主臥、次臥、廚房電器櫃裝潢設計費用:135萬 (不包含各項電器、傢俱、窗簾)

2025最新最全裝修省錢避坑指南免費領!
一、契機
2020上半年疫情第一波衝擊全世界的當下,與交往多年的另一半討論了是否應當尋找購置我們未來成家的第一間房。經過幾番波折在2020.5下訂了預售屋後,開始了長達一年半的客變-設計格局-挑選家俱-交屋-驗屋-成屋-直到入住。在尋找設計師的過程並未花太多時間,參觀好友家時,看了他家的風格以及設計理念之後,便埋下了未來要將自己的家交付於此設計師想法!
自從買房後於網路上看到了許多前輩們分享的好屋,從中學習到非常多的資訊,誠摯感謝每一位分享的前輩以及網友們!
二、格局規劃

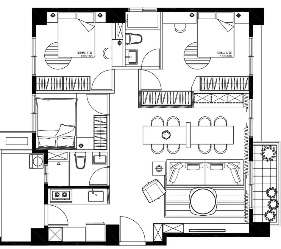
原始建商家配圖
最初被這案子給吸引的就是它方正的格局,以及天然三面的採光,寬闊的客廳;兩人都覺得未來活動最為頻繁的區域會是客廳,所以希望整個區域是可很放鬆、開闊的一個區域,以及主臥室能擁有一間更衣室。


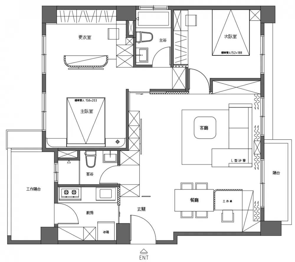
客變後格局圖
剛開始對客廳的想法跟建商給出的家配圖相甚不遠,但覺得餐桌跟廚房的空間被客廳給切割掉,於是設計師給了我們新想法,出了一張令我們都非常滿意的圖面!

完整裝修工具包(清單+話術+模板)已為你準備好!
三、完工美圖



旋轉鞋架藏身於櫃體中,廚房空間的拉門也是使用小冰柱玻璃搭配鐵件。



臥房以及客用衛浴都做隱藏門的設計,不會被門切割空間,客廳看來更為開闊~


天花板則是搭配上設計師推薦的磁吸燈做為空間的展延。


以圓弧形天花板作為主臥室休憩區的界定。



木作電視櫃搭配系統櫃打造女主人優雅舒適的更衣場域。

設計師貼心的與女主人討論、確認過桌椅需求,以及化妝備品數量。以系統櫃搭配大理石紋路的門片呈現了梳妝一隅。


女主人堅持的百葉窗,為主臥室大大的增添效果!電視牆搭配長虹玻璃的端景,再加上自然,灑入的光印,令人心曠神怡~

因目前家庭成員為兩位,次臥以客人來訪加上未來小孩房作為設計基準。跳色的牆面搭配色彩較為繽紛的風琴簾~

原木色搭配淺色系木紋系統櫃增添收納,書桌以及書架兼具展示功能。
四、後記
在裝潢的過程中,跟設計師以及另一半的溝通不曾斷過,過程雖然繁瑣冗長,但在最後看見房子完工時覺得這一切都是值得的。設計師年紀與我們相仿,能夠處處為我們兩人設想,給出許多精準的建議。很多細節是我們都沒想到的,他也都能夠為我們把關,突發狀況設計師也能設身處地的為我們解決問題。真的很開心所託之人能交付出令我們都很滿意的家!
當然中間也會有需要在預算和理想掙扎的時刻,轉個念房子是棲身之所,最後還是盡力以理想的型態來完成這個家。謝謝各位的觀看,分享給每一位正在成家路上的朋友們!
家具、油漆清單
沙發:新家園沙發 款式618餐桌、茶几:頤朵家具客廳塗料:星達塗料-詳情洽設計師主臥牆面油漆:班傑明.摩爾-詳情洽設計師



