一、前言
為工作奮力打拼多年,一直很想好好犒賞自己,當然還有太座大人~畢竟從我原本只是一個每個月等領薪水的上班族,到終於自行創業、現在有點小小成就,這長達15年的時間,多虧了另一半的相挺和包容。
雖然我現在是屬於SOHO的工作型態,但自己當老闆其實壓力山大啊!所以當初就夢想要有間度假休閒感的新家,而且必須是有山有水的景觀宅,最後才會選定集結了山、河、海景的紅樹林這一帶。

完整裝修工具包(清單+話術+模板)已為你準備好!
二、格局Before&After
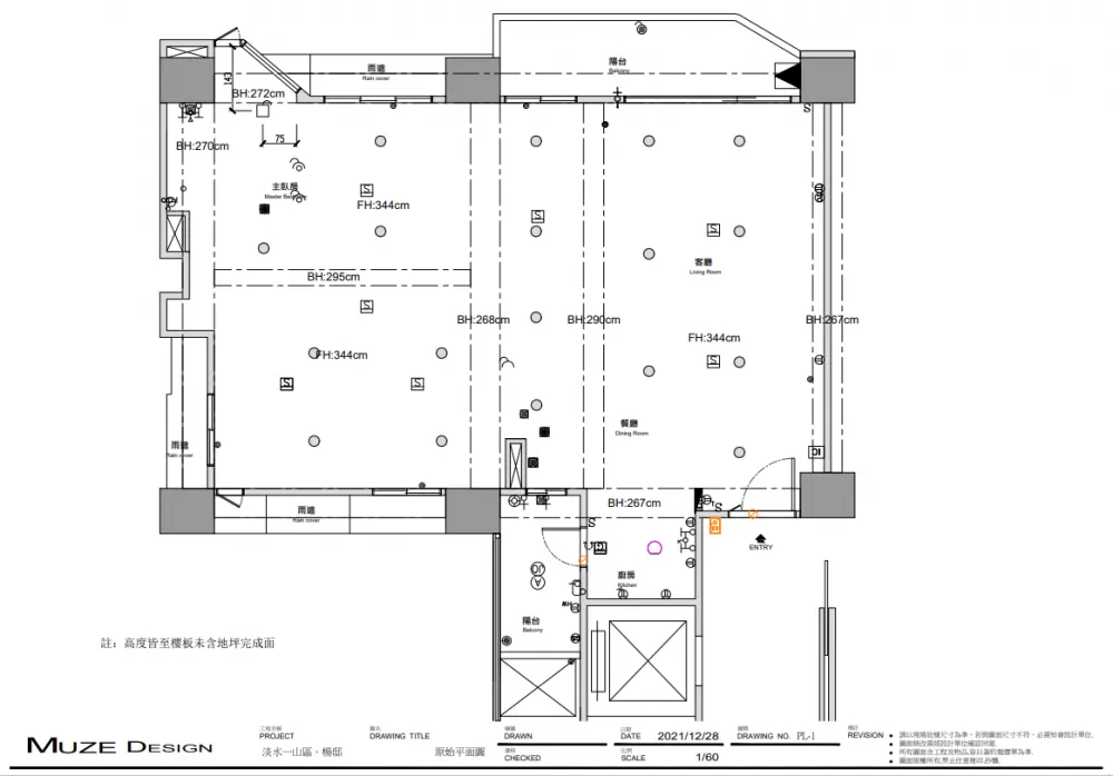
房子本來的格局很簡單,是非常原始的毛胚屋,整體來說很方正,也有很多面開窗,採光相當不錯。因為我和老婆都沒有孕育下一代的計劃,只需要一間臥室,但裡頭絕對要包含一個可以讓太座收納滿滿衣物的大更衣室,和可以泡澡的主浴。另外也要規劃一間能安靜工作的獨立書房,其他就希望盡可能保留公領域的開闊度。

改造前平面圖

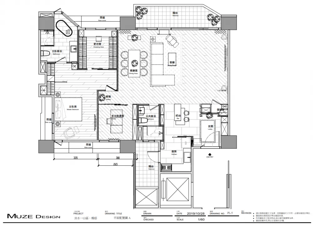
改造後平面圖
三、施工前屋況



原始屋況就是只有天、地、壁,尚未貼磁磚、鋪地板,沒有衛浴和廚具,甚至連隔間牆都沒有的毛胚屋。但是這樣更好,可以不受限制、完全按照自己的需求規劃。
裝修預算規劃與避坑清單
含Excel模板,限時0元領取
四、尋找設計師過程和設計需求
自從決定買下這裡之後,幾乎是沒有任何懸念地,我就打定主意要讓慕澤設計的蔡宗諺設計師來操刀。因為我的第一間房子就是由他規劃,雖然當時只是一間實際大約15坪的小宅,但十多年來我們始終保持聯絡,想說他對我的喜好和生活方式都略有了解,溝通起來會比較有效率。
加上我期待房子是比較大器、時尚摩登又帶點個性化的風格,而慕澤設計過去的每個作品不但都充滿了精品感,也沒有被侷限在某一種長相裡,各有自己的特色,這點讓我相信慕澤一定是最佳人選!初步溝通時,除了跟蔡設計師表達我想要的風格之外,也特別說明希望把100吋電視和音響設備融入在整體設計中,不希望擺在空間裡是很突兀的。接著我們雖然在材質的使用和顏色定調上,花了比較多時間來回討論,後來證明這是值得的,完成後的效果很令人滿意!
五、Room Tour完工照賞析
玄關


大門進來後的第一眼,是一個可以擺放我藝術收藏的端景。進門的右邊,也就是下面第一張圖片正面看過去的位置,是一整排的鞋櫃和外套櫃。左邊轉個彎朝室內走,是一座很精緻的中島吧檯,平常我就和老婆在這喝喝咖啡、吃點早餐輕食,一邊還能客廳落地窗外的無敵景色盡收眼底。在家就能享受如此生活,夫復何求!
客廳


從客廳看出去就是出海口景色,落地窗外有一個非常寬敞的露臺,天氣好的時候可以在此觀賞淡水河落日美景;偶爾工作感覺心情煩躁或有點緊繃時,來這裡偷閒一下就是最好的紓壓解方。


電視牆刻意挑了一塊紋路很鮮明的材料,設計師說這叫潑墨山水大理石,因為採用了仿古面作法,所以會有很明顯的天然石材肌理質感。天花板運用玫瑰金毛絲面金屬板搭配斜紋造型,木地板也用斜鋪方式來呼應,視覺上空間感變得更大了!
餐廚區



臨靠玄關的吧檯,左邊就是廚房,這邊加了一道以鍍鈦金屬邊框構成的灰玻拉門,偶爾想煎個牛排,可以避免油煙擴散到公共區域。可以用來招待親朋好友的餐桌區,則安排在沙發後方;餐廳主牆選擇藝術漆為基底,也特別挑選具有裝飾美化效果的六角造型壁掛揚聲器,設計師又加上了燈光設計,簡直就像一件藝術品,十分吸睛啊!
書房


由於書房就是我的辦公空間,所以設計上會以機能面為主。為了營造獨立寧靜的環境,選用鍍鈦金屬框搭配強化玻璃的橫拉門作為區隔,同時還能看到客廳那一面的景色。一整面的木質書櫃透過灰玻隔板做為劃分,佐上燈帶散逸出的柔和光暈,這種氛圍特別適合想要一個人安靜思考、沉澱心情的時刻哪!
主臥



床頭牆運用編織皮紋板和鍍鈦金屬飾條打造,在靠近長虹玻璃鐵件屏風這一側,因為有個建築結構本身存在的凹洞,所以順勢設計出隱藏式收納櫃整合於牆面。有著較大面開窗的那一邊規劃成更衣室、梳妝台,以及可舒服泡澡的主浴區,讓老婆能在明亮採光下化妝打扮,無時無刻都有戶外美景可賞,永保心情愉快。畢竟「Happy Wife,Happy Life」嘛!老婆開心,我的生活自然也會過得舒心自在囉!







