屋主想要…
1.完整的餐廚與起居機能
2.要有2房格局
3.寬敞舒適的空間感
2025最新最全裝修省錢避坑指南免費領!
Before:
「這16坪微空間中,我們運用設計扮演兩個角色,一個角色是五臟俱全的滿足感,另一個角色是最大限度地,利用空間創造幸福感。」翔騏設計總監陳文茵一語道盡此案的艱難與可貴之處。考量屋主需要兩房格局,同時也不能捨棄客廳起居、餐廚任一機能設計,再三斟酌後決定採用去客廳化的設計,讓空間打破各據一方的傳統格局,回歸到以居住者生活動線為主軸的設計,由一張橫跨廚房與客廳的圓弧桌面,來定位與串聯各區,既是家人情感凝聚點,也讓各區機能獲得滿足。

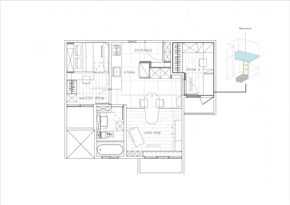
▲裝修後平面圖
客廳起居區
客、餐廳與廚房採用開放式設計,並以圓弧桌橫跨一高一低的地板上,架高木地板區則為類和室起居客廳,備有電視牆櫃等完整功能,而降板區的桌面高度則可方便餐廚區使用。




完整裝修工具包(清單+話術+模板)已為你準備好!
玄關&餐廚區



主臥室



次臥
為了讓不到2.5坪的次臥房能極致利用,透過向高處發展的思維,來滿足大臥鋪以及臥榻書房的設計,同時也能夠提供更多的牆面來規劃收納機能,展現麻雀雖小五臟俱全的生活空間。



After
「來到這個家,除了要邀請您閉上眼睛感受每一個細節,更是邀請您發現每一個細節存在意義。特別是透過客製化圓弧桌的複合式應用,使公共區達成去客廳化,並讓機能滿足與情感凝聚能同時到位。」──翔騏空間設計。







