屋主想要…
1. 保留舊家情感&痕跡
2. 符合倆人一狗生活所需的格局
3. 給親如家人的毛孩一個舒適空間
「早把寵物視為永遠家人的夫妻倆,配合狗狗的生活模式,在家中設置許多專屬於牠的位置,再結合屋主作息,讓每個空間都能看見彼此、好隨時陪伴牠。」日冊設計洪銘陽敘述著屋主夫妻與狗狗一家三口的好感情,並以「作伴」成為這個家的核心主題。
2025 空間設計包免費領!
收納超省空間,小坪數救星!
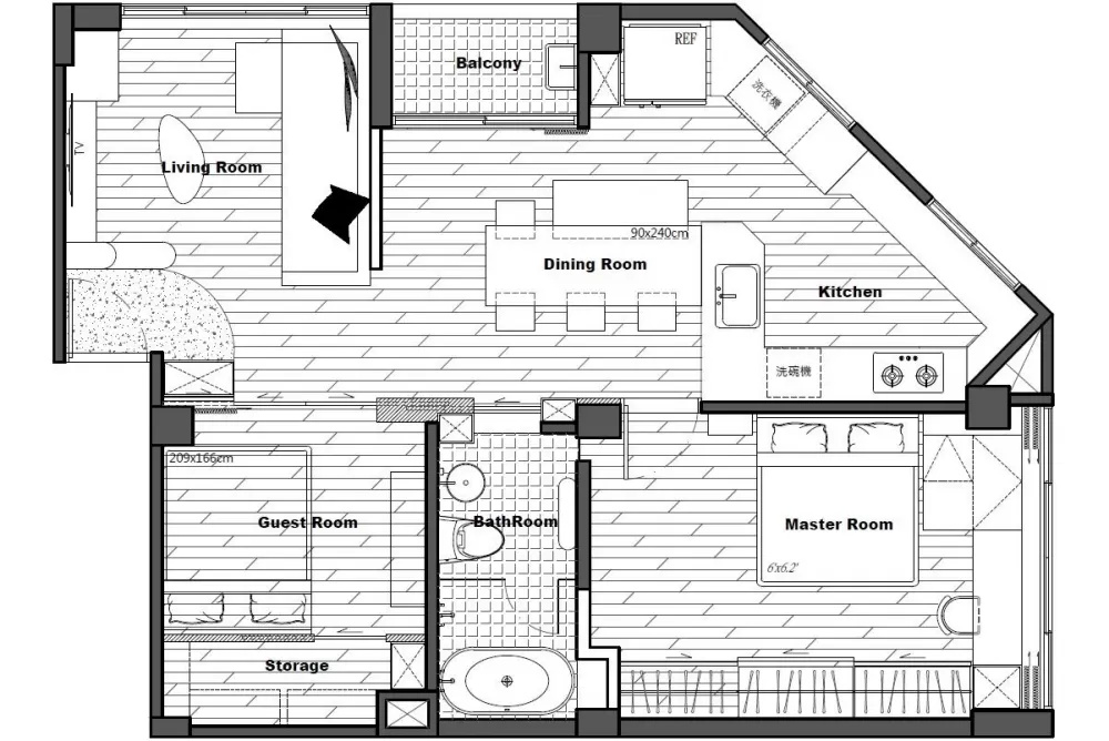
格局規劃
為了住得寬敞些,設計師首先將三房二衛的舊隔間砍掉重練,改為二房一衛的新格局,並配合廚房移位至畸零角落,運用三角格局的斜邊來做為延長檯面,既可放大廚房與視野,也能引入更多光線、改善室內陰暗問題。

▲平面圖
風格氛圍


完整裝修工具包(清單+話術+模板)已為你準備好!
1. 客廳設計
簇新的黑色電視牆與拆了一半的白色老磚牆,前後映襯出衝突卻和諧的新舊傳承寓意;至於大門旁則以鐵製玄關椅及地板建材變化界定出開放落塵區,避免過度隔間讓客廳變狹窄。



2. 餐廚區&工作區設計
被移至臨窗三角區的廚房,捨棄吊櫃以保留窗戶與採光,並利用三角廚房斜邊來打造更多檯面,而下櫃則嵌入洗衣機與家電來滿足需求。與吧檯連結的餐桌還可兼做打電腦的工作桌。


3. 主臥室設計




4. 狗狗專用設計
屋主依據狗狗生活習慣,在餐桌旁預留專屬用餐區,讓全家人可共伴用餐;主臥室床邊也有牠專屬的床榻,搭配貼心緩坡道可保護老狗狗膝蓋,當然還有狗狗小門供牠自由進出房間。



After
「原本屋主也希望能保留主臥浴室與半套客衛格局,但經過現場丈量後,發現空間小且不好用,考量人口簡單而決定合併為一間大浴室,也意外多了浴缸的容身之處,讓浴室奢華度與寬敞感受都升級。」日冊設計洪銘陽。







