隨手换装,輕鬆感受装修效果
屋主需求:
1. 不過度裝飾的美式風格。
2. 原本一樓進門即可見到的樓梯,需加以修飾。
3. 維持開闊視覺,並留出能自由活動的空間。

完整裝修工具包(清單+話術+模板)已為你準備好!
Before:
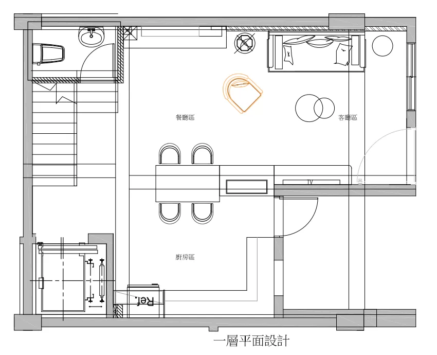
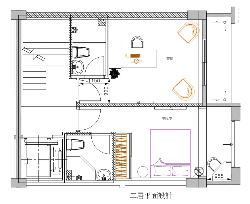
「雖然屋主家庭成員較單純,但因為個性熱情好客,所以刻意選擇透天厝格局,希望這間新房能滿足過去一直想接待親友留宿的需求,」鼎士達室內裝修企劃簡伯諺設計師表示。這是一間有著四層樓、每一層約14坪大的新成屋,因此在機能劃分上根據其原有的分層設計優勢,將一樓規劃為客餐廳和廚房、二樓是主臥和休閒書房、三樓則是次臥和客房。



1-3層平面圖
客廳設計
由於每一層樓的空間坪數不大,為避免產生侷促感,進門不另作玄關區,並將收納鞋櫃與電視櫃一併整合在TV主牆下方。家具配置透過一座沙發配搭線條俐落的小茶几,以及舒適的矮凳和單人椅,營造增進家人互動、對話的起居環境,也可視不同情境和動線需要隨時調整排列方式。



餐廚區設計
在客廳至餐桌之間增闢一座中島吧檯,一方面可用來收納各式廚房電器,亦配置插座提供屋主煮熱水、沖泡咖啡等需求;另一方面,這座中島與電視櫃成一體化設計,可達到延伸視覺景深的效果。在鄰靠沙發背牆的壁面上規劃一座兼具展示功能的餐櫃,收納杯盤器皿的同時,也能陳列屋主收藏的藝品。
通往二樓的樓梯前,加上可隱約穿透的造型牆予以修飾,而這面猶如真實石材打造的牆面,其實是運用了手繪大理石紋的技術。此外,也能將樓梯下畸零區塊所規劃的收納空間,隱藏於牆面。



主臥設計
鋪上軟墊和舒服背靠的臥榻,平日可作為休憩空間;當假日家族親友來訪時,和女主人感情很好的親戚小孩便可在此一起分享小秘密,累了也可直接在此就寢。臥榻下方也規劃三座大抽屜,增加儲物空間。


次臥設計
有別於公共領域和主臥的美式情調,這間屬於大男孩的臥室改以年輕人喜愛的簡潔風格為出發。彷彿縮小版衣帽間的半開放式衣櫥,選用金屬框玻璃拉門為區隔,內部不做太多固定式層板,而是以吊掛方式收納衣物,不但能減少折疊時間,且一目瞭然,能以最快速度挑選、拿取。書桌採懸空式設計減少量體厚重感,便於取物的開放式書架,則以木質搭佐深黑鐵件構成,創造溫潤中又帶點個性的質感。



書房設計
與主臥相鄰的一房,平時是主人的閱讀書房,有賓客造訪時也能化身為兼具視聽娛樂的多功能室。風格上沿用了以淺灰色系打造牆面的基調,再搭配深黑及沉穩木質元素,形塑溫潤內斂的空間氛圍。









