裝修背景
本案居住者為⼀對夫妻,⾝為攝影師的男主⼈與從事設計創作的⼥主⼈,對⽣活有獨特的品味,平時對有時光痕跡的懷舊⽼物特別著迷。在國外旅居數年後回到台灣,當他們遇⾒這 50 年的⽼屋便⼀⾒鍾情,因此委託我們(宸光設計)重新規劃。



完整裝修工具包(清單+話術+模板)已為你準備好!
屋主需求
1. 延續⽼屋⽣命⼒的同時能保有開闊的公領域與收納機能。
2. 能兼顧開放格局和個⼈隱私的雙重需求。
3. 開放的烹飪空間。
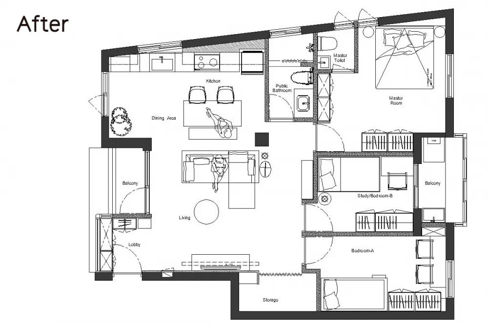
4. 增闢⽞關與衛浴空間。
解構格局,使⽣活更加緊密相連
⽣活的樣貌是許多選擇的總合,我們告別傳統居家設計格局,打造獨⽴三房配置的同時,依然保有流暢的動線。公領域延伸⾄私領域,留駐細節並使⽤簡約的線性語彙,在溫潤的⽊地板及窗外的綠意之間,凝聚出愜意悠然的⾃然氛圍。


2025最新最全裝修省錢避坑指南免費領!
⽞關陽台設計
更改⼊⼝⽅向的陽台,將原陽台圍築建隔牆,打造⽞關空間的同時保留部分⾺賽克磚,並增加外出⾐物與鞋⼦收納,打造機能空間與璞質的⼊⾨端景。



客廳設計
⾰新⼀個空間,我們以需求為⼼,美學為徑。卸除牆⾯後保留原始橫樑與柱⾯,忠於材質,不多加修飾的⽅柱體為空間留駐時光。簡約精鍊,溫柔卻不張揚。
開放的客餐廚空間,利⽤採光優勢將低飽和度的空間輪廓輕盈編排。在縝密細微設計下,能夠⾃在地沉浸於⿊膠唱⽚的悠揚旋律中,旋⼊⼈之⼼念與美學,讓喜歡的事成為⽣活,靜享空間悠悠漫漫之美。







餐廚設計
平均⼀⽣花了⼤約12%的時間在廚房, 因此我們認為擁有舒適的廚房是如此重要。開放式廚房的通透不但讓整體視覺放⼤,更讓烹飪不再只是⼀個⼈的事,⽽是凝聚了全家,延續著互相陪伴的美好⻝光。



主臥設計
將新築起的矮牆結合實⽊層版,形成床頭平台,整平畸零地帶來格局不正的侷限同時增加擺放機能。溫暖⽊飾與素淨的淺⾊牆⾯綿延,營造隱密安定的氛圍。在⼀整天繁忙的喧囂中,回歸舒適靜謐的休憩氛圍。



衛浴設計
保留原本⽼屋的⾨⽚,⼗字花窗⾨⽚是懷舊的⽼家記憶,具透光⼜無法透視特性,讓光線柔和同時兼具裝飾效果。穿越新舊之間的材質混合,留駐時光、溫存⽼屋的記憶⾵景。
我們相信最樸質的美是不添加雜念的安定渴望,真正的本質還是關乎於家⼈之間喜歡的⽣活模式。家是愛與和諧的共振,⽤設計注⼊不同層次,傾聽需求,混⾎不同的觀點,將和煦的空間⼒量載⼊每⽇的⽣活場景。












