屋主需求:
1. 主臥需設置更衣室。
裝修預算規劃與避坑清單
含Excel模板,限時0元領取
Before:
「屋主期待一家人能被浪漫、優雅、溫暖的氣息包圍,因此這間房子的整體設計概念便以『率性法式生活』為主軸。」禾禾設計張禾溥設計師表示,由於家有兩名幼兒的緣故,屋主希望室內裝修和家具配置能避免銳利的直角元素,賦予孩童居家活動時的安全,所以可看見溫潤的圓弧元素蔓延在櫃體、樑柱轉角、桌椅等空間各處。
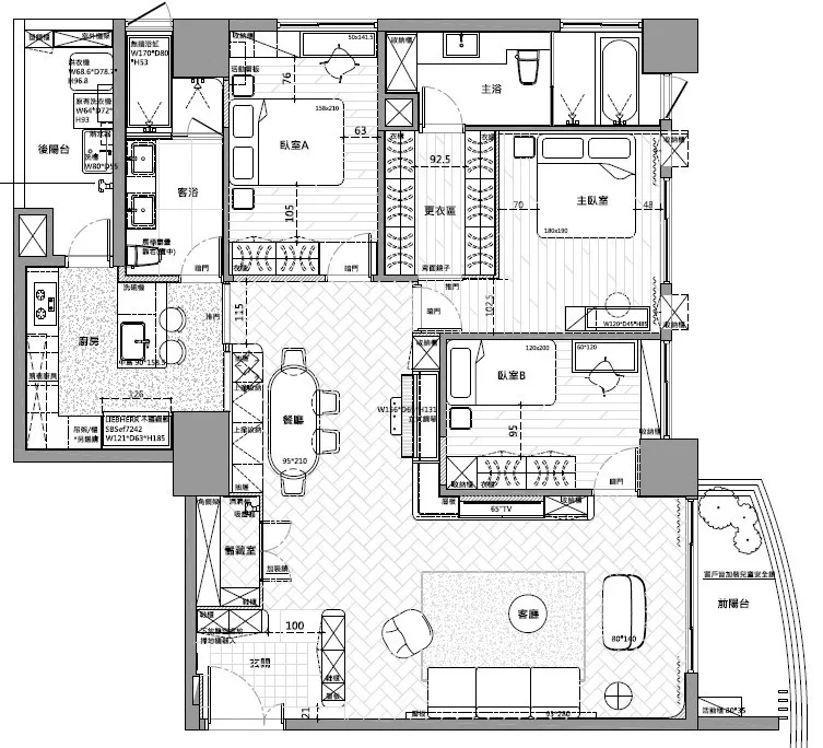
原始格局除了公共區域外,建商本規劃為3房3衛的配置,但是客浴和其中一間套房的衛浴空間狹小侷促,不利使用。設計師遂將2間打通,不但可擺放一座泡澡浴缸,也改為雙洗手台設計,便於孩子們同時間漱洗。藉由浴室的整併,還可拓寬廚房區域,得以納入一座中島吧檯。

Before平面圖

After平面圖
玄關區設計
原本是大門一打開即可環視室內的佈局,透過收納櫃及灰白色系地磚圍塑出猶如飯店迎賓質感的玄關區。做到頂的玄關櫃,刻意與牆面拉開些許距離,並加入鏤空格櫃設計,降低量體厚重感之餘,也能保持光線與視野的穿透性。



完整裝修工具包(清單+話術+模板)已為你準備好!
客廳設計
公領域以柔白、淺灰色調和魚骨拼地板的木質感鋪陳,將臨靠客廳的孩房門片改向後,沿著壁面打造電視牆櫃,並搭配可彈性收納開闔的拉門設計,不使用電視時可隨時藏起。一旁轉角則採用L型開放展示櫃體加以銜接,讓屋主得以陳列家庭照片和充滿旅遊回憶的紀念品,增添生活樂趣!




餐廚區設計
由於餐廳區域和通往私領域的空間走道重疊,加上還需擺放一架鋼琴的關係,於是捨棄餐桌置中的配置,置放於廚房靠窗處。設計師由儲藏室順勢延伸出一列臥榻,取代一部分餐椅,使整體動線更開闊流暢,相對也能帶來更為充足的座位。在黑框清透玻璃門窗的搭襯下,用餐空間宛如街角咖啡座般,備感悠閒放鬆。



主臥設計
承襲公共領域的俐落線條與簡約面貌,主臥室輕輕以雅致的米灰色調描摹,並點綴少許金屬黃銅,賦予優雅寧靜的氛圍。和主浴呵成一氣的步入式更衣間,採雙一字型開放式櫃體設計,衣物一目了然、便於收納拿取,亦大大減輕空間壓迫感受。



孩房設計
來到女兒房,同樣減捨了多餘的造型綴飾,僅藉由清爽繽紛的色彩配置和床頭白牆上的圓潤圖樣,打造童趣中不失質感的成長空間。










