拍张客圖,AI極速换装,1分鐘出圖
前言
家是日常放鬆、凝聚家人情感的場域,也包裹了我們對美好生活的嚮往。在累積無數的生活記憶後,隨著兩個女兒陸續成年,屋主希望打造一處能增進家人互動、便於親友聚會的空間;亦期待此次改造能兼具可靈活運用的彈性,以因應未來不同的人生階段,待女兒們一一結婚生子,即可化身為方便全家大小活動、放鬆聊天與休憩共宿的場域。

完整裝修工具包(清單+話術+模板)已為你準備好!
格局規劃&設計重點
由禾禾設計張禾溥總監操刀的空間,位於四層樓別墅的最頂層,原始格局方正、採光良好,且公私領域分明。惟因過去因缺乏適當的規劃,導致收納不足,機能分區也不夠明確。設計師遂在保留建物原有隔間的基礎下,透過靠牆式收納設計滿足屋主的置物需求,並維持清爽開闊的視覺。同時以流暢的動線配置,於各區域納入可享受視聽娛樂、輕食品咖啡、安靜閱讀及睡眠休息等完整機能。

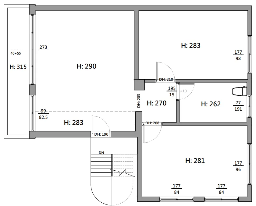
Before平面圖

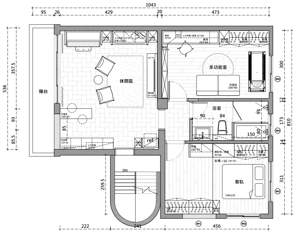
After平面圖
交誼廳-視聽區設計
將一打開大門即可見到的公共領域設定為交誼、休閒的空間,以白灰黑等中性色為基調,採用大理石薄磚構成電視主牆,青苔綠紋理在灰白底色的襯托之下,大器質感中又帶著個性美。面向電視牆的左側分別規劃為鋼琴區和收納臥榻,讓具有紀念價值的物件能適得其所、持續奏出美妙樂音,亦可藉由舒適臥榻做為沙發座椅的延伸。


交誼廳-吧檯區設計
為兼顧家庭成員共享生活空間的多元需求,於視聽區右側規劃出輕食吧檯,並將原本屈居浴廁旁的冰箱予以整合。有別於視聽區明淨大器的風格,設計師以酷炫硬朗的灰黑色系為區隔,搭配簡潔線條勾勒的俐落視覺,以及嵌燈、吊燈交織的迷人光芒,形塑極富情調的空間氛圍,使人宛如置身時尚餐酒館般愜意。


多功能室設計
沿牆規劃書房及工作室機能,也預留了未來可擺放床鋪的尺度,必要時能馬上轉化為臥室。藉著大面積的白色為底、綴以適度淺灰,以及一體成形的桌櫃設計,鋪陳乾淨簡約的風格調性。


客臥設計
沿用公領域的白灰配色和簡潔造型之餘,在臥室中另添加莫蘭迪綠妝點,清新自然的色調為空間帶來一抹朝氣活力,卻又不減臥眠時光應有的寧靜氛圍。寢臥區刻意將地板略微架高,未來既能擺放床墊,亦可直接當成通舖。而收納櫃體下方由鏤空鐵件打造的層架,恰可隨手放置各式小物或睡前讀物,提供有如傳統床頭櫃的功能。


衛浴設計
與整體空間一致的灰黑白配色,透過黑色仿岩磁磚塑造內斂沉穩又有個性感的另一處私密場域,並搭配木紋櫃體點綴,提升暖度。在設備的配置上也將馬桶移位,和洗手台、收納櫃加以整併,讓淋浴及澡缸能自成一區。乾濕分離的設計不但便於日後清潔,動線也更為流暢,還可避免一開門即見馬桶的尷尬感,維持視覺寬闊度。


後記
設計師順應空間既有格局,發揮良好採光與落地窗美景等原始優勢,妥善置入各種起居需求,為屋主一家締造通透寬敞又能靈活運用的生活場域。使人無論是想獨處靜心或與親友說笑同樂,都能找到最舒適自在的角落。







