美化我家不費力·風格換新零門檻
設計公司:築凝設計

一、機緣
原本安逸地長住在公司宿舍裡,但老婆一直夢想要有個自己的家。剛好遇到工作上的人事大異動,所以就在各種因緣際會下買了靜巷內的小宅,打造屬於我們和三隻傻貓的空間。
不過這篇文章是抱著單純分享與記錄的心情,沒有什麼太專業的詞彙或太複雜的想法。還請大家多多見諒~

完整裝修工具包(清單+話術+模板)已為你準備好!
二、風格/設計師
找到的設計師是台南的朋友介紹的小工作室,甚至當時還沒有他們自己的辦公室,所有溝通、選物的過程都在咖啡廳度過。那時候就告訴設計師,我們想要的風格偏向日系、木質、詫寂、簡約、圓角...等等幾個關鍵字,然後網路上找了一堆自己喜歡風格的裝潢圖給設計師參考,有幾點考量列出,沒問題之後就簽約、開始動工。
列出幾個自己覺得很在意的地方,給設計師參考:- 有三台貓咪自動餵食器、兩台貓咪自動飲水機、貓跳台...空間需要預留機器位置- 插頭數量要夠多 (桌面上、檯面下、因應各種貓咪 & 自己小家電、衣櫥下方藏插頭)- 廚房改為封閉式、但保留採光、電器櫃電線獨立走線- 客廳大面積窗戶用蜂巢簾(老婆特別指定)- 電視櫃不要看到雜亂的走線- 收納要足夠、旋轉鞋櫃增加鞋子收納量- 保留玄關置物區、踢鞋板有自動感應光源- 整體燈光希望偏暖色系- 可以看到的開關面板都選擇Panasonic的GLATIMA系列 (莫名堅持)
三、格局規劃/施工
真的討論下來真的發現,有太多的細節要注意,包括衣櫃內部的規劃、餐桌大小、沙發大小的選擇、木作家具選色和地板的搭配、窗簾......等等。真的也謝謝設計師已經先幫我們去蕪存菁、讓我們在短時間內可以快速做出決定,加速整個工期的完成。
前後大概含家電2.5個月完工,中途遇到玻璃師傅確診有小延宕,但大抵上整個工程都銜接的相當順利,很佩服設計師調度的功力!

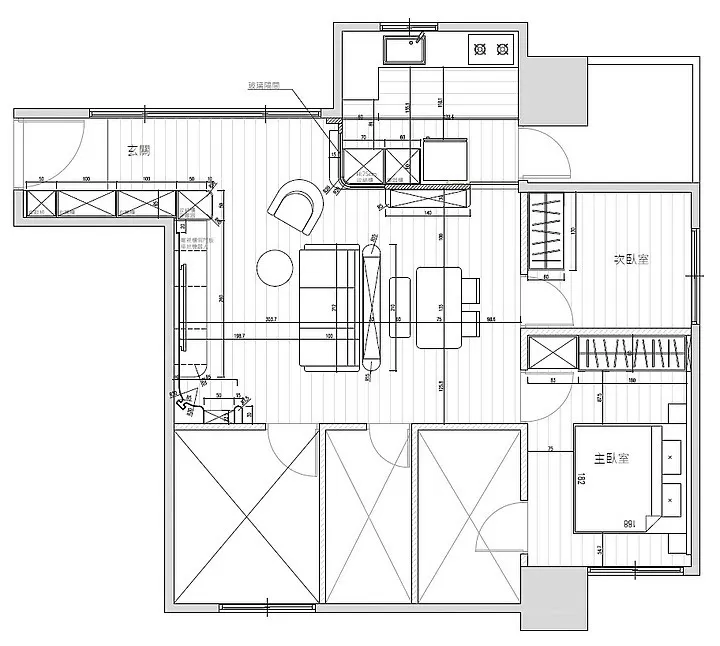
附上簡單格局圖

附上幾張施工照。過程中其實只有周末會來走走晃晃,平日監工的部分交給設計師。
四、成果發表


從門口走入,右手邊整個是木作櫃體大量收納、左邊是蜂巢簾與大面採光。室內放一些植物可以有點綴的效果。

從不同角度看玄關走道,與廚房的隔間使用圓弧長虹玻璃裝飾,可以有效利用客廳的採光、讓廚房不至於太暗。當初圓弧的長虹玻璃也花了一些時間跟設計師檢討,為了轉角圓弧,工錢比玻璃原料本身還貴上許多。


地板和門片都是建商原本就有的,客廳主牆面使用淺灰色的樂土漆(家人第一次來家裡還覺得怎麼家裡的油漆這麼不均勻><)
電視的主機和面板是分開的,所以插拔HDMI線都是從下方的櫃體,覺得這樣的分離式設計真的不錯!還可以讓電視更貼牆面,讓牆面更俐落的感覺。電視櫃最右側是一個上掀假櫃、背後一樣預留插座,主要收納掃地機器人 (大推)
沙發:台灣美克 客製化沙發 +防貓抓布(沙發底也用貓抓布加強)

客廳有一盞線燈點氛圍 (但事實證明後來很少開)


用一個木作的沙發後櫃簡單區隔餐廳和客廳,同時也具備收納的功能。貓咪有時候也很喜歡在這裡趴著睡覺~
餐桌、餐椅:宜得利 VIK 系列

沒有太複雜的設計與裝飾,牆面用大面樂土漆,呼應客廳的風格、佐以木格柵點綴,搭了一盞可Google智慧居家聲控的吸頂燈(Yeelight 皎月系列),不用再起床按開關。床邊做了兩個小邊几、裡面一樣藏了插頭。
衣櫃左側預留汙衣空間、防潮箱空間 (一樣有預留衣櫃內插座走線)。小玄關也可以放置吹風機、收納化妝用品、藥品等;覺得真的要依照自己收納習慣規劃,封閉或開放式收納空間(畫重點)


書房只做了簡單的系統櫃;窗簾選用常見的調光簾。升降桌:STANDWAY 胡桃木桌板



入住後生活照與貓
🎉 最後,感謝大家的收看 ~ 希望大家也能夠找到自己心儀的設計 & 設計師 🎉



