美化我家不費力·風格換新零門檻
前言
與親人摯愛相聚的時光,每一個片刻都彌足珍貴。已退休的屋主夫妻,平日與女兒同住,但每到周末假期便會迎回另外已出嫁的女兒、以及女婿與孫兒,屋內頓時成為10人同歡的溫馨場域。因應此生活型態的轉變,加上原有住家屋齡較高且不敷使用,屋主遂興起換房念頭,並委託擅長運用色彩、材質與軟件搭配的知域設計打造溫暖舒適的生活空間。

完整裝修工具包(清單+話術+模板)已為你準備好!
格局規劃&設計重點
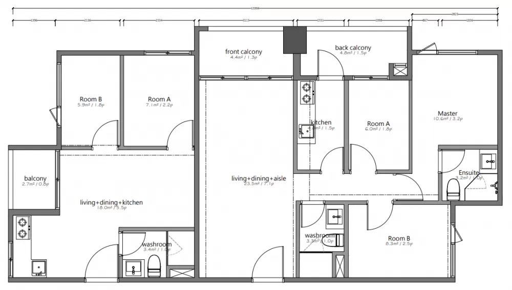
本案是由兩戶住宅組成的雙拼宅,左邊原始格局為2房、右邊為3房規劃。經由知域團隊打通、調整隔間重新配置之後,形成客廳居中、臥室置於兩側的生活動線,同時也擴大並打開既有的廚房區,化為更寬敞明亮的餐廚合一場域。
在私領域空間中,由於男女主人生活作息不同,為避免打擾彼此的睡眠,遂依其習慣採用雙主臥設計。另外兩間臥室,一房是同住女兒的臥室,另一房則作為客房使用,便於其他家族成員留宿。
考量此處為每週休假時串連起三個不同世代家人的共聚空間,加上屋主傾向較繽紛年輕的配色,因此整體以溫馨且不失活力的的風格為主軸,並結合圓弧線條賦予柔和流暢的視覺,亦提升室內活動的安全性。

Before平面圖

After平面圖
玄關設計
從大門進入後,藉由簡約條紋勾勒出的花磚界定落塵區,方便收納行李箱與家電等大型物品的儲藏室,規劃於左側木質立面;右側懸空藍色櫃體則提供了完整置放鞋子及外出用品的空間。為降低長型玄關的壓迫感,設計師刻意將落塵區地坪鋪設至室內神龕處,締造出延展的視覺效果。


客廳設計
有鑑於家族中有活潑好動的小小孩,電視櫃遂整合於緊靠落地窗的一側,維持客廳區域開闊的空間感,提升孩子們嬉鬧玩耍時的活動安全。為擴大電視牆面的尺度,選擇以同色的噴漆、特殊塗料等不同材質向神龕區,構成俐落有致的走道兩側立面延伸。有別於以平靜、溫暖杏色鋪陳的電視牆,沙發背牆局部綴點蔚藍色系,並運用水波紋玻璃磚、直紋長虹玻璃等元素,為客廳、餐廳空間挹注朝氣與層次感。


餐廚設計
穿過這扇藍色的玻璃拱門,即是一家人共享美食和笑語的餐廚區域。料理工作台與餐桌以玻璃拉門為區隔,創造使用開放空間的彈性,必要時可關上阻絕油煙。廚房檯面上方捨棄傳統吊櫃設計,保留完整且清爽窗景視野,並藉由餐廳櫃體的設置擴充收納量。


主臥設計
在男女主人個別的主臥空間中,床頭牆皆刷上深淺不同的藍,為空間注入寧靜氛圍。男主臥床側以一座暖灰色系亞麻織紋質地的櫃體收納衣物,並增添沉穩溫暖的臥眠感受;床尾天花宛如海鷗展翅飛翔的造型,既呼應了弧形元素,也讓燈條呈現出頗富趣味的視覺效果。
女主臥的衣物除了透過獨立更衣間收納之外,設計師亦運用門邊一隅加入木作高櫃,便於隨手暫放衣服,並配搭圓弧線條修潤,有別於一般單純雙門式收納櫃,營造進門的儀式感。




次臥設計
因女兒房床頭靠窗,為避免光線影響睡眠,遂以活動式門片修飾並調節光線,而門片下緣的金屬飾邊也使臥室多了幾許精緻質感。房內另側開窗處,則藉由一座衣櫃劃分出梳妝換衣的場域,一圓女孩對專屬更衣室的嚮往。


衛浴設計
客浴的牆面與地面均選用了具防水特性的特殊塗料,除了可解決磁磚縫隙時間一久泛黃發黑的問題,還能減少接縫線條線所導致的分割感,有助延展視覺,在酷黑金屬的襯搭下更能展現簡約風采。

裝修後記
「從初期討論到完工,都能感受到家族和諧的互動氣氛,例如屋主一家在設計前期便事先透過家庭會議,匯整所有家人的想法和需求,最後由女兒負責與設計師溝通,讓整個流程更加順暢。最後工程驗收時,我們目睹了屋主在新家裡三代同堂開心氛圍、幸福的畫面,而這也是知域當初的設計初衷,」設計團隊表示。








